Auction House / South Yorkshire

  • For Sale By Unconditional Online Auction
  • Guide Price* : £85,000
  • Auction Ended 28/09/2021
  • Lot 1

46 Bank Street, Mexborough, South Yorkshire, S64 9LL

FOR SALE VIA NATIONAL ONLINE AUCTION. BIDDING OPENS MONDAY 27TH SEPTEMBER AT 1PM AND CLOSES TUESDAY 28TH SEPTEMBER FROM 1PM. REGISTER TO BID!


Description

An opportunity to purchase this four bedroom end of terrace property in immaculate condition currently let for £700 per calendar month to a reliable professional tenant.

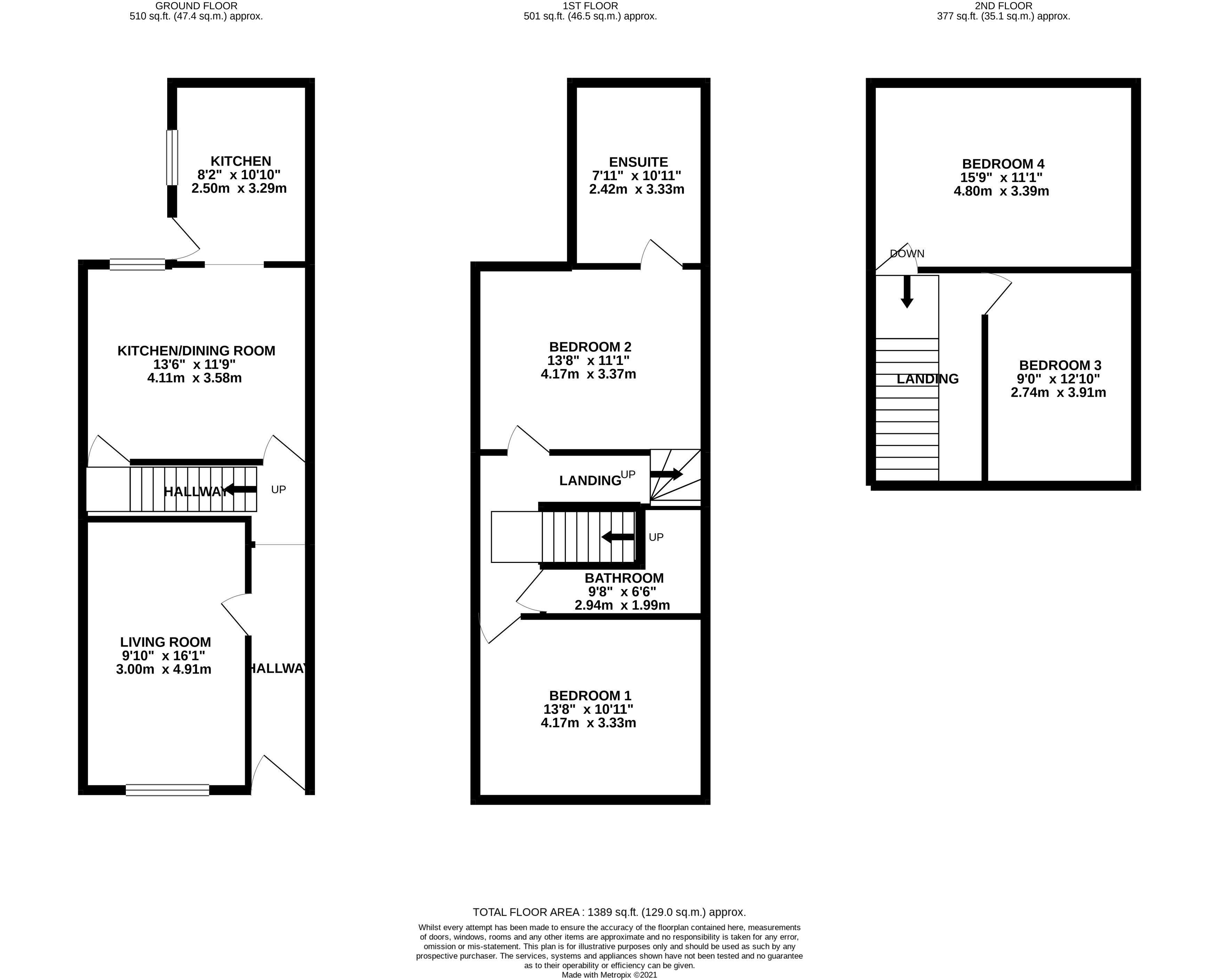
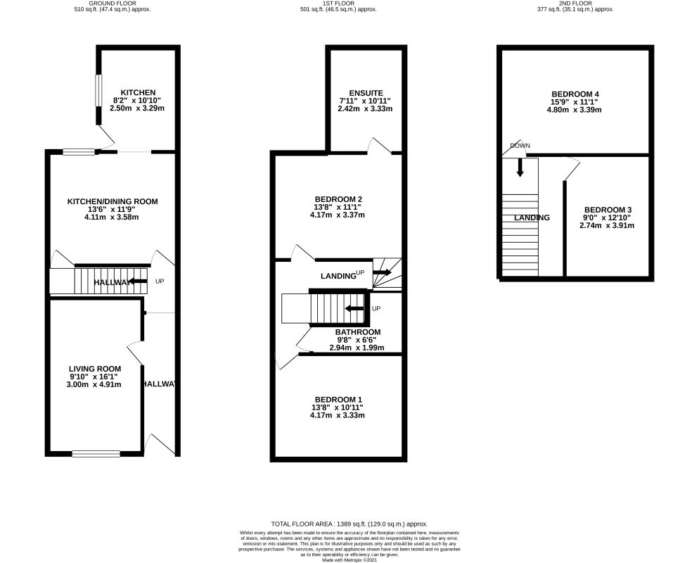
The property briefly comprises a living room, kitchen and dining room to the ground floor. To the first floor there is a double bedroom with ensuite, a second good size bedroom and shower room. To the second floor there are another two good size bedrooms. Externally the property benefits from a large garden and on street parking.

Located in the historic market town of Mexborough, a short distance away from the M1 for commuting into nearby towns and cities. The property benefits from being within walking distance of the local school and train station.

No internal viewings being carried out.


Ground Floor

Kitchen 2.50m x 3.29m
Dining Room 4.11m x 3.58m
Living Room 3.00m 4.91m


First Floor

Bedroom One 4.11m x 3.33m
Bedroom Two 4.11m x 3.37m
Ensuite Bathroom 2.94m x 1.99m
Shower Room 3.10m x 3.44m


Second Floor

Bedroom Three 2.74m x 3.91m
Bedroom Four 4.80m x 3.39m

Additional Fees
Administration Charge: £1,200.00
Disbursements: Please see the legal pack for any disbursements listed that may become payable by the purchaser on completion

Important Notice to Prospective Buyers

We draw your attention to the Special Conditions of Sale within the Legal Pack, referring to other charges in addition to the purchase price which may become payable. Such costs may include Search Fees, reimbursement of Sellers costs and Legal Fees, and Transfer Fees amongst others.

Administration Charge

Administration Charge is a non-refundable £1,200 inc VAT payable on the fall of the virtual gavel.

Loading the bidding panel...

* Guide | £85,000
  • 4 Bedrooms
  • Unconditional (Immediate Exchange)

Call the team on 0114 223 0777 for more information

Disclaimer: The map preview provided above is for general guidance only and may not accurately reflect the exact location or surrounding buildings. Prospective buyers and interested parties are strongly advised to independently verify the precise location and surroundings before bidding.

Note

  1. MONEY LAUNDERING REGULATIONS: Intending purchasers will be asked to produce identification documentation at a later stage and we would ask for your co-operation in order that there will be no delay in agreeing the sale.
  2. General : While we endeavour to make our sales particulars fair, accurate and reliable, they are only a general guide to the property and, accordingly, if there is any point which is of particular importance to you, please contact the office and we will be pleased to check the position for you, especially if you are contemplating travelling some distance to view the property.
  3. Measurements: These approximate room sizes are only intended as general guidance. You must verify the dimensions carefully before ordering carpets or any built-in furniture.
  4. Services: Please note we have not tested the services or any of the equipment or appliances in this property, accordingly we strongly advise prospective buyers to commission their own survey or service reports before finalising their offer to purchase.
  5. THESE PARTICULARS ARE ISSUED IN GOOD FAITH BUT DO NOT CONSTITUTE REPRESENTATIONS OF FACT OR FORM PART OF ANY OFFER OR CONTRACT. THE MATTERS REFERRED TO IN THESE PARTICULARS SHOULD BE INDEPENDENTLY VERIFIED BY PROSPECTIVE BUYERS OR TENANTS. NEITHER AUCTION HOUSE NOR ANY OF ITS EMPLOYEES OR AGENTS HAS ANY AUTHORITY TO MAKE OR GIVE ANY REPRESENTATION OR WARRANTY WHATEVER IN RELATION TO THIS PROPERTY.