Auction House / Lincolnshire

  • For Sale By Unconditional Online Auction
  • Guide Price* : £180,000
  • Auction Ended 26/04/2021
  • Lot 2

Hall Lodge Holton-Cum-Beckering, Market Rasen, Lincolnshire, LN8 5NG

FOR SALE BY UNCONDITIONAL ONLINE AUCTION (IMMEDIATE EXCHANGE)


Description


This property comprises a spacious well presented five bedroom detached house, positioned down a private driveway and situate in the semi rural village of Holton cum Beckering. Holton cum Beckering is situate six miles south of Market Rasen and is served by good road access to Horncastle, Market Rasen and the cathedral City of Lincoln. The accommodation has potential to offer various options including family accommodation, multi-generational accommodation and sits on a larger than average plot with Garage, outbuildings and Summerhouse.


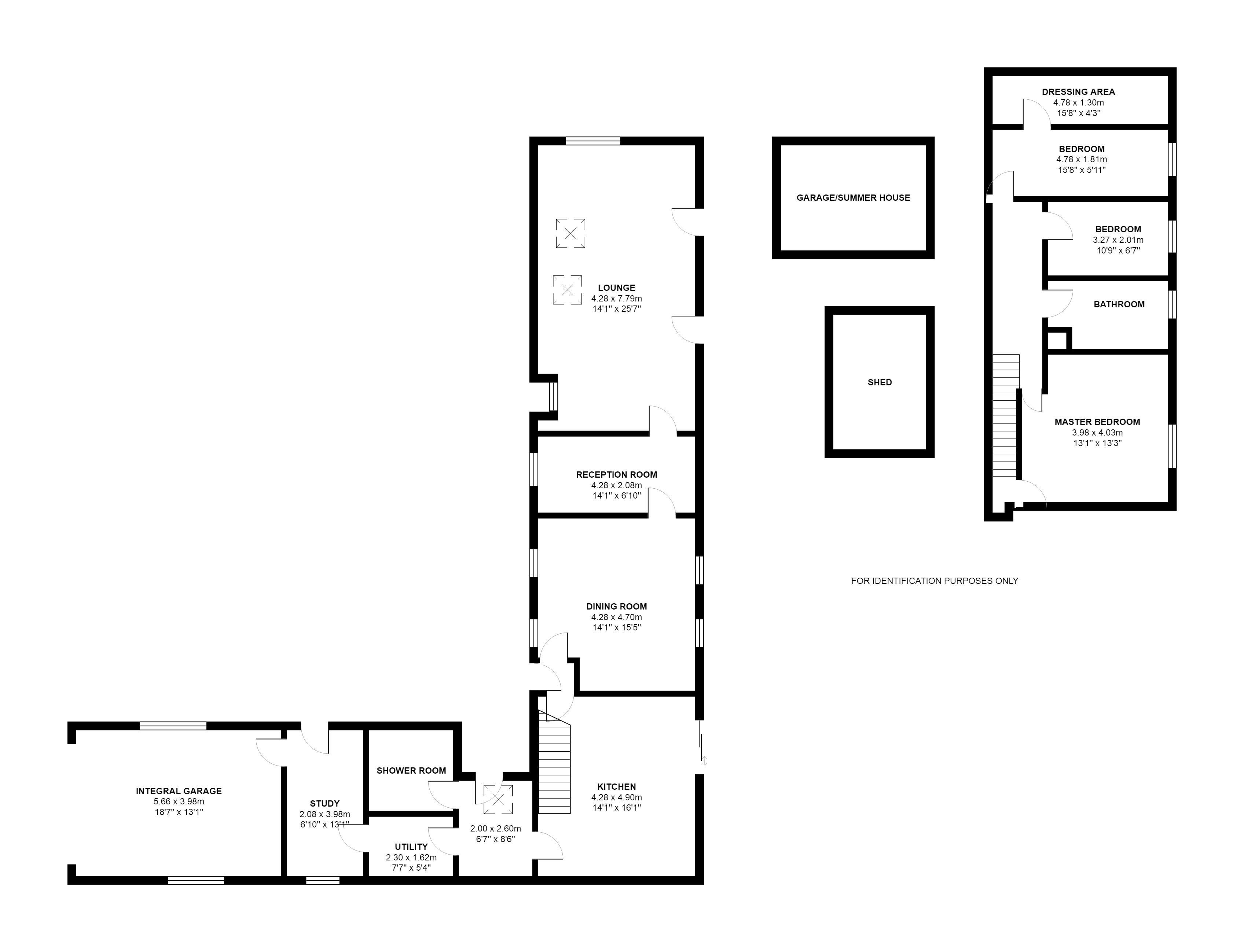
ACCOMMODATION

The accommodation is accessed via two entrances to the front:

MAIN ENTRANCE HALLWAY
2.00m (6' 7") x 2.59m (8' 6")
Wooden door leads into the main entrance which provides access to Kitchen, Utility Room and downstairs Shower Room, built in cupboard, tiled flooring, spot lights to ceiling, velux skylight and radiator.

SECOND ENTRANCE
1.50m (4' 11") x 1.04m (3' 5")
Accessed via a wooden door leading into a lobby with tiled flooring, radiator and providing access to the kitchen and dining room.

KITCHEN
4.90m (16' 1") x 4.27m (14' 0")
Kitchen comprising wall and base units. built in Neff oven with grill, four ring halogen hob, built in Neff dishwasher, one and a half stainless steel sink, Myson Velaire floor mounted boiler, wall mounted thermostat, tiled flooring, two radiators, window to the front and sliding double glazed door to the rear.


PANTRY

1.42m (4' 8") x 1.20m (3' 11")
Just off the kitchen with tiled worktop, shelving and window to the front elevation.

SHOWER ROOM
2.19m (7' 2") x 2.29m (7' 6")
Four piece white suite comprising shower cubicle, low level flush wc, bidet, built in sink unit with drawers, vanity unit, wooden window to the side elevation.

UTILITY ROOM
2.19m (7' 2") x 1.55m (5' 1")
With wood effect wall and base units, stainless steel sink with mixer tap, space for washing machine, wooden double glazed window to the front elevation and tiled flooring.

STUDY/BEDROOM
2.07m (6' 10") x 3.98m (13' 1")
A further room between the utility and integral Garage. With door to the side elevation, wood panel flooring, wooden double glazed window to the front elevation and radiator.


INTEGRAL GARAGE

3.98m (13' 1") x 5.58m (18' 4")
With electric door, wooden windows to the front and side, roof storage space and power sockets. Cold water tap.

DINING ROOM
4.70m (15' 5") x 4.25m (13' 11")
With original chimney/fireplace feature, shelving, wooden beams to ceiling with spotlights, two double glazed windows to the front and wooden window to the rear.

FURTHER ROOM BETWEEN DINING ROOM AND LOUNGE
4.60m (15' 1") x 2.08m (6' 10")
Wooden beams to the ceiling with spotlights, double uPVC double glazed window to the front elevation, wooden double glazed window to the rear, radiator and door to Lounge.
This room could be partitioned off to create a further Bedroom.

LOUNGE
4.67m (15' 4") x 7.78m (25' 6")
Two uPVC doors with side windows leading to the garden, uPVC window to the rear elevation, two velux windows to ceiling with spot lights, uPVC window to the side elevation, two radiators. There is a chimney with space for a wood burner to be refitted.


FIRST FLOOR LANDING

Stairs from the kitchen lead to the first floor landing which provides access to the three bedrooms and bathroom.

MASTER BEDROOM
4.32m (14' 2") x 4.11m (13' 6")
Built in cupboard, smaller wall cupboard, wooden window to the side elevation, radiator, spotlights to ceiling, radiator.

BEDROOM TWO
Wood panel flooring, spotlights to ceiling, secondary glazed wood window to the side elevation, radiator.

BEDROOM THREE
5.24m (17' 2") x 1.65m (5' 5")
Wood panel flooring and double glazed uPVC window to the side elevation. Wooden doors to:


DRESSING ROOM

4.36m (14' 4") x 1.23m (4' 0")

BATHROOM
3.28m (10' 9") x 1.94m (6' 4")
White suite comprising panel bath with electric shower over, low level flush w.c., pedestal sink, bidet, double glazed window to the side elevation, radiator.

EXTERNALLY
The rear garden is accessed via a wooden gate in the fencing which leads round to the garden and a further door into the patio area The garden is laid mainly to lawn with magnolia tree and border with mature shrubs and views over neighbouring fields. The oil tank is also sited here.

SUMMERHOUSE
4.93m (16' 2") x 3.02m (9' 11")
Pedestrian Entrance door leading from the garden, power supply with fuse box.

SHED
3.68m (12' 1") x 5.49m (18' 0")
With two doors which could be converted to a workshop


GENERAL REMARKS

POSSESSION
Vacant possession will be given upon completion.

VIEWING
Strictly by appointment with Auction House.

SERVICES
Prospective purchasers are advised to make their own enquiries of the relevant statutory authorities. NB: Services, Apparatus and Equipment have not been tested by Auction House and therefore cannot be verified as being in working order. The buyer is advised to obtain verification from their Solicitor/Surveyor.

These particulars are believed to be correct but their accuracy is not guaranteed and they do not form any part of any contract. Information relating to Rating and Town & Country Planning matters has been obtained by verbal enquiry only. Prospective purchasers are advised to make their own enquiries of the appropriate Authority. All measurements, areas and distances are approximate only. Potential purchasers are advised to check them

Additional Fees
Administration Charge: £1,200.00

Buyer's Premium: 1.2% on exchange of contracts of Final Hammer Price
Disbursements: Please see the legal pack for any disbursements listed that may become payable by the purchaser on completion

Important Notice to Prospective Buyers

We draw your attention to the Special Conditions of Sale within the Legal Pack, referring to other charges in addition to the purchase price which may become payable. Such costs may include Search Fees, reimbursement of Sellers costs and Legal Fees, and Transfer Fees amongst others.

Administration Charge

Administration Charge is a non-refundable £1,800 inc VAT payable on the fall of the virtual gavel.

Loading the bidding panel...

* Guide | £180,000
  • Unconditional (Immediate Exchange)

Call the team on 01427 616436 for more information

Related Documents

Disclaimer: The map preview provided above is for general guidance only and may not accurately reflect the exact location or surrounding buildings. Prospective buyers and interested parties are strongly advised to independently verify the precise location and surroundings before bidding.

Note

  1. MONEY LAUNDERING REGULATIONS: Intending purchasers will be asked to produce identification documentation at a later stage and we would ask for your co-operation in order that there will be no delay in agreeing the sale.
  2. General : While we endeavour to make our sales particulars fair, accurate and reliable, they are only a general guide to the property and, accordingly, if there is any point which is of particular importance to you, please contact the office and we will be pleased to check the position for you, especially if you are contemplating travelling some distance to view the property.
  3. Measurements: These approximate room sizes are only intended as general guidance. You must verify the dimensions carefully before ordering carpets or any built-in furniture.
  4. Services: Please note we have not tested the services or any of the equipment or appliances in this property, accordingly we strongly advise prospective buyers to commission their own survey or service reports before finalising their offer to purchase.
  5. THESE PARTICULARS ARE ISSUED IN GOOD FAITH BUT DO NOT CONSTITUTE REPRESENTATIONS OF FACT OR FORM PART OF ANY OFFER OR CONTRACT. THE MATTERS REFERRED TO IN THESE PARTICULARS SHOULD BE INDEPENDENTLY VERIFIED BY PROSPECTIVE BUYERS OR TENANTS. NEITHER AUCTION HOUSE NOR ANY OF ITS EMPLOYEES OR AGENTS HAS ANY AUTHORITY TO MAKE OR GIVE ANY REPRESENTATION OR WARRANTY WHATEVER IN RELATION TO THIS PROPERTY.