Auction House / Hull & East Yorkshire

  • For Sale By Conditional Online Auction
  • Guide Price* : £130,000
  • Bidding Opens 02/02/2026 12:00

16 North Street, Bridlington, East Yorkshire, YO15 2DY

**DON'T MISS THE CHANCE TO SECURE A BARGAIN!** A well-presented five bedroom mid-terrace house currently used as a holiday let within the seaside town of Bridlington.

Viewing Details

Strictly by appointment only with the auctioneers on 0845 400 9900.

Location

Bridlington is a seaside town on the East Yorkshire coast that attracts both holidaymakers and long-term residents. The town benefits from a wide range of amenities, including shops, cafés, and restaurants, as well as schools, Bridlington Hospital, and GP services. With excellent transport links, Bridlington provides convenient access to Hull, York, Scarborough, and the wider Yorkshire region via road and regular rail and bus services.

Description

We are proud to offer by the modern auction method, 16 North Street which is a spacious five-bedroom mid-terrace property that offers an excellent opportunity for buyers seeking a versatile and attractively priced home or investment. Currently operating as a successful holiday let, the property is equally well-suited as a generous family home or an investment with excellent rental potential. Spread across multiple floors, the property offers well-proportioned bedrooms, a bright living area, and a practical kitchen space, providing plenty of room for guests or growing families. The property briefly comprises: Living Room, Kitchen, five Bedrooms and two Bathrooms and benefits from double glazing and gas central heating. Externally, the property features a low-maintenance garden.

Accommodation

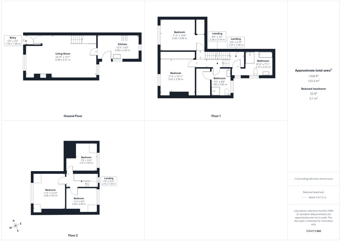
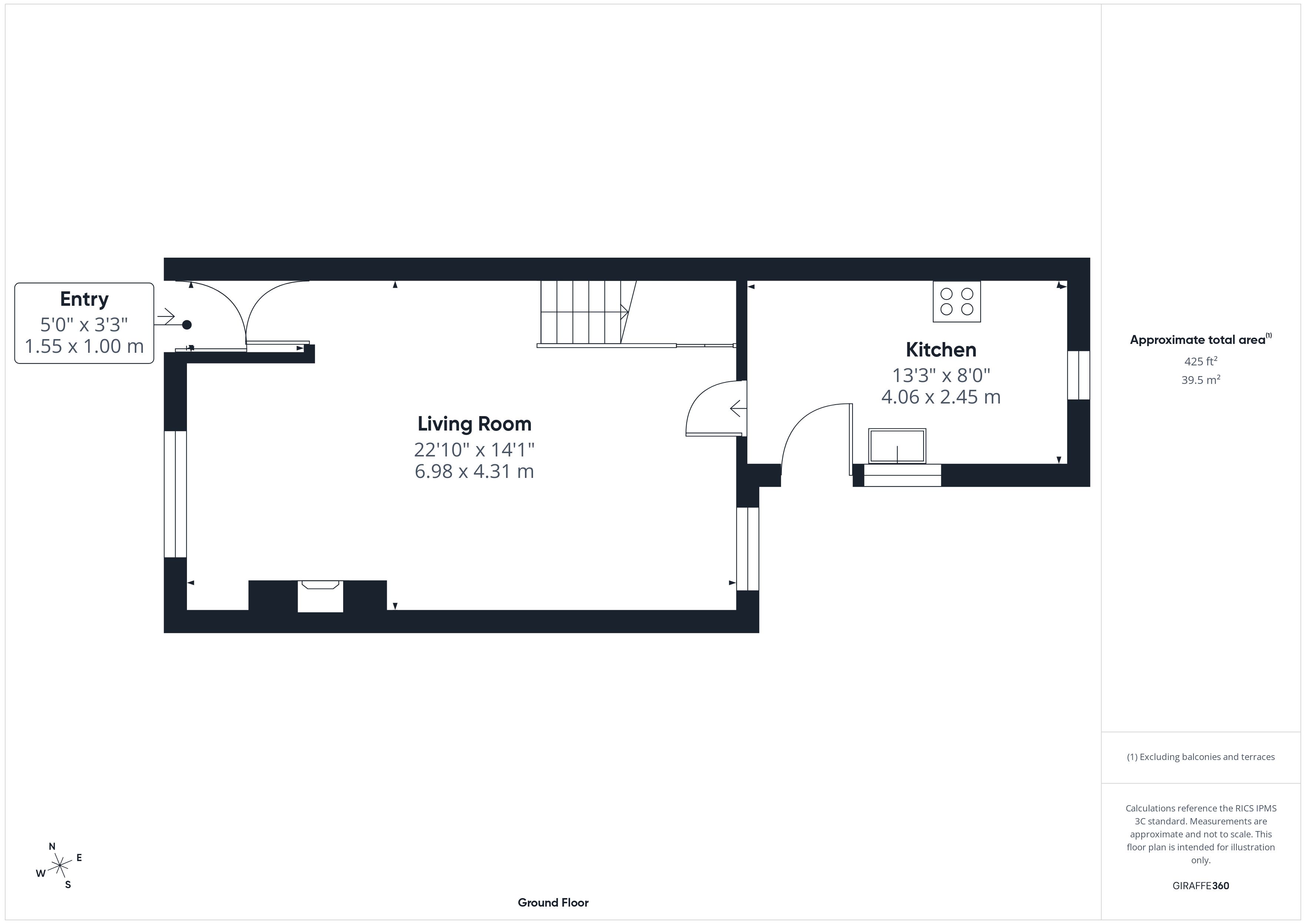
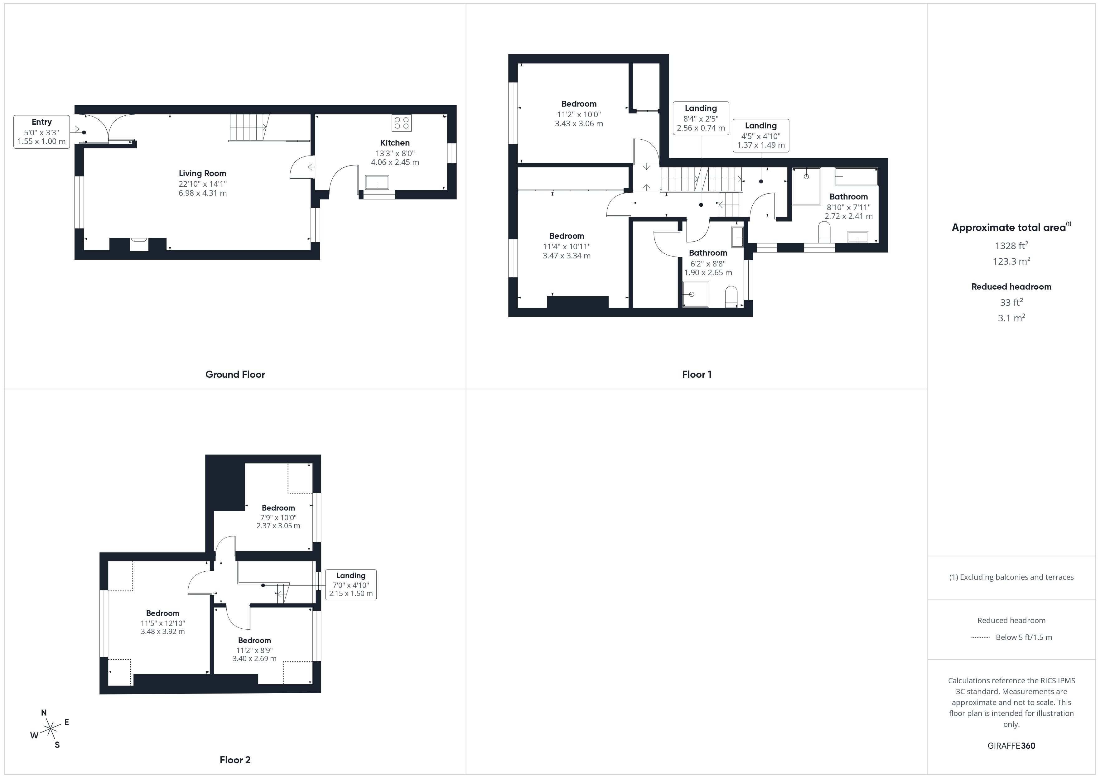
Ground Floor

Entry - 5'0" x 3'3" (1.55m x 1.00m)

Living Room - 22'10" x 14'1" (6.98m x 4.31m)

Windows to front and rear. Two radiators. Staircase to first floor with understairs cupboard. Leading to:

Kitchen - 13'3" x 8'0" (4.06m x 2.45m)

Range of white shaker-style wall and base units with laminate work surface. Tiled floor. Door to rear. Windows to rear and side elevations.

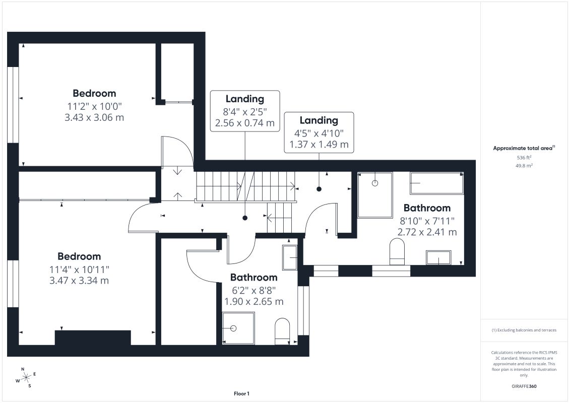
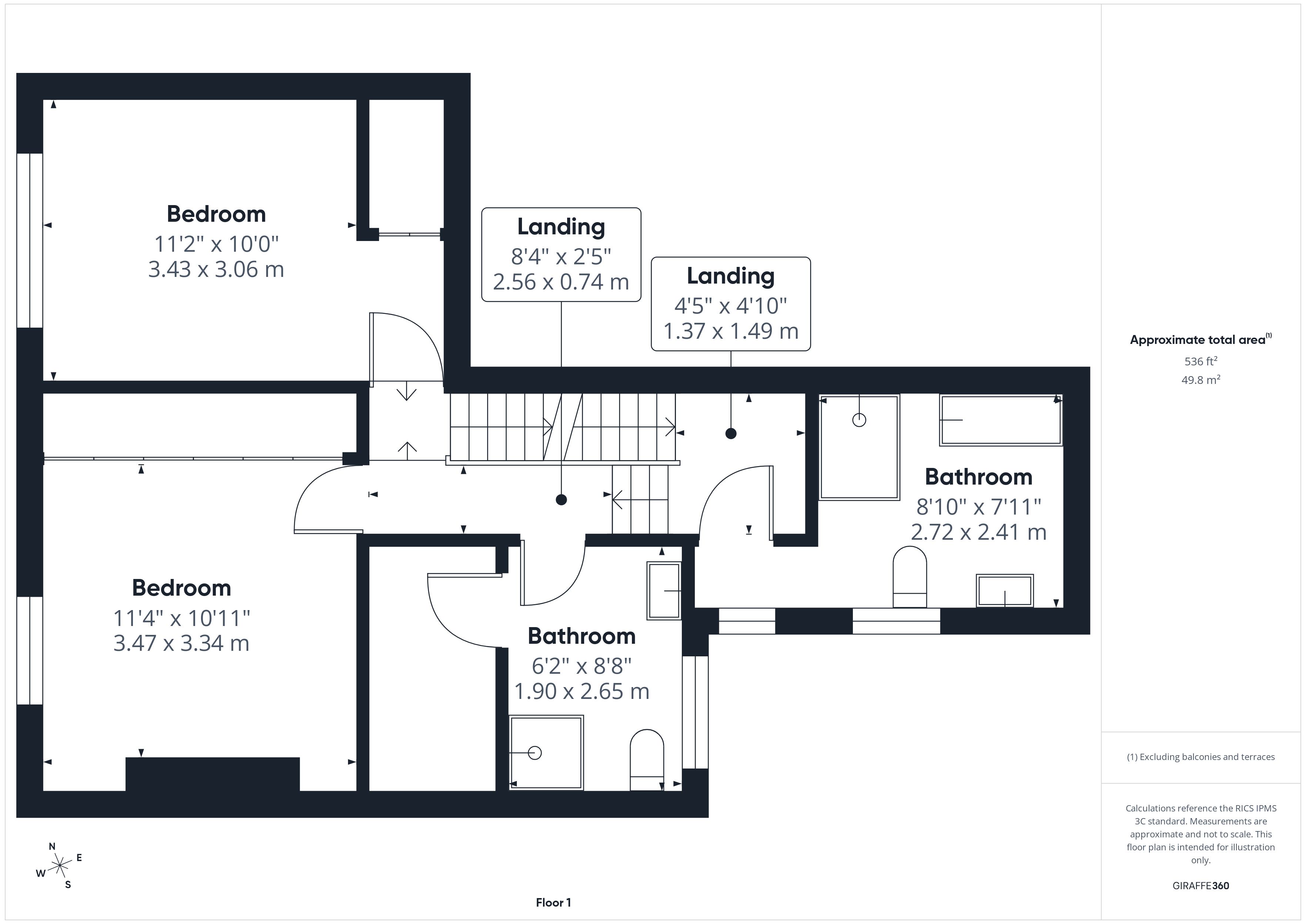
First Floor

Central landing leading to:

Bedroom - 11'4" x 10'11" (3.47m x 3.34m)

Fitted wardrobes. Window to front. Radiator.

Bedroom - 11'2" x 10'0" (3.43m x 3.06m)

Window to front. Radiator.

Bathroom - 6'2" x 8'8" (1.90m x 2.65m)

Three piece bathroom suite comprising:- low flush WC, sink with pedestal, shower, chrome radiator. Window to rear.

Bathroom - 8'10" x 7'11" (2.72m x 2.41m)

Bathroom suite comprising:- low flush WC, sink with pedestal, shower, corner bath, chrome radiator. Window to side elevation.

Second Floor

Central landing leading to:

Bedroom - 11'5" x 12'10" (3.48m x 3.92m)

Radiator. Window to front.

Bedroom - 11'2" x 8'9" (3.40m x 2.69m)

Radiator. Window to rear.

Bedroom - 7'9" x 10'0" (2.37m x 3.05m)

Radiator. Window to rear.

Exterior

Low maintenance rear garden laid to artificial grass.

Tenure

Freehold with vacant possession on completion.

Note

Auctioneer Comments

Alternative (Modern) method of Auction meaning - At the fall of the gavel or acceptance of an offer by the Seller, the Buyer will enter an exclusivity agreement with the seller. The buyer shall pay a non-refundable exclusivity fee to the value of 2.5% + VAT of the sales price or £3,500 plus VAT whichever is the greater. This symbolises the start of an exclusivity period of sale which will require an exchange of contracts to take place within 28 days of the buyer's solicitor receiving the contract pack. Completion of the sale must then take place within a further 28 days of the date of exchange of contracts. This is paid to reserve the property to the buyer during the Reservation Period and is paid in addition to the purchase price. This is considered within calculations for Stamp Duty Land Tax.

Full details and terms of exclusivity can be obtained from Auction House Hull & East Yorkshire.

Council Tax Band

A

Important Notice to Prospective Buyers

We draw your attention to the Special Conditions of Sale within the Legal Pack, referring to other charges in addition to the purchase price which may become payable. Such costs may include Search Fees, reimbursement of Sellers costs and Legal Fees, and Transfer Fees amongst others.

Administration Charge

NO ADMIN CHARGE IS PAYABLE ON THIS LOT

Disbursements

An exclusivity agreement of 3% inc. VAT of the purchase price, subject to a minimum of £4,200 inc VAT, payable on acceptance of an offer.

Loading the bidding panel...

Make An Enquiry

Submit an enquiry for this lot and someone will be in contact shortly.

 
 
 
* Guide | £130,000
  • 5 Bedrooms
  • Tenure: Freehold with vacant possession on completion.
  • Conditional (Flexible Exchange)

Call the team on 0845 400 9900 for more information

Disclaimer: The map preview provided above is for general guidance only and may not accurately reflect the exact location or surrounding buildings. Prospective buyers and interested parties are strongly advised to independently verify the precise location and surroundings before bidding.

Note

  1. MONEY LAUNDERING REGULATIONS: Intending purchasers will be asked to produce identification documentation at a later stage and we would ask for your co-operation in order that there will be no delay in agreeing the sale.
  2. General : While we endeavour to make our sales particulars fair, accurate and reliable, they are only a general guide to the property and, accordingly, if there is any point which is of particular importance to you, please contact the office and we will be pleased to check the position for you, especially if you are contemplating travelling some distance to view the property.
  3. Measurements: These approximate room sizes are only intended as general guidance. You must verify the dimensions carefully before ordering carpets or any built-in furniture.
  4. Services: Please note we have not tested the services or any of the equipment or appliances in this property, accordingly we strongly advise prospective buyers to commission their own survey or service reports before finalising their offer to purchase.
  5. THESE PARTICULARS ARE ISSUED IN GOOD FAITH BUT DO NOT CONSTITUTE REPRESENTATIONS OF FACT OR FORM PART OF ANY OFFER OR CONTRACT. THE MATTERS REFERRED TO IN THESE PARTICULARS SHOULD BE INDEPENDENTLY VERIFIED BY PROSPECTIVE BUYERS OR TENANTS. NEITHER AUCTION HOUSE NOR ANY OF ITS EMPLOYEES OR AGENTS HAS ANY AUTHORITY TO MAKE OR GIVE ANY REPRESENTATION OR WARRANTY WHATEVER IN RELATION TO THIS PROPERTY.