Auction House / Hull & East Yorkshire

  • For Sale By Unconditional Online Auction
  • Guide Price* : £70,000
  • Bidding Opens 12/01/2026 13:00
  • Lot 63

8 South View, Patrington, Hull, East Yorkshire, HU12 0PX

A cosy mid-terrace house within the village of Patrington Haven.

Viewing Details

Strictly by appointment with the Auctioneers on 0845 400 9900.

Location

Patrington Haven is a small village located approximately 9 miles south-east of the town of Hedon and 2 miles south-west of the North Sea coast. The village is primarily known for Patrington Haven Leisure Park, which features a range of facilities including a gym, spa, bar and restaurant. The village itself benefits from a village shop, a post office, and a primary school. The area is rich with history and stunning views, making it an excellent choice for holiday lets or buy to lets investments.

Description

This cosy one bedroom mid-terrace house provides an opportunity for first time buyers or motivated investors to secure a property requiring minimal work, within a peaceful village location. The property has previously been let in its current condition for £6,300pa. The accommodation briefly comprises Kitchen, Living Room, Sunroom, Bedroom and Bathroom. The property benefits from double glazing and gas central heating.

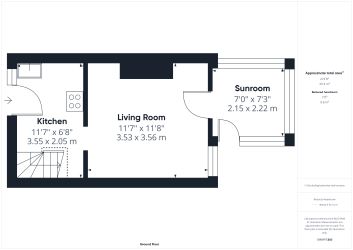
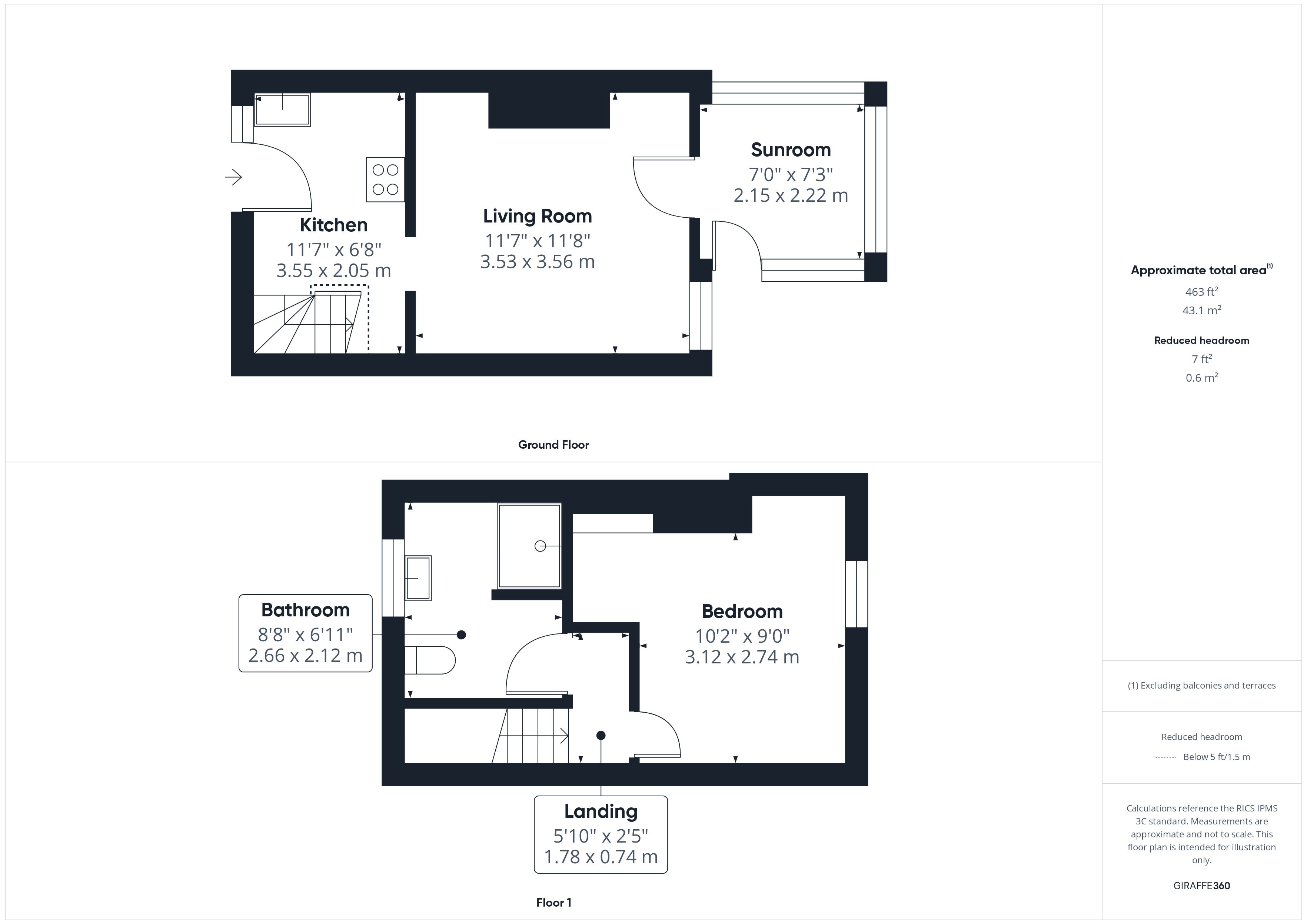
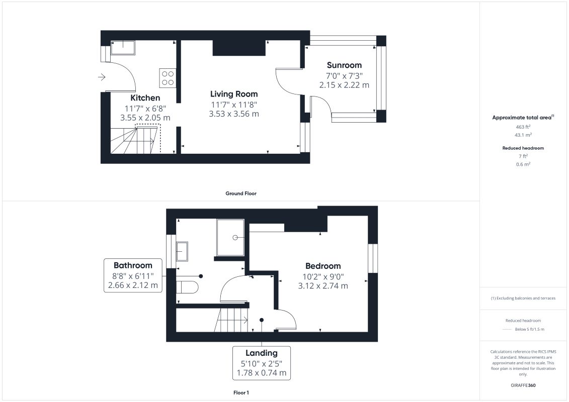
Accommodation

Kitchen - 11'7" x 6'8" (3.55m x 2.05m)

Range of wall and base units. Electric hob and oven with extractor fan above. Radiator.

Living Room - 11'7" x 11'8" (3.53m x 3.56m)

Window to the rear. Radiator.

Sunroom - 7'0" x 7'3" (2.15m x 2.22m)

Door to the rear.

Bedroom - 10'2" x 9'0" (3.12m x 2.74m)

Window to the rear. Radiator.

Bathroom - 8'8" x 6'11" (2.66m x 2.12m)

Walk-in shower, low-level W/C, pedestal wash hand basin, chrome radiator. Combi-boiler. Window to the front.

Exterior

Gravelled rear garden.

Tenure

Freehold with vacant possession.

Note

Method of Sale

The property will be offered for sale by online auction with bidding commencing at 12 noon on Monday 12th January 2026 and closing on Tuesday 13th January 2026 at 1.00pm. For further legal information relating to this lot please log on to auctionhouse.co.uk/hullandeastyorkshire.

Note

Conditions of Sale

The property will be sold subject to conditions of sale, copies of which will be available for inspection at the auctioneer’s offices, with the solicitors and online at auctionhouse.co.uk/hullandeastyorkshire before the date of the auction.

Council Tax Band

A

Lot Type

Residential Investments

Important Notice to Prospective Buyers

We draw your attention to the Special Conditions of Sale within the Legal Pack, referring to other charges in addition to the purchase price which may become payable. Such costs may include Search Fees, reimbursement of Sellers costs and Legal Fees, and Transfer Fees amongst others.

Buyers Premium

The purchaser will be required to pay a buyer’s premium of £1,200 (£1,000 + VAT) in addition to the purchase price of the property.

Administration Charge

The purchaser will be required to pay an administration charge of 0.3% subject to a minimum of £1,200 (£1,000 plus VAT) in addition to the purchase price of the property.

Disbursements

Please refer to the legal pack for any disbursements listed that may become payable by the purchaser upon completion.

Loading the bidding panel...

Make An Enquiry

Submit an enquiry for this lot and someone will be in contact shortly.

 
 
 
* Guide | £70,000
  • 2 Bedrooms
  • Tenure: Freehold with vacant possession.
  • Unconditional (Immediate Exchange)

Call the team on 0845 400 9900 for more information

Disclaimer: The map preview provided above is for general guidance only and may not accurately reflect the exact location or surrounding buildings. Prospective buyers and interested parties are strongly advised to independently verify the precise location and surroundings before bidding.

Note

  1. MONEY LAUNDERING REGULATIONS: Intending purchasers will be asked to produce identification documentation at a later stage and we would ask for your co-operation in order that there will be no delay in agreeing the sale.
  2. General : While we endeavour to make our sales particulars fair, accurate and reliable, they are only a general guide to the property and, accordingly, if there is any point which is of particular importance to you, please contact the office and we will be pleased to check the position for you, especially if you are contemplating travelling some distance to view the property.
  3. Measurements: These approximate room sizes are only intended as general guidance. You must verify the dimensions carefully before ordering carpets or any built-in furniture.
  4. Services: Please note we have not tested the services or any of the equipment or appliances in this property, accordingly we strongly advise prospective buyers to commission their own survey or service reports before finalising their offer to purchase.
  5. THESE PARTICULARS ARE ISSUED IN GOOD FAITH BUT DO NOT CONSTITUTE REPRESENTATIONS OF FACT OR FORM PART OF ANY OFFER OR CONTRACT. THE MATTERS REFERRED TO IN THESE PARTICULARS SHOULD BE INDEPENDENTLY VERIFIED BY PROSPECTIVE BUYERS OR TENANTS. NEITHER AUCTION HOUSE NOR ANY OF ITS EMPLOYEES OR AGENTS HAS ANY AUTHORITY TO MAKE OR GIVE ANY REPRESENTATION OR WARRANTY WHATEVER IN RELATION TO THIS PROPERTY.