Auction House / South Yorkshire

  • For Sale By Unconditional Online Auction
  • Guide Price* : £200,000
  • Bidding Opens 12/01/2026 13:00

Development Land at Pitt Street Wombwell, Barnsley, South Yorkshire, S73 8AR

Register - auctionhouse.co.uk/southyorkshire

Description

Register - auctionhouse.co.uk/southyorkshire

FOR SALE VIA NATIONAL ONLINE AUCTION. BIDDING OPENS ON MONDAY 1ST DECEMBER AT 1PM AND CLOSES TUESDAY 2ND DECEMBER FROM 1PM. REGISTER TO BID!

Auction House South Yorkshire would like to present this development plot of land for sale in Wombwell, Barnsley and offered to the market via online auction.

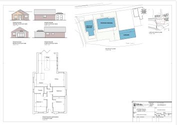
This lot consists of a development plot of land with planning permission approved for the erection of two detached bungalows. See plans attached and on Barnsley Council website - 2024/0616. Alternatively, the site had approved planning for townhouses, indicating flexibility for alternative development options (subject to planning permission), making it ideal for a buyer with their own vision or tailored needs.

Close to a range of amenities, transport links, parks, walking spots, and local schools.

Tenure: Freehold

Important Notice to Prospective Buyers

We draw your attention to the Special Conditions of Sale within the Legal Pack, referring to other charges in addition to the purchase price which may become payable. Such costs may include Search Fees, reimbursement of Sellers costs and Legal Fees, and Transfer Fees amongst others.

Administration Charge

£3,600 inc vat payable upon the fall of the virtual gavel

Loading the bidding panel...

Make An Enquiry

Submit an enquiry for this lot and someone will be in contact shortly.

 
 
 
* Guide | £200,000
  • Unconditional (Immediate Exchange)

Call the team on 0114 223 0777 for more information

Disclaimer: The map preview provided above is for general guidance only and may not accurately reflect the exact location or surrounding buildings. Prospective buyers and interested parties are strongly advised to independently verify the precise location and surroundings before bidding.

Note

  1. MONEY LAUNDERING REGULATIONS: Intending purchasers will be asked to produce identification documentation at a later stage and we would ask for your co-operation in order that there will be no delay in agreeing the sale.
  2. General : While we endeavour to make our sales particulars fair, accurate and reliable, they are only a general guide to the property and, accordingly, if there is any point which is of particular importance to you, please contact the office and we will be pleased to check the position for you, especially if you are contemplating travelling some distance to view the property.
  3. Measurements: These approximate room sizes are only intended as general guidance. You must verify the dimensions carefully before ordering carpets or any built-in furniture.
  4. Services: Please note we have not tested the services or any of the equipment or appliances in this property, accordingly we strongly advise prospective buyers to commission their own survey or service reports before finalising their offer to purchase.
  5. THESE PARTICULARS ARE ISSUED IN GOOD FAITH BUT DO NOT CONSTITUTE REPRESENTATIONS OF FACT OR FORM PART OF ANY OFFER OR CONTRACT. THE MATTERS REFERRED TO IN THESE PARTICULARS SHOULD BE INDEPENDENTLY VERIFIED BY PROSPECTIVE BUYERS OR TENANTS. NEITHER AUCTION HOUSE NOR ANY OF ITS EMPLOYEES OR AGENTS HAS ANY AUTHORITY TO MAKE OR GIVE ANY REPRESENTATION OR WARRANTY WHATEVER IN RELATION TO THIS PROPERTY.