Auction House / East Anglia

  • For Sale By Unconditional Online Auction
  • Guide Price* : £275,000 + VAT
  • Bidding Opens 19/01/2026 13:00

Greyfriars House 18 - 20 Prince of Wales Road, Norwich, Norfolk, NR1 1LB

FOR SALE BY NATIONAL ONLINE AUCTION TUESDAY 20TH JANUARY 2025

PLEASE VISIT OUR WEBSITE FOR LEGAL PACKS AND TO REGISTER TO BID

Description

FOR SALE BY NATIONAL ONLINE AUCTION TUESDAY 20TH JANUARY 2025

PLEASE VISIT OUR WEBSITE FOR LEGAL PACKS AND TO REGISTER TO BID

Substantial city centre vacant commercial building extending to around 5,410 sq/ft

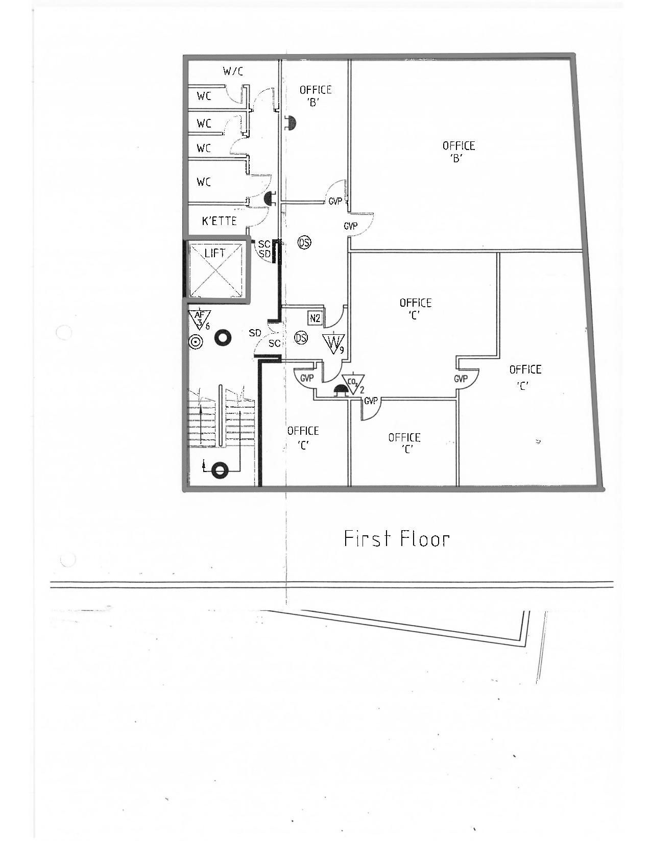
This prominent three storey freehold office building extends to around 5,410 sq/ft. The ground floor provides two self contained office/retail units and the first and second floor provides primarily open plan office accommodation accessed from a separate ground floor entrance.

The property benefits from suspended ceilings incorporating Cat 2 lighting, security alarm and air conditioning to part, internal lift (not currently in use), ground, first and second floor toilet facilities and disabled wc.

The upper two floors offer potential to convert to residential subject to the necessary consents.

Description The property is arranged over ground, first and second floor with a total net internal floor area of 5,423 sq ft (410.9 sq m)
Ground Floor Office 1,000 sq ft (92.9 sq m)
Ground Floor Retail 987 sq ft (91.7 sq m)
First Floor Office 1,675 sq ft (155.6 sq m)
Second Floor Office 1,748 sq ft (162.4 sq m)
Location The property is located on Prince of Wales Road, which is the main thoroughfare from the city centre and Tombland to the Riverside complex and train station. The area is a mixture of bars, offices, and residential accommodation and within easy walking distance to the main shopping areas of Chantry Place and Castle Quarter.
Rates The Valuation Office Agency website indicates that as from April 2023 the property have the following Rateable Values.

Ground Floor Retail £24,750
Ground and First Floor Offices £27,250
Second Floor Offices £22,000

These are not the annual rate payable. The rates payable will depend on the occupier's circumstances and can be obtained from www.gov.uk/correct-your-business-rates which includes a rates payable calculator.
Value Added Tax (VAT) Please note VAT will be applicable to this lot
Viewings Viewings are available on request

Please contact the Norwich Office to arrange your appointment.

Tenure: Freehold

EPC Rating: D

Important Notice to Prospective Buyers

We draw your attention to the Special Conditions of Sale within the Legal Pack, referring to other charges in addition to the purchase price which may become payable. Such costs may include Search Fees, reimbursement of Sellers costs and Legal Fees, and Transfer Fees amongst others.

Buyers Premium

Buyer's Premium - £960 inc VAT payable on exchange of contracts.

Administration Charge

Administration Charge is a non-refundable £1,200 inc VAT payable on the fall of the virtual gavel.

Loading the bidding panel...

Make An Enquiry

Submit an enquiry for this lot and someone will be in contact shortly.

 
 
 
* Guide | £275,000 + VAT
  • Unconditional (Immediate Exchange)

Call the team on 01603 505 100 for more information

Disclaimer: The map preview provided above is for general guidance only and may not accurately reflect the exact location or surrounding buildings. Prospective buyers and interested parties are strongly advised to independently verify the precise location and surroundings before bidding.

Note

  1. MONEY LAUNDERING REGULATIONS: Intending purchasers will be asked to produce identification documentation at a later stage and we would ask for your co-operation in order that there will be no delay in agreeing the sale.
  2. General : While we endeavour to make our sales particulars fair, accurate and reliable, they are only a general guide to the property and, accordingly, if there is any point which is of particular importance to you, please contact the office and we will be pleased to check the position for you, especially if you are contemplating travelling some distance to view the property.
  3. Measurements: These approximate room sizes are only intended as general guidance. You must verify the dimensions carefully before ordering carpets or any built-in furniture.
  4. Services: Please note we have not tested the services or any of the equipment or appliances in this property, accordingly we strongly advise prospective buyers to commission their own survey or service reports before finalising their offer to purchase.
  5. THESE PARTICULARS ARE ISSUED IN GOOD FAITH BUT DO NOT CONSTITUTE REPRESENTATIONS OF FACT OR FORM PART OF ANY OFFER OR CONTRACT. THE MATTERS REFERRED TO IN THESE PARTICULARS SHOULD BE INDEPENDENTLY VERIFIED BY PROSPECTIVE BUYERS OR TENANTS. NEITHER AUCTION HOUSE NOR ANY OF ITS EMPLOYEES OR AGENTS HAS ANY AUTHORITY TO MAKE OR GIVE ANY REPRESENTATION OR WARRANTY WHATEVER IN RELATION TO THIS PROPERTY.