Auction House / West Yorkshire

  • For Sale By Unconditional Online Auction
  • Guide Price* : £90,000
  • Auction Ended 24/10/2025
  • Lot 80

110 Dawnay Road, Bradford, West Yorkshire, BD5 9LQ

FOR SALE BY ONLINE AUCTION ON TUESDAY 11TH NOVEMBER 2025. BIDDING OPENS 10TH NOVEMBER 2025.

Description

This four bed bedroom end terrace is ideal for an investor looking for a refurbishment project. Internally the house offers generous sized accommodation but it is in poor condition throughout. It also benefits from a driveway, plus a front and good sized rear garden,

Its located in a residential estate 1.5 miles south west of Bradford City Centre. It’s ideally located next to Horton Park and Horton Park Primary School. Amenities including shops, restaurants and supermarkets are within an easy drive.

Please note: a 14 day completion applies to this lot.

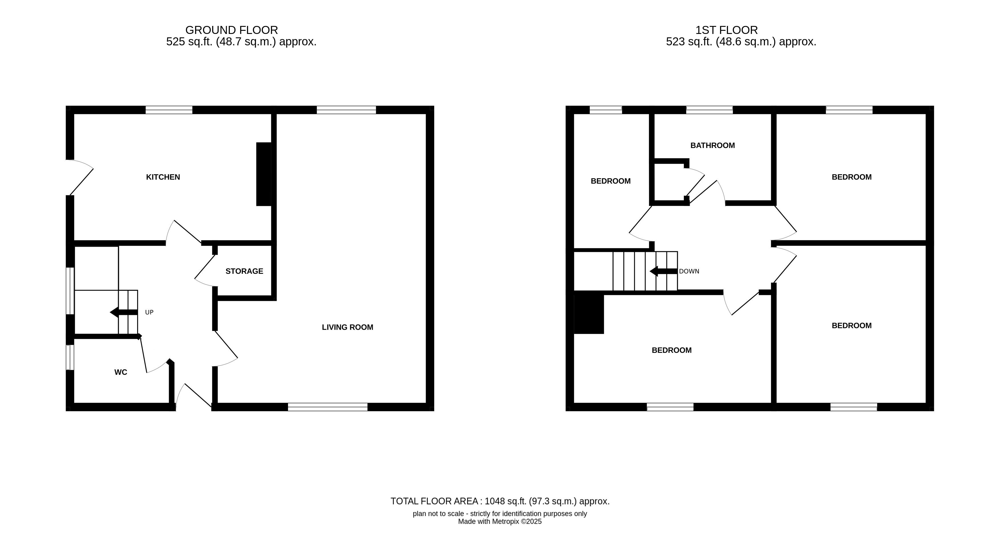
Accommodation

Ground Floor: Living room, kitchen and WC
First Floor: Four bedrooms and a bathroom
Externally: Front and rear gardens, driveway.

Tenure

Freehold

Council Tax Band

A

Lot Type

Residential

EPC Rating

D

Important Notice to Prospective Buyers

We draw your attention to the Special Conditions of Sale within the Legal Pack, referring to other charges in addition to the purchase price which may become payable. Such costs may include Search Fees, reimbursement of Sellers costs and Legal Fees, and Transfer Fees amongst others.

Buyers Premium

£1,500 inc VAT

Administration Charge

Administration Charge is a non-refundable £1,200 inc VAT payable on the fall of the virtual gavel.

Loading the bidding panel...

* Guide | £90,000
  • 4 Bedrooms
  • Tenure: Freehold
  • Unconditional (Immediate Exchange)

Call the team on 0113 393 3482 for more information

Disclaimer: The map preview provided above is for general guidance only and may not accurately reflect the exact location or surrounding buildings. Prospective buyers and interested parties are strongly advised to independently verify the precise location and surroundings before bidding.

Note

  1. MONEY LAUNDERING REGULATIONS: Intending purchasers will be asked to produce identification documentation at a later stage and we would ask for your co-operation in order that there will be no delay in agreeing the sale.
  2. General : While we endeavour to make our sales particulars fair, accurate and reliable, they are only a general guide to the property and, accordingly, if there is any point which is of particular importance to you, please contact the office and we will be pleased to check the position for you, especially if you are contemplating travelling some distance to view the property.
  3. Measurements: These approximate room sizes are only intended as general guidance. You must verify the dimensions carefully before ordering carpets or any built-in furniture.
  4. Services: Please note we have not tested the services or any of the equipment or appliances in this property, accordingly we strongly advise prospective buyers to commission their own survey or service reports before finalising their offer to purchase.
  5. THESE PARTICULARS ARE ISSUED IN GOOD FAITH BUT DO NOT CONSTITUTE REPRESENTATIONS OF FACT OR FORM PART OF ANY OFFER OR CONTRACT. THE MATTERS REFERRED TO IN THESE PARTICULARS SHOULD BE INDEPENDENTLY VERIFIED BY PROSPECTIVE BUYERS OR TENANTS. NEITHER AUCTION HOUSE NOR ANY OF ITS EMPLOYEES OR AGENTS HAS ANY AUTHORITY TO MAKE OR GIVE ANY REPRESENTATION OR WARRANTY WHATEVER IN RELATION TO THIS PROPERTY.