Auction House / Hull & East Yorkshire

  • For Sale By Unconditional Online Auction
  • Guide Price* : £130,000
  • Auction Ended 11/11/2025
  • Lot 79

180 Beverley Road, Hull, East Yorkshire, HU3 1UP

A mid-terrace retail unit with two bedroom maisonette above.

Viewing Details

Strictly by appointment with Auction House on 0845 400 99 00.

Location

The property benefits from frontage directly onto Beverley Road, which is a vibrant area and is one of the main arterial roads into Hull City Centre. Ideally located close to several residential developments within the West area of Hull, Beverley Road is home to a large number of shops, restaurants and supermarkets.

Description

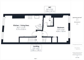
A retail sales shop with a spacious two-bedroom maisonette above. The retail area has the benefit of a generously sized shop floor, kitchenette, WC and office. To the rear, there is a large outside covered storage area and access. The shop is currently occupied by a long established DIY business, but is being sold with vacant possession. To the upstairs, the accommodation comprises Kitchen, Living/Dining Area, Bedroom, WC, Staircase leading to further Bedroom, Storage Room and Bathroom. The property benefits from a separate access at the front, which could allow potential to separate the shop and maisonette completely (subject to necessary planning permissions). On street parking. The property benefits from double glazing and gas central heating.

Accommodation

Ground Floor: Shop, Kitchenette, WC, Office

First & Second Floor: Kitchen, Living/Dining Area, Bedroom, WC, Staircase leading to further Bedroom, Storage Room and Bathroom.

Exterior

Seperate access to the maisonette from Beverley Road. On street parking. Covered storage area to the rear.

Tenure

Freehold. Vacant possession on completion.

Note

Method of Sale

The property will be offered for sale by online auction with bidding commencing at 13.00 pm on Monday 10th November 2025, and closing on Tuesday 11th November 2025, at 13.00 pm. To register to bid and further legal information relating to this lot please go to auctionhouse.co.uk/hullandeastyorkshire.

Note

Conditions of Sale

The property will be sold subject to conditions of sale, copies of which will be available for inspection at the auctioneer’s offices, with the solicitors and on-line at auctionhouse.co.uk/hullandeastyorkshire prior to the date of the auction.

Note

Guide Price

Guides are provided as an indication of each seller's minimum expectation. They are not necessarily figures which a property will sell for and may change at any time prior to the auction. Each property will be offered subject to a Reserve (a figure below which the Auctioneer cannot sell the property during the auction) which we expect will be set within the Guide Range or no more than 10% above a single figure Guide.

Important Notice to Prospective Buyers

We draw your attention to the Special Conditions of Sale within the Legal Pack, referring to other charges in addition to the purchase price which may become payable. Such costs may include Search Fees, reimbursement of Sellers costs and Legal Fees, and Transfer Fees amongst others.

Buyers Premium

The purchaser will be required to pay a buyer's premium of £1,200 (£1,000 plus VAT) in addition to the purchase price of the property.

Administration Charge

The purchaser will be required to pay an administration charge of £1,200 (£1,000 plus VAT) in addition to the purchase price of the property.

Disbursements

Please see the legal pack for any disbursements listed that may become payable by the purchaser on completion.

Loading the bidding panel...

* Guide | £130,000
  • 2 Bedrooms
  • Tenure: Freehold. Vacant possession on completion.
  • Unconditional (Immediate Exchange)

Call the team on 0845 400 9900 for more information

Disclaimer: The map preview provided above is for general guidance only and may not accurately reflect the exact location or surrounding buildings. Prospective buyers and interested parties are strongly advised to independently verify the precise location and surroundings before bidding.

Note

  1. MONEY LAUNDERING REGULATIONS: Intending purchasers will be asked to produce identification documentation at a later stage and we would ask for your co-operation in order that there will be no delay in agreeing the sale.
  2. General : While we endeavour to make our sales particulars fair, accurate and reliable, they are only a general guide to the property and, accordingly, if there is any point which is of particular importance to you, please contact the office and we will be pleased to check the position for you, especially if you are contemplating travelling some distance to view the property.
  3. Measurements: These approximate room sizes are only intended as general guidance. You must verify the dimensions carefully before ordering carpets or any built-in furniture.
  4. Services: Please note we have not tested the services or any of the equipment or appliances in this property, accordingly we strongly advise prospective buyers to commission their own survey or service reports before finalising their offer to purchase.
  5. THESE PARTICULARS ARE ISSUED IN GOOD FAITH BUT DO NOT CONSTITUTE REPRESENTATIONS OF FACT OR FORM PART OF ANY OFFER OR CONTRACT. THE MATTERS REFERRED TO IN THESE PARTICULARS SHOULD BE INDEPENDENTLY VERIFIED BY PROSPECTIVE BUYERS OR TENANTS. NEITHER AUCTION HOUSE NOR ANY OF ITS EMPLOYEES OR AGENTS HAS ANY AUTHORITY TO MAKE OR GIVE ANY REPRESENTATION OR WARRANTY WHATEVER IN RELATION TO THIS PROPERTY.