Auction House / Cheshire, Staffordshire & Shropshire

  • For Sale By Unconditional Online Auction
  • Guide Price* : £15,000 - £20,000
  • Auction Ended 25/11/2024
  • Lot 8

Land on West Side of Riverside Walk, Neston, Merseyside, CH64 0TT

FOR SALE VIA ONLINE UNCONDITIONAL AUCTION. BIDDING OPENS MONDAY 25TH NOVEMBER & CLOSES TUESDAY 26TH NOVEMBER. BY AUCTION HOUSE NORTH WALES

Description

FOR SALE VIA ONLINE UNCONDITIONAL AUCTION. BIDDING OPENS MONDAY 25TH NOVEMBER & CLOSES TUESDAY 26TH NOVEMBER. BY AUCTION HOUSE NORTH WALES

PARCEL OF LAND IN DESIRABLE LOCATION
MEASURING AT APPROX 0.2 ACRES
CLOSE TO VILLAGE OF LITTLE NESTON
GUIDE PRICE £15,000 - £20,000

Exceptional Building Plot (STPP) on The Wirral Peninsula with Stunning Estuary Views.

Presenting an outstanding building plot in Little Neston, Cheshire, located on the picturesque Wirral Peninsula. This prime site offers breath-taking views of the Dee Estuary, framed by the charming backdrop of Wales, and is just a short stroll along the King Charles III nature path to the delightful village of Parkgate.

The surrounding area boasts a wealth of amenities, including the Wirral Way, Ness Gardens, and the RSPB Estuary Reserve, all featuring numerous walking paths. You'll also find a range of historic pubs and quaint villages nearby, along with easy access to the historic city of Chester.

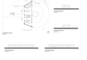
In the past, previous owners proposed plans for two two-storey detached houses, which were not approvable due to the plans location within an area of influence. However, a new development plan now permits the construction of footings or pads on the perimeter boundary, outside this restricted zone, effectively overcoming previous limitations.

While the updated development plan has yet to be submitted, it will require structural engineering calculations and plans to accompany the application.

There are no tree preservation orders affecting the plot, and the property features an extensive road frontage, offering ample parking space.

The current vendor, who intended to develop a single family home on this plot, is now selling due to a family relocation. Don't miss this rare opportunity to create your dream home in a truly breath-taking location!

PLEASE NOTE These details are indicative and we recommend any interested parties do carry out their own, thorough due diligence in good time prior to the auction taking place.

Tenure: Freehold

Important Notice to Prospective Buyers

We draw your attention to the Special Conditions of Sale within the Legal Pack, referring to other charges in addition to the purchase price which may become payable. Such costs may include Search Fees, reimbursement of Sellers costs and Legal Fees, and Transfer Fees amongst others.

Buyers Premium

£1200 inc VAT payable on exchange of contracts

Administration Charge

£1200 inc VAT payable on exchange of contracts

Disbursements

Please see the legal pack for any disbursements listed that may become payable by the purchaser on completion.

Loading the bidding panel...

* Guide | £15,000 - £20,000
  • Unconditional (Immediate Exchange)

Call the team on 0345 646 2350 for more information

Disclaimer: The map preview provided above is for general guidance only and may not accurately reflect the exact location or surrounding buildings. Prospective buyers and interested parties are strongly advised to independently verify the precise location and surroundings before bidding.

Note

  1. MONEY LAUNDERING REGULATIONS: Intending purchasers will be asked to produce identification documentation at a later stage and we would ask for your co-operation in order that there will be no delay in agreeing the sale.
  2. General : While we endeavour to make our sales particulars fair, accurate and reliable, they are only a general guide to the property and, accordingly, if there is any point which is of particular importance to you, please contact the office and we will be pleased to check the position for you, especially if you are contemplating travelling some distance to view the property.
  3. Measurements: These approximate room sizes are only intended as general guidance. You must verify the dimensions carefully before ordering carpets or any built-in furniture.
  4. Services: Please note we have not tested the services or any of the equipment or appliances in this property, accordingly we strongly advise prospective buyers to commission their own survey or service reports before finalising their offer to purchase.
  5. THESE PARTICULARS ARE ISSUED IN GOOD FAITH BUT DO NOT CONSTITUTE REPRESENTATIONS OF FACT OR FORM PART OF ANY OFFER OR CONTRACT. THE MATTERS REFERRED TO IN THESE PARTICULARS SHOULD BE INDEPENDENTLY VERIFIED BY PROSPECTIVE BUYERS OR TENANTS. NEITHER AUCTION HOUSE NOR ANY OF ITS EMPLOYEES OR AGENTS HAS ANY AUTHORITY TO MAKE OR GIVE ANY REPRESENTATION OR WARRANTY WHATEVER IN RELATION TO THIS PROPERTY.