Auction House / Wales - Cardiff

  • For Sale By Unconditional Online Auction
  • Guide Price* : £185,000
  • Auction Ended 25/11/2024
  • Lot 10

49 Holyhead Road, Bangor, Gwynedd, LL57 2EU

FOR SALE VIA ONLINE UNCONDITIONAL AUCTION. BIDDING OPENS MONDAY 25TH NOVEMBER & CLOSES TUESDAY 26TH NOVEMBER.

Description

FOR SALE VIA ONLINE UNCONDITIONAL AUCTION. BIDDING OPENS MONDAY 25TH NOVEMBER & CLOSES TUESDAY 26TH NOVEMBER.

FREEHOLD BLOCK OF FLATS
3 X 2 BEDROOM SELF CONTAINED FLATS
HMO LICENCE IN PLACE FOR 3 SELF CONTAINED UNITS

GUIDE PRICE £185,000 (Plus Fees)

** UPDATE AS 12/11/2024 - There is now a tenancy in place for the top floor flat at £600pcm (Bills Excluded) until April 2025 we are advised.

This property will be sold via an online unconditional auction, unless an early sale is negotiated under auction terms. Please note, the auction date may be adjusted based on the availability of the legal pack.

Comprising three self-contained flats, this is a fantastic blank canvas for anyone looking to invest and increase value through refurbishment.

Location, Location, Location! Positioned at the upper end of Bangor, this property is ideally located, surrounded by vibrant local businesses like Jones Pizza and Reubens Coffee, right on your doorstep.

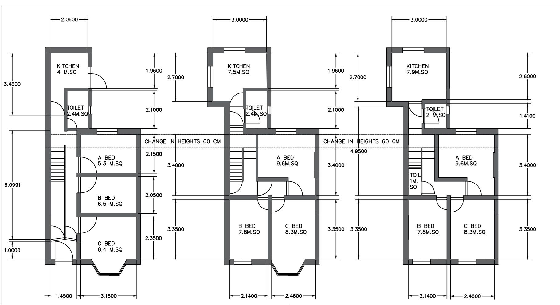
EPC RATINGS & FLOORSPACE

GF Flat A - EPC Rating D (39m2)
MF Flat B - EPC Rating C (45m2)
TF Flat C - EPC Rating D (42m2)

ROOM LIST - Please refer to the floorplan which is a visual indicative drawing to give you a guide. Please conduct own due diligence. One of the bedrooms as per plan is used as a living room/reception room.

Our client has received projected GDV estimates from a reputable local agent. With the right renovations and legal considerations, this property could potentially be valued at circa £330,000 on the open market, alongside an estimated rental income of approximately £37,000 per annum. A fantastic opportunity.

Don’t miss out on this incredible investment opportunity!

REGISTER FOR LEGAL PACK AND BIDDING ON OUR WEBSITE.

PLEASE NOTE No appliances have been tested by Auction House. Any measurements are approximate. We recommend any would be bidders conduct their own due diligence in good time prior to the auction taking place.

Tenure: Freehold

EPC Rating: Please See Legal Pack

Important Notice to Prospective Buyers

We draw your attention to the Special Conditions of Sale within the Legal Pack, referring to other charges in addition to the purchase price which may become payable. Such costs may include Search Fees, reimbursement of Sellers costs and Legal Fees, and Transfer Fees amongst others.

Buyers Premium

£1200 inc VAT payable on exchange of contracts.

Administration Charge

£1200 inc VAT payable on exchange of contracts.

Disbursements

Please see the legal pack for any disbursements listed that may become payable by the purchaser on completion.

Loading the bidding panel...

* Guide | £185,000
  • 6 Bedrooms
  • Unconditional (Immediate Exchange)

Call the team on 02920 475 184 for more information

Disclaimer: The map preview provided above is for general guidance only and may not accurately reflect the exact location or surrounding buildings. Prospective buyers and interested parties are strongly advised to independently verify the precise location and surroundings before bidding.

Note

  1. MONEY LAUNDERING REGULATIONS: Intending purchasers will be asked to produce identification documentation at a later stage and we would ask for your co-operation in order that there will be no delay in agreeing the sale.
  2. General : While we endeavour to make our sales particulars fair, accurate and reliable, they are only a general guide to the property and, accordingly, if there is any point which is of particular importance to you, please contact the office and we will be pleased to check the position for you, especially if you are contemplating travelling some distance to view the property.
  3. Measurements: These approximate room sizes are only intended as general guidance. You must verify the dimensions carefully before ordering carpets or any built-in furniture.
  4. Services: Please note we have not tested the services or any of the equipment or appliances in this property, accordingly we strongly advise prospective buyers to commission their own survey or service reports before finalising their offer to purchase.
  5. THESE PARTICULARS ARE ISSUED IN GOOD FAITH BUT DO NOT CONSTITUTE REPRESENTATIONS OF FACT OR FORM PART OF ANY OFFER OR CONTRACT. THE MATTERS REFERRED TO IN THESE PARTICULARS SHOULD BE INDEPENDENTLY VERIFIED BY PROSPECTIVE BUYERS OR TENANTS. NEITHER AUCTION HOUSE NOR ANY OF ITS EMPLOYEES OR AGENTS HAS ANY AUTHORITY TO MAKE OR GIVE ANY REPRESENTATION OR WARRANTY WHATEVER IN RELATION TO THIS PROPERTY.