Auction House / Hull & East Yorkshire

  • For Sale By Unconditional Online Auction
  • Guide Price* : £200,000
  • Auction Ended 21/10/2024
  • Lot 19

1 New Row, Fimber, Driffield, East Yorkshire, YO25 9LX

Location

The small, rural village of Fimber is located on the Yorkshire Wolds and is known for its friendly community and local charm. The Village is close to the estate village of Sledmere, and good local facilities can be found in the neighbouring villages of Wetwang and Fridaythorpe. A more comprehensive range of amenities are also available in the market towns of Driffield (9 miles) and Malton (12 miles), as well as the City of York, which is only 20 miles away.

Description

We are delighted to be instructed to offer to the market this part-completed renovation project that has been extended and partially transformed from a modest end-of-terrace house into what could become a wonderful family home. Unfortunately, a change in circumstances for the current owner means it is offered to the market as an unfinished project that offers developers and DIY enthusiasts an opportunity to complete the project to their own choice of finish. The property has been extended and upon completion, the property will provide five-bedroom accommodation.

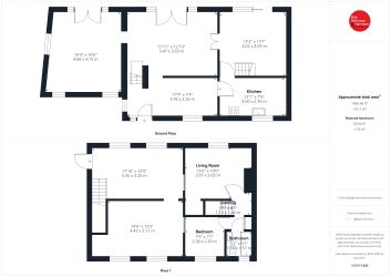
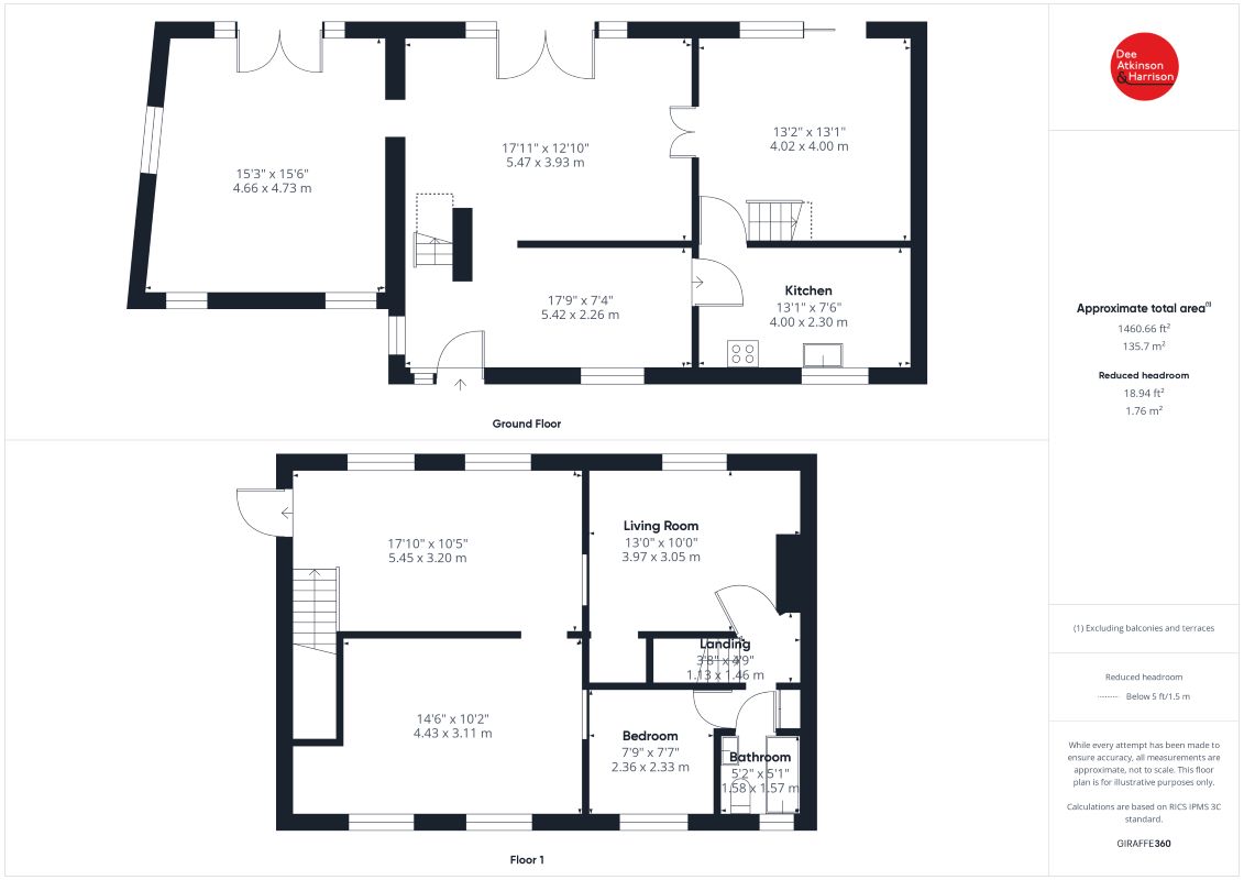
Accommodation

Ground Floor: Entrance hall, Lounge, Dining Room, Kitchen, Study
First Floor: 3 Bedrooms (with potential for 5), Family Bathroom, Balcony

Exterior

Gravel area to the front, with a large garden laid to lawn to the rear

Tenure

We understand that the property is freehold and is offered with vacant possession upon completion.

Important Notice to Prospective Buyers

We draw your attention to the Special Conditions of Sale within the Legal Pack, referring to other charges in addition to the purchase price which may become payable. Such costs may include Search Fees, reimbursement of Sellers costs and Legal Fees, and Transfer Fees amongst others.

Buyers Premium

The purchaser will be required to pay a buyer's premium of £600 (£500 plus VAT) in addition to the purchase price of the property.

Administration Charge

The purchaser will be required to pay an administration charge of £900 (£750 plus VAT) in addition to the purchase price of the property.

Disbursements

Please see the legal pack for any disbursements listed that may become payable by the purchaser on completion.

Loading the bidding panel...

* Guide | £200,000
  • 4 Bedrooms
  • Tenure: We understand that the property is freehold and is offered with vacant possession upon completion.
  • Unconditional (Immediate Exchange)

Call the team on 0845 400 9900 for more information

Related Documents

Disclaimer: The map preview provided above is for general guidance only and may not accurately reflect the exact location or surrounding buildings. Prospective buyers and interested parties are strongly advised to independently verify the precise location and surroundings before bidding.

Note

  1. MONEY LAUNDERING REGULATIONS: Intending purchasers will be asked to produce identification documentation at a later stage and we would ask for your co-operation in order that there will be no delay in agreeing the sale.
  2. General : While we endeavour to make our sales particulars fair, accurate and reliable, they are only a general guide to the property and, accordingly, if there is any point which is of particular importance to you, please contact the office and we will be pleased to check the position for you, especially if you are contemplating travelling some distance to view the property.
  3. Measurements: These approximate room sizes are only intended as general guidance. You must verify the dimensions carefully before ordering carpets or any built-in furniture.
  4. Services: Please note we have not tested the services or any of the equipment or appliances in this property, accordingly we strongly advise prospective buyers to commission their own survey or service reports before finalising their offer to purchase.
  5. THESE PARTICULARS ARE ISSUED IN GOOD FAITH BUT DO NOT CONSTITUTE REPRESENTATIONS OF FACT OR FORM PART OF ANY OFFER OR CONTRACT. THE MATTERS REFERRED TO IN THESE PARTICULARS SHOULD BE INDEPENDENTLY VERIFIED BY PROSPECTIVE BUYERS OR TENANTS. NEITHER AUCTION HOUSE NOR ANY OF ITS EMPLOYEES OR AGENTS HAS ANY AUTHORITY TO MAKE OR GIVE ANY REPRESENTATION OR WARRANTY WHATEVER IN RELATION TO THIS PROPERTY.