Auction House / Lincolnshire

  • For Sale By Unconditional Online Auction
  • Guide Price* : £50,000 - £70,000
  • Auction Ended 18/06/2024
  • Lot 37

57 High Street, Blackpool, Lancashire, FY1 2BN

*ONLINE Unconditional Auction Opening 17 June 2024*
To register for the legal pack and bidding, please visit our website: auctionhouse.co.uk/lincolnshire

Description

Situation:
The property is situated in the popular High Street, amongst other properties of a similar style, within close proximity of a wide range of conveniences, along with the sea front, including the Central Pier. Blackpool itself is a popular tourist destination in the North West and has many facilities catering for such, along with good access to the surrounding towns.

Description:
A traditionally constructed, deceptively spacious and well proportioned 5 bedroom mid terrace house benefitting from double glazing and central heating. This property offers a huge amount of scope and opportunity, with a multitude of different options, be that potential for HMO or bed & breakfast (STP) or owner occupier or investor. In such a sought after position this property offers the opportunity for excellent yield.


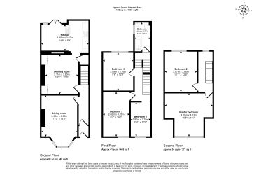
ACCOMMODATION

Ground Floor

Entrance Hallway
Sitting Room
Dining Room
Kitchen

First Floor
Bedroom 1
Bedroom 2
Bedroom 3
Family Bathroom

Second Floor
Bedroom 4
Bedroom 5

MATERIAL INFORMATION

Tenure:
The property is believed to be leasehold of 999 years (less 10 days) from 02/11/1869. All prospective bidders should satisfy themselves of the tenure by inspecting the legal pack.

Council Tax:
We have been advised that the property falls within Blackpool Council – BAND B

Possession:
Vacant possession will be given upon completion.

Viewing:
Strictly by appointment with Auction House.

Services:
Prospective purchasers are advised to make their own enquiries of the relevant statutory authorities. NB: Services, Apparatus and Equipment have not been tested by Auction House and therefore cannot be verified as being in working order. The buyer is advised to obtain verification from their Solicitor/Surveyor.

These particulars are believed to be correct but their accuracy is not guaranteed and they do not form any part of any contract. Information relating to Rating and Town and Country Planning matters has been obtained by verbal enquiry only. Prospective purchasers are advised to make their own enquiries of the appropriate Authority. All measurements, areas and distances are approximate only. Potential purchasers are advised to check them.

Council Tax Band

A

Lease Start Date

02/11/1869

Lease Duration

999 years (844 years unexpired)

EPC Rating

E

Important Notice to Prospective Buyers

We draw your attention to the Special Conditions of Sale within the Legal Pack, referring to other charges in addition to the purchase price which may become payable. Such costs may include Search Fees, reimbursement of Sellers costs and Legal Fees, and Transfer Fees amongst others.

Administration Charge

Non-refundable £3,600 inc VAT payable on the fall of the virtual gavel

Disbursements

Please see the legal pack for any disbursements listed that may become payable by the purchaser on completion

Loading the bidding panel...

* Guide | £50,000 - £70,000
  • 5 Bedrooms
  • Unconditional (Immediate Exchange)

Call the team on 01427 616436 for more information

Disclaimer: The map preview provided above is for general guidance only and may not accurately reflect the exact location or surrounding buildings. Prospective buyers and interested parties are strongly advised to independently verify the precise location and surroundings before bidding.

Note

  1. MONEY LAUNDERING REGULATIONS: Intending purchasers will be asked to produce identification documentation at a later stage and we would ask for your co-operation in order that there will be no delay in agreeing the sale.
  2. General : While we endeavour to make our sales particulars fair, accurate and reliable, they are only a general guide to the property and, accordingly, if there is any point which is of particular importance to you, please contact the office and we will be pleased to check the position for you, especially if you are contemplating travelling some distance to view the property.
  3. Measurements: These approximate room sizes are only intended as general guidance. You must verify the dimensions carefully before ordering carpets or any built-in furniture.
  4. Services: Please note we have not tested the services or any of the equipment or appliances in this property, accordingly we strongly advise prospective buyers to commission their own survey or service reports before finalising their offer to purchase.
  5. THESE PARTICULARS ARE ISSUED IN GOOD FAITH BUT DO NOT CONSTITUTE REPRESENTATIONS OF FACT OR FORM PART OF ANY OFFER OR CONTRACT. THE MATTERS REFERRED TO IN THESE PARTICULARS SHOULD BE INDEPENDENTLY VERIFIED BY PROSPECTIVE BUYERS OR TENANTS. NEITHER AUCTION HOUSE NOR ANY OF ITS EMPLOYEES OR AGENTS HAS ANY AUTHORITY TO MAKE OR GIVE ANY REPRESENTATION OR WARRANTY WHATEVER IN RELATION TO THIS PROPERTY.