Auction House / Lincolnshire

  • For Sale By Unconditional Online Auction
  • Guide Price* : £280,000+
  • Auction Ended 26/03/2024
  • Lot 45

Hundleby House 76 Main Road, Spilsby, Lincolnshire, PE23 5LS

FOR SALE BY UNCONDITIONAL ONLINE AUCTION! (IMMEDIATE EXCHANGE)
This property will be offered for sale by auction 26 March 2024 with a *guide price of £280,000+ (plus fees).

Description

Situation:
The property is situate on Main Road, Hundleby, a popular and well positioned plot within the heart of this traditional Lincolnshire village, well located for access to the wealth of local facilities and amenities, along with Spilsby town centre. The Lincolnshire Wolds, East coast and other towns are also within easy reach.

Description:
A wonderfully proportioned detached Georgian family residence, offered for sale with a wealth of potential to create a fantastic and unique home in the heart of this rural village. This imposing property occupies a plot of approximately half an acre, with a wide range of outbuildings including stables, coach house and hayloft, and retains many wonderful, and original period features throughout, including tiled flooring, fireplaces and arched and sash windows.


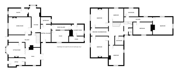
Ground Floor
Hallway: 7.04m x 3.99m
Sitting Room: 4.27m x 4.86m
Snug: 3.61m x 4.95m
Office: 3.91m x 2.07m
Dining Room: 5.49m x 4.88m
Kitchen: 2.30m x 6.56m
Pantry: 4.91m x 2.16m
Central Hallway: 2.16m x 4.66m
Bathroom: 2.68m x 2.08m
Rear Hallway: 4.79m x 1.27m
Study: 4.26m x 3.29m
Laundry Room: 3.11m x 3.17m
Store: 3.55m x 1.34m

First Floor
Landing: 3.57m x 3.71m
Bedroom One: 4.24m x 4.42m
Bedroom Two: 4.25m x 4.40m
Bedroom Three: 3.57m x 5.00m
Bedroom Four: 3.59m x 3.33m
Bedroom Five: 4.43m x 3.65m
Bedroom Six: 3.56m x 4.72m
Dressing Room/ Bedroom 7: 4.21m x 1.48m
Hallway: 0.93m x 1.44m
Linen Store: 1.12m x 2.07m
Hallway: 7.27m x 0.95m
Bathroom One: 2.56m x 1.98m
Bathroom Two: 2.81m x 2.14m

Material Information
Tenure:
The property is freehold. All prospective bidders should satisfy themselves of the tenure by inspecting the legal pack.

Council Tax:
The property falls within East Lindsey Council – BAND G

Viewing:
Strictly by appointment with Auction House.

Services:
Prospective purchasers are advised to make their own enquiries of the relevant statutory authorities. NB: Services, Apparatus and Equipment have not been tested by Auction House and therefore cannot be verified as being in working order. The buyer is advised to obtain verification from their Solicitor/Surveyor.

These particulars are believed to be correct but their accuracy is not guaranteed and they do not form any part of any contract. Information relating to Rating and Town and Country Planning matters has been obtained by verbal enquiry only. Prospective purchasers are advised to make their own enquiries of the appropriate Authority. All measurements, areas and distances are approximate only. Potential purchasers are advised to check them.

Council Tax Band

G

EPC Rating

E

Important Notice to Prospective Buyers

We draw your attention to the Special Conditions of Sale within the Legal Pack, referring to other charges in addition to the purchase price which may become payable. Such costs may include Search Fees, reimbursement of Sellers costs and Legal Fees, and Transfer Fees amongst others.

Buyers Premium

Non-refundable £1,140 inc VAT payable on the fall of the virtual gavel.

Administration Charge

Non-refundable 1.2% inc VAT of the purchase price, payable on the fall of the virtual gavel.

Disbursements

Please see the legal pack for any disbursements listed that may become payable by the purchaser on completion.

Loading the bidding panel...

* Guide | £280,000+
  • 6 Bedrooms
  • Unconditional (Immediate Exchange)

Call the team on 01427 616436 for more information

Disclaimer: The map preview provided above is for general guidance only and may not accurately reflect the exact location or surrounding buildings. Prospective buyers and interested parties are strongly advised to independently verify the precise location and surroundings before bidding.

Note

  1. MONEY LAUNDERING REGULATIONS: Intending purchasers will be asked to produce identification documentation at a later stage and we would ask for your co-operation in order that there will be no delay in agreeing the sale.
  2. General : While we endeavour to make our sales particulars fair, accurate and reliable, they are only a general guide to the property and, accordingly, if there is any point which is of particular importance to you, please contact the office and we will be pleased to check the position for you, especially if you are contemplating travelling some distance to view the property.
  3. Measurements: These approximate room sizes are only intended as general guidance. You must verify the dimensions carefully before ordering carpets or any built-in furniture.
  4. Services: Please note we have not tested the services or any of the equipment or appliances in this property, accordingly we strongly advise prospective buyers to commission their own survey or service reports before finalising their offer to purchase.
  5. THESE PARTICULARS ARE ISSUED IN GOOD FAITH BUT DO NOT CONSTITUTE REPRESENTATIONS OF FACT OR FORM PART OF ANY OFFER OR CONTRACT. THE MATTERS REFERRED TO IN THESE PARTICULARS SHOULD BE INDEPENDENTLY VERIFIED BY PROSPECTIVE BUYERS OR TENANTS. NEITHER AUCTION HOUSE NOR ANY OF ITS EMPLOYEES OR AGENTS HAS ANY AUTHORITY TO MAKE OR GIVE ANY REPRESENTATION OR WARRANTY WHATEVER IN RELATION TO THIS PROPERTY.