Auction House / Wales - Cardiff

  • For Sale By Unconditional Online Auction
  • Guide Price* : £525,000
  • Auction Ended 16/04/2024
  • Lot 9

Clifton House Tudor Square, Tenby, Dyfed, SA70 7AD

Bidding opens Monday 15th April 2024 at 13:00 and closes Tuesday 16th April 2024 at 13:00.

Description

Bidding opens Monday 15th April 2024 at 13:00 and closes Tuesday 16th April 2024 at 13:00.

Georgian Townhouse in Sought After Seaside Town

An opportunity to acquire a six bedroom Georgian Grade II Listed house, located right in the heart of this sought after iconic seaside town of Tenby. with commanding coastal views from the rear. The property benefits from a wealth of period features along with garden to the rear and a large terrace/decked area from the first floor. The property is in good order and as such is ready for immediate occupation.
The property is located in Tudor Square and as such is surrounded by a number of local and national retailers along with a number of bars and eateries. The town also offers several amenities along with primary and secondary schools. The town attracts a large number of tourists and would therefore be suitable for investment purposes. Alternatively, it could be used as a second home or owner occupation.

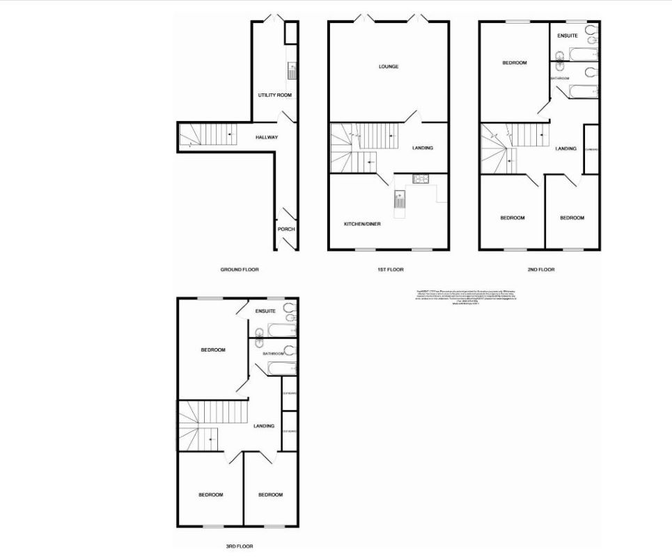
Ground Floor Entrance Porch, hallway, utility/hobby room with access to garden.
First Floor Landing, large lounge with access to the terrace/deck, kitchen/dining room.
Second Floor Landing, Three bedrooms (one en suite), bathroom.
Third Floor Landing, Master bedroom with en-suite, two further bedrooms, bathroom.
Outside Garden to the rear, large terrace/deck from the first floor lounge.
Viewings Through our partner agents Guy Thomas on 01646 682342.
Council Tax Band D

Tenure: See Legal Pack

EPC Rating: E

Important Notice to Prospective Buyers

We draw your attention to the Special Conditions of Sale within the Legal Pack, referring to other charges in addition to the purchase price which may become payable. Such costs may include Search Fees, reimbursement of Sellers costs and Legal Fees, and Transfer Fees amongst others.

Buyers Premium

£1560 inc VAT payable on exchange of contracts.

Administration Charge

1.2% inc VAT of the purchase price, subject to a minimum of £1200 inc VAT, payable on exchange of contracts.

Loading the bidding panel...

* Guide | £525,000
  • 6 Bedrooms
  • Unconditional (Immediate Exchange)

Call the team on 02920 475 184 for more information

Disclaimer: The map preview provided above is for general guidance only and may not accurately reflect the exact location or surrounding buildings. Prospective buyers and interested parties are strongly advised to independently verify the precise location and surroundings before bidding.

Note

  1. MONEY LAUNDERING REGULATIONS: Intending purchasers will be asked to produce identification documentation at a later stage and we would ask for your co-operation in order that there will be no delay in agreeing the sale.
  2. General : While we endeavour to make our sales particulars fair, accurate and reliable, they are only a general guide to the property and, accordingly, if there is any point which is of particular importance to you, please contact the office and we will be pleased to check the position for you, especially if you are contemplating travelling some distance to view the property.
  3. Measurements: These approximate room sizes are only intended as general guidance. You must verify the dimensions carefully before ordering carpets or any built-in furniture.
  4. Services: Please note we have not tested the services or any of the equipment or appliances in this property, accordingly we strongly advise prospective buyers to commission their own survey or service reports before finalising their offer to purchase.
  5. THESE PARTICULARS ARE ISSUED IN GOOD FAITH BUT DO NOT CONSTITUTE REPRESENTATIONS OF FACT OR FORM PART OF ANY OFFER OR CONTRACT. THE MATTERS REFERRED TO IN THESE PARTICULARS SHOULD BE INDEPENDENTLY VERIFIED BY PROSPECTIVE BUYERS OR TENANTS. NEITHER AUCTION HOUSE NOR ANY OF ITS EMPLOYEES OR AGENTS HAS ANY AUTHORITY TO MAKE OR GIVE ANY REPRESENTATION OR WARRANTY WHATEVER IN RELATION TO THIS PROPERTY.