Auction House / South Yorkshire

  • For Sale By Unconditional Online Auction
  • Guide Price* : £125,000 - £135,000
  • Auction Ended 05/03/2024
  • Lot 20

131 Walkley Lane, Sheffield, South Yorkshire, S6 2NZ

FOR SALE VIA NATIONAL ONLINE AUCTION ON MONDAY 4TH MARCH AT 1PM WITH AUCTION HOUSE SOUTH YORKSHIRE.

Description

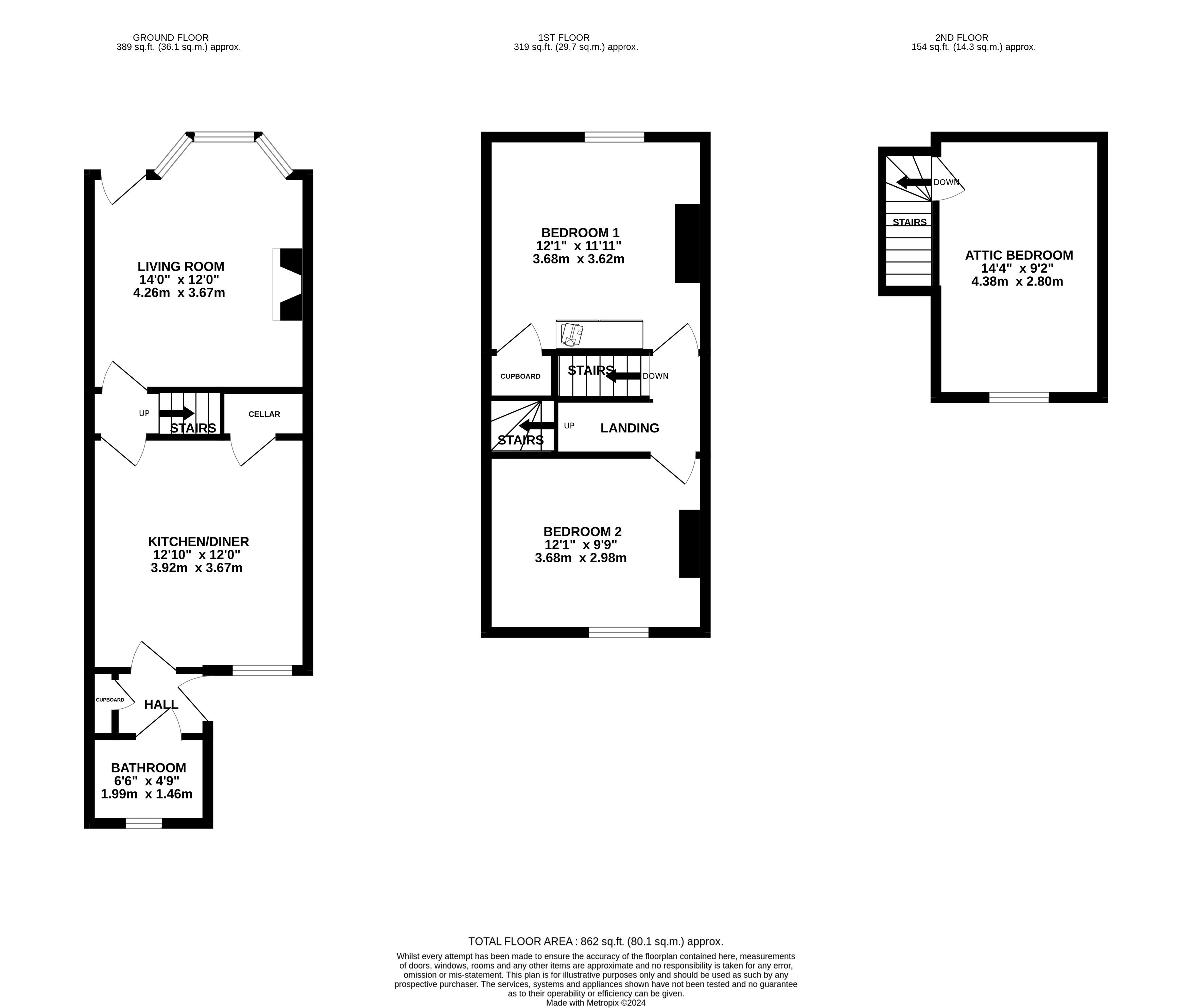
A stone fronted, three double bedroom, mid terraced home, for sale with vacant possession.

OPEN HOUSE VIEWING APPOINTMENTS (No booking required):
WEDNESDAY 21st FEBRUARY, 1pm - 1:30pm
THURSDAY 29th FEBRUARY, 10am - 10:30am

The property comprises of a large Living Room with a bright bay-window, a spacious Kitchen-Diner, and a Bathroom to the ground floor.
There are 2 double bedrooms to the first floor, and a 3rd double bedroom on the second floor.
Externally there is a rear garden, with a platform decking area, and outside storage space.

This property has recently been let out successfully for a number of years, as room lets, earning £1,236pcm bills included.
The property has active EICR and current gas safety certificates too.

Situated in this extremely convenient location, with excellent amenities close by, walking distance to the supertram, and a bus stop outside the house, for regular public transport. Hillsborough shopping centre boasts supermarkets, shops, butchers, and other amenities within walking distance too.

Material Information:
Leasehold
675 years remaining on lease
Service charge: NIL
Ground rent: £2.26 p/a, charged every 5 years.
No allocated parking
Gas central heating

EPC Rating: TBC

Council Tax Band

A

Lease Start Date

01/01/1899

Lease Duration

800 years (675 years unexpired)

EPC Rating

D

Important Notice to Prospective Buyers

We draw your attention to the Special Conditions of Sale within the Legal Pack, referring to other charges in addition to the purchase price which may become payable. Such costs may include Search Fees, reimbursement of Sellers costs and Legal Fees, and Transfer Fees amongst others.

Buyers Premium

Buyer's Premium is £1,200 inc VAT, payable upon the fall of the virtual gavel.

Administration Charge

Administration Charge is a non-refundable £1,200 inc VAT payable on the fall of the virtual gavel.

Loading the bidding panel...

* Guide | £125,000 - £135,000
  • 3 Bedrooms
  • Unconditional (Immediate Exchange)

Call the team on 0114 223 0777 for more information

Disclaimer: The map preview provided above is for general guidance only and may not accurately reflect the exact location or surrounding buildings. Prospective buyers and interested parties are strongly advised to independently verify the precise location and surroundings before bidding.

Note

  1. MONEY LAUNDERING REGULATIONS: Intending purchasers will be asked to produce identification documentation at a later stage and we would ask for your co-operation in order that there will be no delay in agreeing the sale.
  2. General : While we endeavour to make our sales particulars fair, accurate and reliable, they are only a general guide to the property and, accordingly, if there is any point which is of particular importance to you, please contact the office and we will be pleased to check the position for you, especially if you are contemplating travelling some distance to view the property.
  3. Measurements: These approximate room sizes are only intended as general guidance. You must verify the dimensions carefully before ordering carpets or any built-in furniture.
  4. Services: Please note we have not tested the services or any of the equipment or appliances in this property, accordingly we strongly advise prospective buyers to commission their own survey or service reports before finalising their offer to purchase.
  5. THESE PARTICULARS ARE ISSUED IN GOOD FAITH BUT DO NOT CONSTITUTE REPRESENTATIONS OF FACT OR FORM PART OF ANY OFFER OR CONTRACT. THE MATTERS REFERRED TO IN THESE PARTICULARS SHOULD BE INDEPENDENTLY VERIFIED BY PROSPECTIVE BUYERS OR TENANTS. NEITHER AUCTION HOUSE NOR ANY OF ITS EMPLOYEES OR AGENTS HAS ANY AUTHORITY TO MAKE OR GIVE ANY REPRESENTATION OR WARRANTY WHATEVER IN RELATION TO THIS PROPERTY.