Auction House / Hull & East Yorkshire

  • For Sale By Unconditional Online Auction
  • Guide Price* : £280,000
  • Auction Ended 24/10/2023
  • Lot 17

47 & 47a Market Place, Driffield, East Yorkshire, YO25 6AN

FOR SALE VIA NATIONAL ONLINE AUCTION. REGISTER TO BID!

Location

Driffield is a traditional Market Town with a population of circa 13,500. The town provides an extensive range of shopping and public service amenities and is also conveniently placed for access to the surrounding larger towns of Malton, Beverley, and the East Coast resort towns of Bridlington and Scarborough.

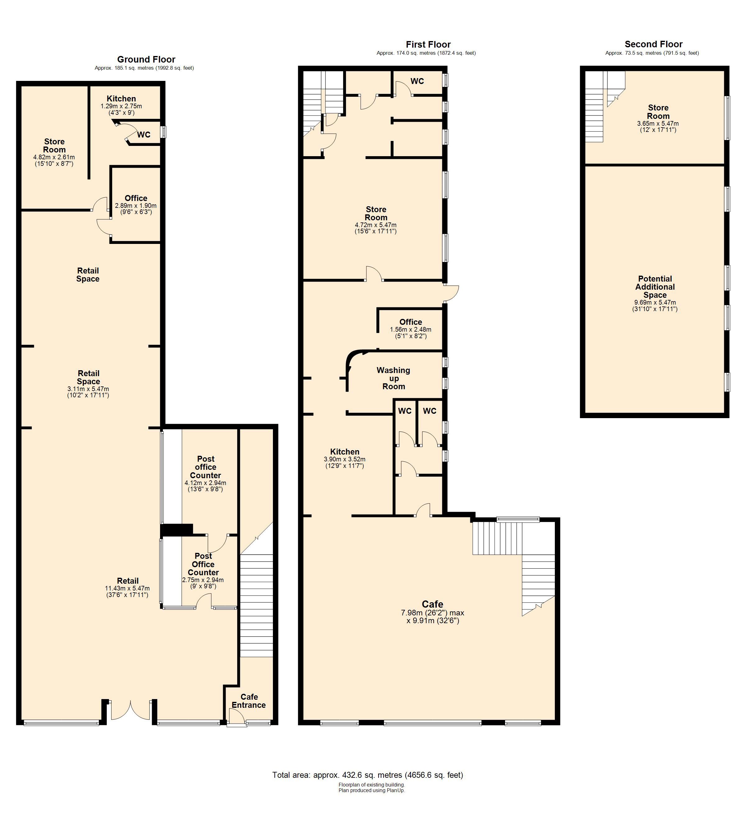
Description

Excellent Commercial Investment Property with Further Potential

This excellent commercial investment property comprises of a large ground floor retail unit currently let to the Post Office with 6 years left to run on an FRI lease at £17,051 pa and a first floor Cafe that is let on an FRI Lease with 7 years remaining at £12,465 pa, however, the tenants have exercised a break clause and the lease will expire early in 2024. The First floor enjoys its own entrance from Market place as well as having a rear fire escape access. There is also a substantial second floor that could be developed together with the soon-to-be vacant first floor to create several residential letting units (subject to planning consent). The property is presented in excellent condition and offers a total floor area in excess of 4,500 sq ft. The current gross rental income is £29,516 pa.

Accommodation

Ground Floor - Let to the Post Office Manager
Approx Retail floor area approx 1,500 sq ft
Office approx 60 sq ft
Store approx 134 sq ft
Kitchen & WC approx 97 sq ft

First Floor - Let to Cafe Lion

Cafe & Serving Area approx 855 sq ft
Kitchen & Prep Area approx 405 sq ft
Office & Storage approx 426 sq ft
Staff & Public Toilets &
Sundry spaces approx 260 sq ft

Second Floor
Storage (potential for conversion to residential) approx 220 sq ft
Limited access space (potential for Residential use) approx 574 sq ft

Lease Details
Ground Floor: 10 years from 08.07.2020 on FRI terms with annual RPI linked rent reviews. Current rent passing is £17,051 pa
First Floor: 10 years from 04.02.2019 on FRI terms with annual RPI Linked rent reviews. Current rent passing is £12,465 pa. The tenant has exercised a break clause and will vacate on 03.02.24.

Business Rates
Business rates are payable by the tenants. The current rateable values are:
Ground floor: £15,250
First & Second floor: £9,200

Tenure
Freehold. Possession is subject to the existing leases.

Services
All mains services are believed to be connected but have not been tested.

Viewing
Viewings may be limited and are subject to approval by the tenants. All viewings are strictly by appointment with the auctioneers on 0845 400 9900

Tenure

Freehold

Lot Type

Commercial Investments

Important Notice to Prospective Buyers

We draw your attention to the Special Conditions of Sale within the Legal Pack, referring to other charges in addition to the purchase price which may become payable. Such costs may include Search Fees, reimbursement of Sellers costs and Legal Fees, and Transfer Fees amongst others.

Buyers Premium

£1,200.00 including VAT payable on the fall of the Virtual Gavel

Administration Charge

£1,200.00 including VAT payable on the fall of the Virtual Gavel

Disbursements

Please see Legal Pack for any Disbursements.

Loading the bidding panel...

* Guide | £280,000
  • Tenure: Freehold
  • Unconditional (Immediate Exchange)

Call the team on 0845 400 9900 for more information

Related Documents

Disclaimer: The map preview provided above is for general guidance only and may not accurately reflect the exact location or surrounding buildings. Prospective buyers and interested parties are strongly advised to independently verify the precise location and surroundings before bidding.

Note

  1. MONEY LAUNDERING REGULATIONS: Intending purchasers will be asked to produce identification documentation at a later stage and we would ask for your co-operation in order that there will be no delay in agreeing the sale.
  2. General : While we endeavour to make our sales particulars fair, accurate and reliable, they are only a general guide to the property and, accordingly, if there is any point which is of particular importance to you, please contact the office and we will be pleased to check the position for you, especially if you are contemplating travelling some distance to view the property.
  3. Measurements: These approximate room sizes are only intended as general guidance. You must verify the dimensions carefully before ordering carpets or any built-in furniture.
  4. Services: Please note we have not tested the services or any of the equipment or appliances in this property, accordingly we strongly advise prospective buyers to commission their own survey or service reports before finalising their offer to purchase.
  5. THESE PARTICULARS ARE ISSUED IN GOOD FAITH BUT DO NOT CONSTITUTE REPRESENTATIONS OF FACT OR FORM PART OF ANY OFFER OR CONTRACT. THE MATTERS REFERRED TO IN THESE PARTICULARS SHOULD BE INDEPENDENTLY VERIFIED BY PROSPECTIVE BUYERS OR TENANTS. NEITHER AUCTION HOUSE NOR ANY OF ITS EMPLOYEES OR AGENTS HAS ANY AUTHORITY TO MAKE OR GIVE ANY REPRESENTATION OR WARRANTY WHATEVER IN RELATION TO THIS PROPERTY.