Auction House / West Yorkshire

  • For Sale By Unconditional Online Auction
  • Guide Price* : £110,000+
  • Auction Ended 08/08/2023
  • Lot 26

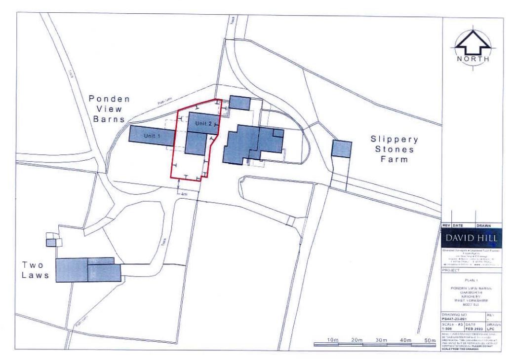
Panden Barn, Plot 2, Cragg Bottom Road, Keighley, Bradford, BD22 0JL

FOR SALE VIA NATIONAL ONLINE AUCTION ON 8TH AUGUST 2023!

Description

This exciting opportunity is sure to appeal to those looking for a self-build dream home or perhaps a developer seeking their next project. Planning permission was granted in April 2020 for this plot and the adjoining plot to be converted into two stunning detached homes but we have been advised by the seller that this has now lapsed. Further information regarding the planning application can be found by visiting the Bradford planning portal searching reference number 20/01418/PAR or post code BD22 0JL. As you can see from the photos, some of the works have already commenced which will enable any interested parties to get a feel for the size of the potential property once the planning has been renewed.

The land is located in a stunning position on Slippery Stones farm enjoying far reaching views across Ponden Reservoir and the surrounding countryside.

Important Notice to Prospective Buyers

We draw your attention to the Special Conditions of Sale within the Legal Pack, referring to other charges in addition to the purchase price which may become payable. Such costs may include Search Fees, reimbursement of Sellers costs and Legal Fees, and Transfer Fees amongst others.

Administration Charge

Administration Charge is a non-refundable £1,200 inc VAT payable on the fall of the virtual gavel.

Loading the bidding panel...

* Guide | £110,000+
  • Unconditional (Immediate Exchange)

Call the team on 0113 393 3482 for more information

Disclaimer: The map preview provided above is for general guidance only and may not accurately reflect the exact location or surrounding buildings. Prospective buyers and interested parties are strongly advised to independently verify the precise location and surroundings before bidding.

Note

  1. MONEY LAUNDERING REGULATIONS: Intending purchasers will be asked to produce identification documentation at a later stage and we would ask for your co-operation in order that there will be no delay in agreeing the sale.
  2. General : While we endeavour to make our sales particulars fair, accurate and reliable, they are only a general guide to the property and, accordingly, if there is any point which is of particular importance to you, please contact the office and we will be pleased to check the position for you, especially if you are contemplating travelling some distance to view the property.
  3. Measurements: These approximate room sizes are only intended as general guidance. You must verify the dimensions carefully before ordering carpets or any built-in furniture.
  4. Services: Please note we have not tested the services or any of the equipment or appliances in this property, accordingly we strongly advise prospective buyers to commission their own survey or service reports before finalising their offer to purchase.
  5. THESE PARTICULARS ARE ISSUED IN GOOD FAITH BUT DO NOT CONSTITUTE REPRESENTATIONS OF FACT OR FORM PART OF ANY OFFER OR CONTRACT. THE MATTERS REFERRED TO IN THESE PARTICULARS SHOULD BE INDEPENDENTLY VERIFIED BY PROSPECTIVE BUYERS OR TENANTS. NEITHER AUCTION HOUSE NOR ANY OF ITS EMPLOYEES OR AGENTS HAS ANY AUTHORITY TO MAKE OR GIVE ANY REPRESENTATION OR WARRANTY WHATEVER IN RELATION TO THIS PROPERTY.