Auction House / Lincolnshire

  • For Sale By Unconditional Online Auction
  • Guide Price* : £250,000+
  • Auction Ended 04/07/2023
  • Lot 18

White House, Cleatham Road, Kirton Lindsey, Gainsborough, Lincolnshire, DN21 4JR

FOR SALE BY UNCONDITIONAL ONLINE AUCTION! (IMMEDIATE EXCHANGE)
This property will be offered for sale by auction opening 3 July 2023 with a *guide price of £250,000+ (plus fees).

Description

Situation:
The property sits within grounds of approximately 6 acres being suitable for a number of potential uses subject to the relevant planning permissions being obtained. Situated on the outskirts of Kirton in Lindsey which is well served for amenties and transport links to surrounding market towns and the Cathedral City of Lincoln.

Description:
A three bedroom detached house requiring a comprehensive scheme of modernisation nestled in it's own private gardens with a number of paddocks suitable for equine persuits, pond and workshops.

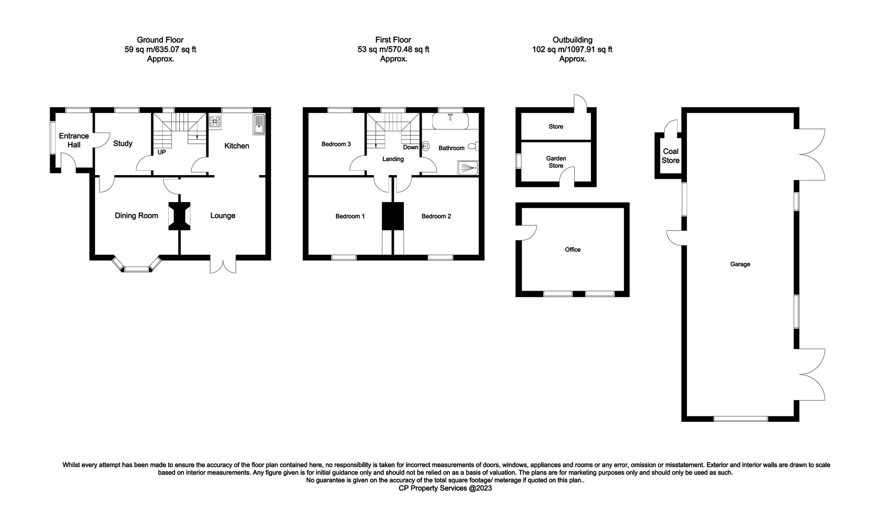
Accommodation

Front Porch: 2.59m x 1.72m
Two UPVC double glazed windows and a wooden entrance door hallway, accessed from kitchen and study/reception.

Reception: 2.90m x 2.61m
Currently used as a study, UPVC double glazed window and radiator door giving access to either:

Lounge: 3.96m x 3.66m
UPVC double glazed window, radiator, tiled fireplace, and hearth with open fire. Door giving access to:

Kitchen Diner: 6.68m x 3.97m (maximum dimensions)
UPVC double glazed window to the front elevation, UPVC double glazed French doors to outside, base units housing stainless steel sink and drainer, multifuel, stove and door giving access to:

Inner hall with stairs rising to first floor accommodation:

Two UPVC double glazed windows, landing with doors giving access to:

Bedroom: 3.96m x 3.65m
UPVC double glazed window, radiator and storage cupboard built into alcove

Bedroom: 3.96m x 3.65m
UPVC double glazed window, radiator and storage cupboard built into alcove

Bedroom: 2.89m x 2.62m
UPVC double glazed window, radiator

Family Bathroom: 2.83m x 2.60m
UPVC double glazed window, four-piece bathroom suite, comprising of WC, ceramic handbasin in mounted vanity unit, whirlpool bath and shower cubicle, tiled walls and flooring and chrome heated towel rail.
Material Information
Tenure:
The property is believed to be freehold. All prospective bidders should satisfy themselves of the tenure by inspecting the legal pack.

Council Tax:
We have been advised that the property falls within West Lindsey District Council – BAND B

Possession:
Vacant possession will be given upon completion.

Viewing:
Strictly by appointment with Auction House.

Services:
Prospective purchasers are advised to make their own enquiries of the relevant statutory authorities. NB: Services, Apparatus and Equipment have not been tested by Auction House and therefore cannot be verified as being in working order. The buyer is advised to obtain verification from their Solicitor/Surveyor.

These particulars are believed to be correct but their accuracy is not guaranteed and they do not form any part of any contract. Information relating to Rating and Town and Country Planning matters has been obtained by verbal enquiry only. Prospective purchasers are advised to make their own enquiries of the appropriate Authority. All measurements, areas and distances are approximate only. Potential purchasers are advised to check them.

Tenure: Freehold

EPC Rating: F

Council Tax Band

B

Lot Type

Residential for Improvement

EPC Rating

F

Important Notice to Prospective Buyers

We draw your attention to the Special Conditions of Sale within the Legal Pack, referring to other charges in addition to the purchase price which may become payable. Such costs may include Search Fees, reimbursement of Sellers costs and Legal Fees, and Transfer Fees amongst others.

Buyers Premium

Non-refundable 1.2% inc VAT of the purchase price, payable on exchange of contracts.

Administration Charge

Non-refundable £1,200 inc VAT payable on the fall of the virtual gavel.

Disbursements

Please see the legal pack for any disbursements listed that may become payable by the purchaser on completion.

Loading the bidding panel...

* Guide | £250,000+
  • 3 Bedrooms
  • Unconditional (Immediate Exchange)

Call the team on 01427 616436 for more information

Related Documents

Disclaimer: The map preview provided above is for general guidance only and may not accurately reflect the exact location or surrounding buildings. Prospective buyers and interested parties are strongly advised to independently verify the precise location and surroundings before bidding.

Note

  1. MONEY LAUNDERING REGULATIONS: Intending purchasers will be asked to produce identification documentation at a later stage and we would ask for your co-operation in order that there will be no delay in agreeing the sale.
  2. General : While we endeavour to make our sales particulars fair, accurate and reliable, they are only a general guide to the property and, accordingly, if there is any point which is of particular importance to you, please contact the office and we will be pleased to check the position for you, especially if you are contemplating travelling some distance to view the property.
  3. Measurements: These approximate room sizes are only intended as general guidance. You must verify the dimensions carefully before ordering carpets or any built-in furniture.
  4. Services: Please note we have not tested the services or any of the equipment or appliances in this property, accordingly we strongly advise prospective buyers to commission their own survey or service reports before finalising their offer to purchase.
  5. THESE PARTICULARS ARE ISSUED IN GOOD FAITH BUT DO NOT CONSTITUTE REPRESENTATIONS OF FACT OR FORM PART OF ANY OFFER OR CONTRACT. THE MATTERS REFERRED TO IN THESE PARTICULARS SHOULD BE INDEPENDENTLY VERIFIED BY PROSPECTIVE BUYERS OR TENANTS. NEITHER AUCTION HOUSE NOR ANY OF ITS EMPLOYEES OR AGENTS HAS ANY AUTHORITY TO MAKE OR GIVE ANY REPRESENTATION OR WARRANTY WHATEVER IN RELATION TO THIS PROPERTY.