Auction House / Lincolnshire

  • For Sale By Unconditional Online Auction
  • Guide Price* : £10,000+
  • Auction Ended 20/06/2023
  • Lot 30

22 Braithwaite Street, Blackpool, Lancashire, FY1 2HS

FOR SALE BY UNCONDITIONAL ONLINE AUCTION! (IMMEDIATE EXCHANGE)
This property will be offered for sale by auction opening 18 June 2023 with a *guide price of £10,000+ (plus fees).

Description

Situation:
The property is situated on Braithwaite Street, a popular and sought after residential area amongst other properties of a similar style, close to the heart of Blackpool with its wealth of facilities and amenities, along with being within walking distance of the beach and the seafront amenities. Fleetwood, Clevelys, Preston and Lancaster are within easy reach.
Description:
A mid terrace house offered for sale in need of improvement throughout yet benefitting from well-proportioned family living accommodation. This is an ideal investment opportunity, with properties of a similar style having sold for in excess of £115,000 in good order, and there is a strong local demand for rental properties in the area with potential for a significant yield. Owner occupiers will also have an interest, and a viewing is recommended to appreciate the scope of property on offer.

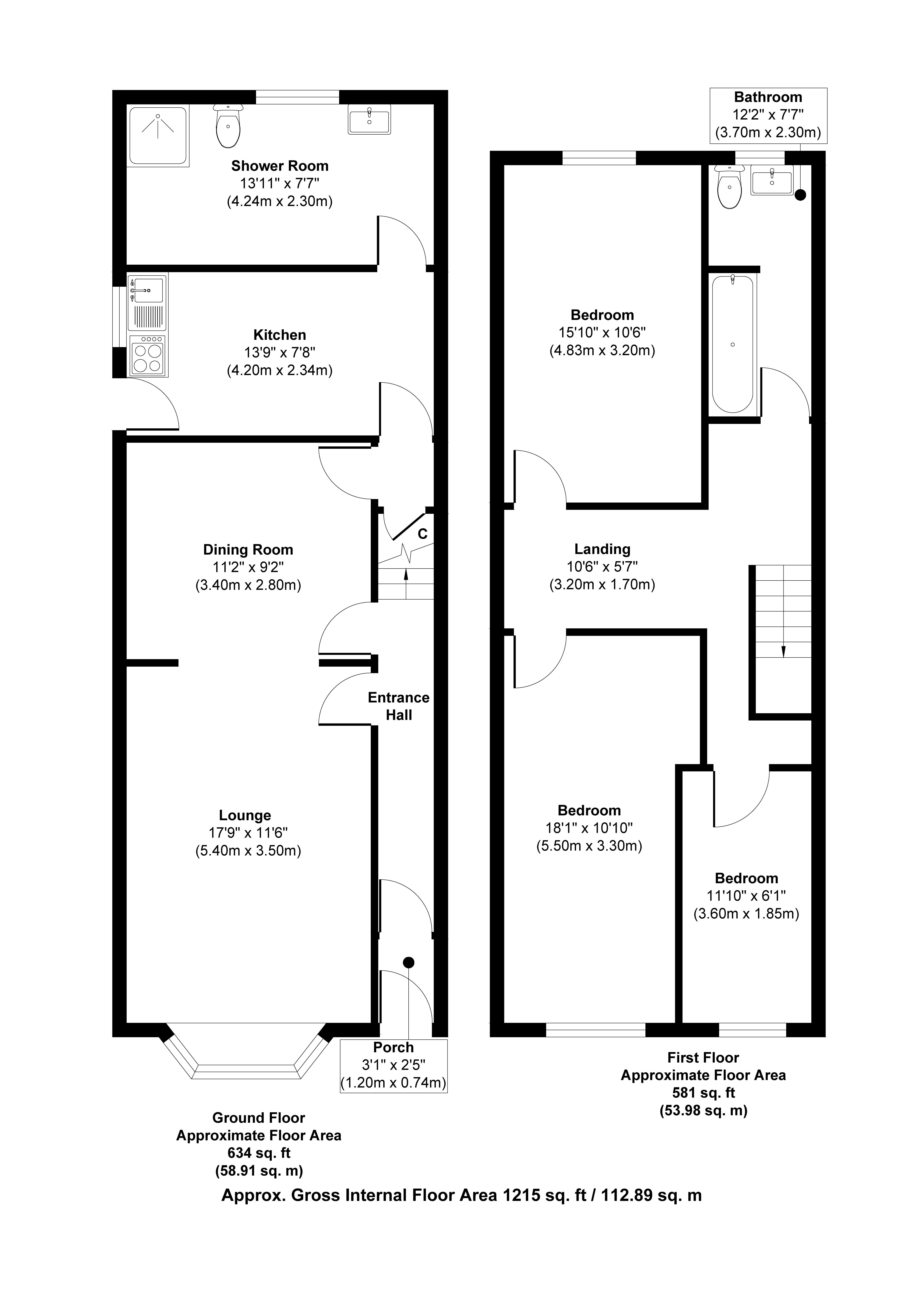
Accommodation
Ground Floor

Entrance Vestibule: UPVC double glazed door.

Entrance Hall:

Lounge: 5.59m x 3.76m (18'4 x 12'4) UPVC double glazed window, radiator, fitted gas fire, open to:-

Dining Room: 3.45m x 2.90m (11'4 x 9'6) UPVC double glazed window, radiator.

Kitchen: 4.14m x 2.36m (13'7 x 7'9) White laminate base units, single bowl, single drainer, stainless steel sink unit, tiled splashbacks, eye level cupboards, Glow Worm boiler, UPVC double glazed window and door.

Bathroom: Panelled bath, pedestal wash hand basin, W.C - low suite, UPVC double glazed window.

On The First Floor

Landing: Skylight, radiator.

Bedroom One: 4.17m x 2.90m (13'8 x 9'6) UPVC double glazed window, radiator, fitted wardrobes.

Bedroom Two: 3.35m x 3.05m (11'0 x 10'0) UPVC double glazed window, radiator.

Bedroom Three: 3.35m x 1.83m (11'0 x 6'0) UPVC double glazed window, radiator.

Shower Room: Shower cubicle, pedestal wash hand basin, W.C - low suite, UPVC double glazed widow, radiator.

Outside: Enclosed courtyard to the rear.

Material Information
Tenure:
The property is believed to be freehold. All prospective bidders should satisfy themselves of the tenure by inspecting the legal pack.

Council Tax:
We have been advised that the property falls within Blackpool Council – BAND A

Possession:
Vacant possession will be given upon completion.

Viewing:
Strictly by appointment with Auction House.

Services:
Prospective purchasers are advised to make their own enquiries of the relevant statutory authorities. NB: Services, Apparatus and Equipment have not been tested by Auction House and therefore cannot be verified as being in working order. The buyer is advised to obtain verification from their Solicitor/Surveyor.

These particulars are believed to be correct but their accuracy is not guaranteed and they do not form any part of any contract. Information relating to Rating and Town and Country Planning matters has been obtained by verbal enquiry only. Prospective purchasers are advised to make their own enquiries of the appropriate Authority. All measurements, areas and distances are approximate only. Potential purchasers are advised to check them.

Tenure: Freehold

EPC Rating: D

Council Tax Band

A

EPC Rating

D

Important Notice to Prospective Buyers

We draw your attention to the Special Conditions of Sale within the Legal Pack, referring to other charges in addition to the purchase price which may become payable. Such costs may include Search Fees, reimbursement of Sellers costs and Legal Fees, and Transfer Fees amongst others.

Buyers Premium

Non-refundable £1,200 inc VAT payable on the fall of the virtual gavel.

Administration Charge

Non-refundable £1,200 inc VAT payable on the fall of the virtual gavel.

Disbursements

Please see the legal pack for any disbursements listed that may become payable by the purchaser on completion.

Loading the bidding panel...

* Guide | £10,000+
  • 3 Bedrooms
  • Unconditional (Immediate Exchange)

Call the team on 01427 616436 for more information

Disclaimer: The map preview provided above is for general guidance only and may not accurately reflect the exact location or surrounding buildings. Prospective buyers and interested parties are strongly advised to independently verify the precise location and surroundings before bidding.

Note

  1. MONEY LAUNDERING REGULATIONS: Intending purchasers will be asked to produce identification documentation at a later stage and we would ask for your co-operation in order that there will be no delay in agreeing the sale.
  2. General : While we endeavour to make our sales particulars fair, accurate and reliable, they are only a general guide to the property and, accordingly, if there is any point which is of particular importance to you, please contact the office and we will be pleased to check the position for you, especially if you are contemplating travelling some distance to view the property.
  3. Measurements: These approximate room sizes are only intended as general guidance. You must verify the dimensions carefully before ordering carpets or any built-in furniture.
  4. Services: Please note we have not tested the services or any of the equipment or appliances in this property, accordingly we strongly advise prospective buyers to commission their own survey or service reports before finalising their offer to purchase.
  5. THESE PARTICULARS ARE ISSUED IN GOOD FAITH BUT DO NOT CONSTITUTE REPRESENTATIONS OF FACT OR FORM PART OF ANY OFFER OR CONTRACT. THE MATTERS REFERRED TO IN THESE PARTICULARS SHOULD BE INDEPENDENTLY VERIFIED BY PROSPECTIVE BUYERS OR TENANTS. NEITHER AUCTION HOUSE NOR ANY OF ITS EMPLOYEES OR AGENTS HAS ANY AUTHORITY TO MAKE OR GIVE ANY REPRESENTATION OR WARRANTY WHATEVER IN RELATION TO THIS PROPERTY.