Auction House / South West

  • For Sale By Unconditional Online Auction
  • Guide Price* : £350,000
  • Auction Ended 30/05/2023
  • Lot 8

17 Garden Crescent, Plymouth, Devon, PL1 3DA

FOR SALE VIA NATIONAL ONLINE AUCTION. REGISTER TO BID!

Description

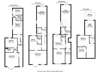
Mid-Terrace Investment Property

This impressive investment property is located in the popular waterside location of West Hoe area in Plymouth. Close to local amenities, Plymouth Hoe and the exciting redevelopment of Millbay Marina. The mid-terrace period property has undergone works to create 6 spacious apartments which are currently at varying degrees of renovation. These consist of five one bedroom apartments and a three bedroom maisonette on the top floor with a private roof terrace overlooking the the waterfront, countryside and surrounding properties. The top apartment has been finished to a high specification and is currently being used as an Airbnb whilst giving an indication of the potential for the remainder of the building. The property benefits from uPVC D/G and GCH.

AUCTIONEEERS NOTE Please note, the property is at varying stages of completion with photographs showing most of the apartments.
VIEWINGS Regular block viewing sessions will be provided in the lead up to the auction. Please telephone Auction House South West T: 01752 474200 to request a viewing.
NOTICE TO BIDDER Please be aware that if your Bid is successful on Auction day the exchange of contracts will happen immediately after the Auction.
FULL DETAILS Photographs, Dimensions, Floor Plans and Area Measurements (when available) are included within our full details online on our website. All published information is to aid identification of the property and is not necessarily to scale

Tenure: Freehold

EPC Rating: 64D, 56D

Lot Type

Residential Investments

Important Notice to Prospective Buyers

We draw your attention to the Special Conditions of Sale within the Legal Pack, referring to other charges in addition to the purchase price which may become payable. Such costs may include Search Fees, reimbursement of Sellers costs and Legal Fees, and Transfer Fees amongst others.

Administration Charge

£1000 + VAT (£1200 inc VAT)

Loading the bidding panel...

* Guide | £350,000
  • 8 Bedrooms
  • Unconditional (Immediate Exchange)

Call the team on 01752 474200 for more information

Disclaimer: The map preview provided above is for general guidance only and may not accurately reflect the exact location or surrounding buildings. Prospective buyers and interested parties are strongly advised to independently verify the precise location and surroundings before bidding.

Note

  1. MONEY LAUNDERING REGULATIONS: Intending purchasers will be asked to produce identification documentation at a later stage and we would ask for your co-operation in order that there will be no delay in agreeing the sale.
  2. General : While we endeavour to make our sales particulars fair, accurate and reliable, they are only a general guide to the property and, accordingly, if there is any point which is of particular importance to you, please contact the office and we will be pleased to check the position for you, especially if you are contemplating travelling some distance to view the property.
  3. Measurements: These approximate room sizes are only intended as general guidance. You must verify the dimensions carefully before ordering carpets or any built-in furniture.
  4. Services: Please note we have not tested the services or any of the equipment or appliances in this property, accordingly we strongly advise prospective buyers to commission their own survey or service reports before finalising their offer to purchase.
  5. THESE PARTICULARS ARE ISSUED IN GOOD FAITH BUT DO NOT CONSTITUTE REPRESENTATIONS OF FACT OR FORM PART OF ANY OFFER OR CONTRACT. THE MATTERS REFERRED TO IN THESE PARTICULARS SHOULD BE INDEPENDENTLY VERIFIED BY PROSPECTIVE BUYERS OR TENANTS. NEITHER AUCTION HOUSE NOR ANY OF ITS EMPLOYEES OR AGENTS HAS ANY AUTHORITY TO MAKE OR GIVE ANY REPRESENTATION OR WARRANTY WHATEVER IN RELATION TO THIS PROPERTY.