Auction House / Lincolnshire

  • For Sale By Unconditional Online Auction
  • Guide Price* : £60,000
  • Auction Ended 16/05/2023
  • Lot 23

1 Holme Walk, Gainsborough, Lincolnshire, DN21 1RL

FOR SALE BY UNCONDITIONAL ONLINE AUCTION! (IMMEDIATE EXCHANGE)
This property will be offered for sale by auction opening 15 May 2023 with a *guide price of £60,000 - £70,000 (plus fees). To register to bid: auctionhouse.co.uk/lincolnshire

Description

Situation
The property is situate on Holme Walk, Gainsborough a popular position in the “up hills” area of this Lincolnshire market town, there are a number of amenities nearby and the town centre, and its wide range of facilities including Marshalls Yard retail leisure complex, is a short distance away.
The town of Gainsborough is also well positioned for access to the surrounding towns of Retford and Scunthorpe along with the cities of Lincoln and Doncaster.

Description
An end terrace house offered for sale in need of some modernisation and improvement works throughout but benefiting from well proportioned family living accommodation with the benefit of gas fired central heating, uPVC double glazing along with off road parking and enclosed gardens.

This is an ideal property for both investors and first time buyers alike being in an area of high rental demand and there is significant scope to add value or benefit a strong yield.

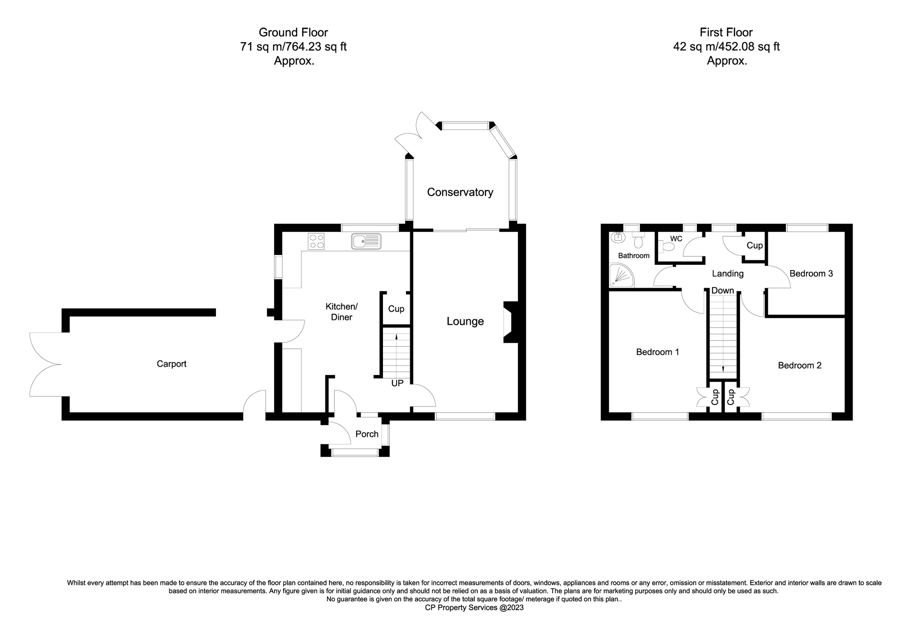
Accommodation
uPVC side entrance door into:

Dining Kitchen: 3.94m x 5.69m (12’11 x 18’8) maximum measurements
uPVC double glazed windows to side and rear elevations, radiator, range of fitted floor, drawer and wall units, complementary rolled edged worksurface housing one and a half bowl sink and drainer, four ring gas hob with extractor over, double oven, fully tiled floor, understairs storage cupboard, archway to:

Entrance Hallway: Timber door to a front entrance porch.

Sitting Room: 3.25m x 5.69m (10’8 x 18’8) maximum
uPVC double glazed windows to the front elevation and uPVC double glazed French door to the conservatory, radiator and gas fire.

Entrance Hallway: Stairs rising to first floor landing with radiator, upvc double glazed window to the rear elevation, door to:

W.C.: With opaque glass window to the rear elevation and low level flush w.c.

Landing: Airing cupboard housing Baxi gas combination boiler.

Family bathroom: With low level flush w.c., pedestal wash hand basin and corner framed shower cubicle with electric shower over, fully tiled walls, uPVC double glazed opaque glass window to the rear elevation and heated towel rail.

Bedroom one: 1.98m x 3.94m (6’6 x 12’11) uPVC double glazed window to the front elevation, radiator, walk in wardrobe

Bedroom two: 3.28m x 3.02m (10’9 x 9’11) With walk in recess. uPVC double glazed window to the front elevation, radiator, walk in wardrobe

Bedroom three: 2.39m x 2.59m (7’10 x 8’6) uPVC double glazed window to the rear elevation and radiator.

Conservatory:

Externally: Gardens to the front, side and rear of the property. Enclosed to the rear, off road parking to the side of the property under a car porch.

Material Information
Tenure:
The property is believed to be freehold. All prospective bidders should satisfy themselves of the tenure by inspecting the legal pack.

Council Tax:
We have been advised that the property falls within West Lindsey District Council – BAND A

Possession:
Vacant possession will be given upon completion.

Viewing:
Strictly by appointment with Auction House.

Services:
Prospective purchasers are advised to make their own enquiries of the relevant statutory authorities. NB: Services, Apparatus and Equipment have not been tested by Auction House and therefore cannot be verified as being in working order. The buyer is advised to obtain verification from their Solicitor/Surveyor.

These particulars are believed to be correct but their accuracy is not guaranteed and they do not form any part of any contract. Information relating to Rating and Town and Country Planning matters has been obtained by verbal enquiry only. Prospective purchasers are advised to make their own enquiries of the appropriate Authority. All measurements, areas and distances are approximate only. Potential purchasers are advised to check them.

Tenure: Freehold

EPC Rating:C

Council Tax Band

A

EPC Rating

C

Important Notice to Prospective Buyers

We draw your attention to the Special Conditions of Sale within the Legal Pack, referring to other charges in addition to the purchase price which may become payable. Such costs may include Search Fees, reimbursement of Sellers costs and Legal Fees, and Transfer Fees amongst others.

Buyers Premium

Non-refundable £1,200 inc VAT payable on the fall of the virtual gavel.

Administration Charge

Non-refundable £1,200 inc VAT payable on the fall of the virtual gavel.

Disbursements

Please see the legal pack for any disbursements listed that may become payable by the purchaser on completion.

Loading the bidding panel...

* Guide | £60,000
  • 3 Bedrooms
  • Unconditional (Immediate Exchange)

Call the team on 01427 616436 for more information

Related Documents

Disclaimer: The map preview provided above is for general guidance only and may not accurately reflect the exact location or surrounding buildings. Prospective buyers and interested parties are strongly advised to independently verify the precise location and surroundings before bidding.

Note

  1. MONEY LAUNDERING REGULATIONS: Intending purchasers will be asked to produce identification documentation at a later stage and we would ask for your co-operation in order that there will be no delay in agreeing the sale.
  2. General : While we endeavour to make our sales particulars fair, accurate and reliable, they are only a general guide to the property and, accordingly, if there is any point which is of particular importance to you, please contact the office and we will be pleased to check the position for you, especially if you are contemplating travelling some distance to view the property.
  3. Measurements: These approximate room sizes are only intended as general guidance. You must verify the dimensions carefully before ordering carpets or any built-in furniture.
  4. Services: Please note we have not tested the services or any of the equipment or appliances in this property, accordingly we strongly advise prospective buyers to commission their own survey or service reports before finalising their offer to purchase.
  5. THESE PARTICULARS ARE ISSUED IN GOOD FAITH BUT DO NOT CONSTITUTE REPRESENTATIONS OF FACT OR FORM PART OF ANY OFFER OR CONTRACT. THE MATTERS REFERRED TO IN THESE PARTICULARS SHOULD BE INDEPENDENTLY VERIFIED BY PROSPECTIVE BUYERS OR TENANTS. NEITHER AUCTION HOUSE NOR ANY OF ITS EMPLOYEES OR AGENTS HAS ANY AUTHORITY TO MAKE OR GIVE ANY REPRESENTATION OR WARRANTY WHATEVER IN RELATION TO THIS PROPERTY.