Auction House / Lincolnshire

  • For Sale By Unconditional Online Auction
  • Guide Price* : £10,000+
  • Auction Ended 16/05/2023
  • Lot 35

78 Melrose Street, Hull, North Humberside, HU3 6ET

FOR SALE BY UNCONDITIONAL ONLINE AUCTION! (IMMEDIATE EXCHANGE)
This property will be offered for sale by auction closing 16th May 2023 with a *guide price of £10,000+ (plus fees). To register to bid: auctionhouse.co.uk/lincolnshire

Description

Situation:
The property is situate on Melrose Street Hull, a popular and central residential area of this Yorkshire city, near the city centre with a wide range of facilities and amenities all within easy reach and supported by excellent public transport links.

Description:
A two bedroom mid terrace house offered for sale with well proportioned accommodation, in this residential area of Hull. Modernisation and improvement works have been started, and an internal viewing is recommended to appreciate the scope on offer. This is an opportunity to add significant value to the property and produce a strong yield in a popular area of the City, along with potential internal reconfiguration to a 3 bedroom house.

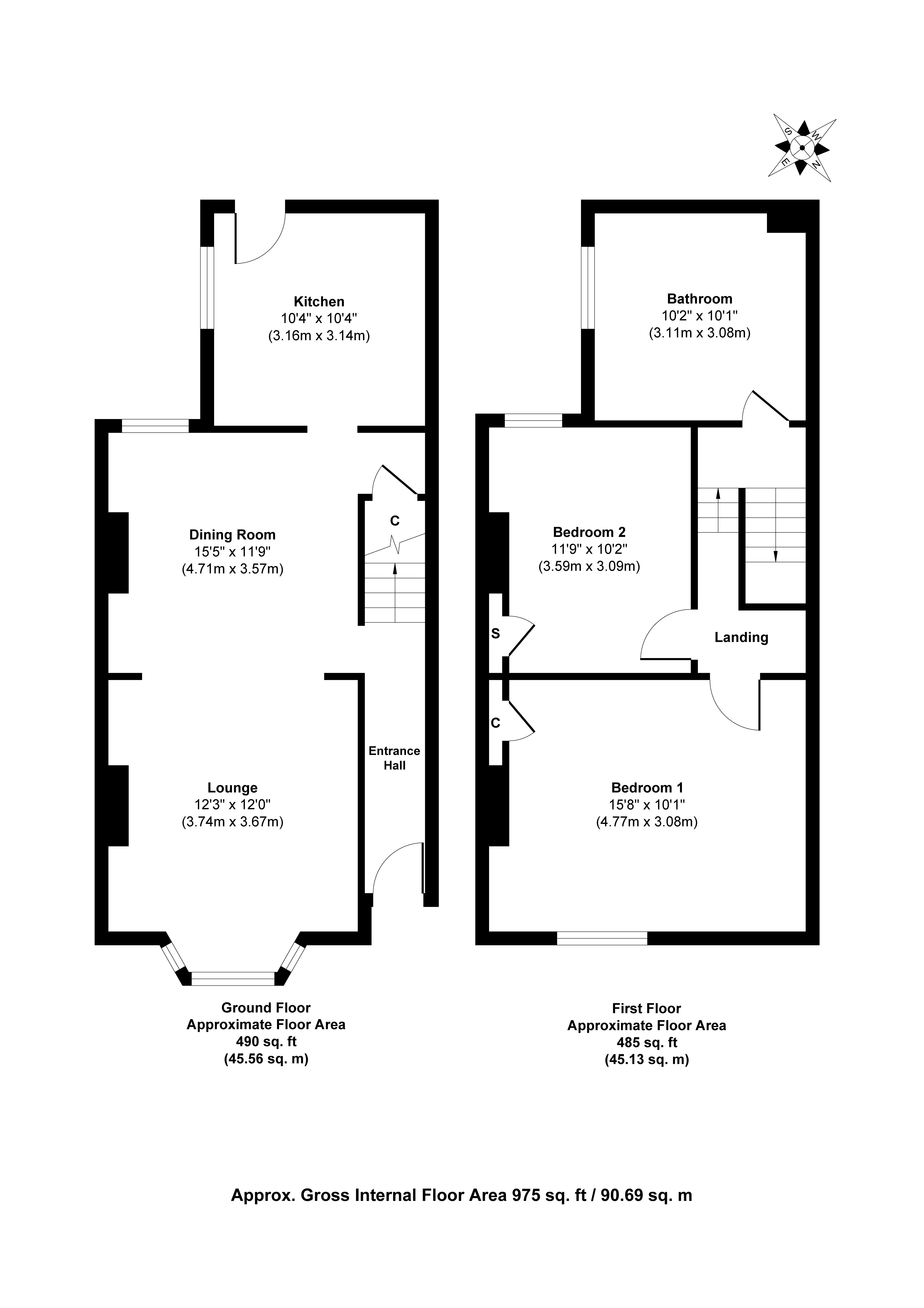
Accommodation
Ground Floor
Entrance Hallway
Sitting Room
Dining Room
Kitchen
Inner Hallway

First Floor:
Landing
Bedroom one
Bedroom two
Family Bathroom

Externally:
The property benefits from an enclosed garden area to the rear and a small buffer garden to the front.

Material Information
Tenure:
The property is believed to be freehold. All prospective bidders should satisfy themselves of the tenure by inspecting the legal pack.

Council Tax:
We have been advised that the property falls within Kingston Upon Hull Council – BAND A

Possession:
Vacant possession will be given upon completion.

Viewing:
Strictly by appointment with Auction House.

Services:
Prospective purchasers are advised to make their own enquiries of the relevant statutory authorities. NB: Services, Apparatus and Equipment have not been tested by Auction House and therefore cannot be verified as being in working order. The buyer is advised to obtain verification from their Solicitor/Surveyor.

These particulars are believed to be correct but their accuracy is not guaranteed and they do not form any part of any contract. Information relating to Rating and Town and Country Planning matters has been obtained by verbal enquiry only. Prospective purchasers are advised to make their own enquiries of the appropriate Authority. All measurements, areas and distances are approximate only. Potential purchasers are advised to check them.

Tenure: Freehold

EPC Rating: F

Council Tax Band

A

EPC Rating

F

Important Notice to Prospective Buyers

We draw your attention to the Special Conditions of Sale within the Legal Pack, referring to other charges in addition to the purchase price which may become payable. Such costs may include Search Fees, reimbursement of Sellers costs and Legal Fees, and Transfer Fees amongst others.

Buyers Premium

Non-refundable £1,200 inc VAT payable on the fall of the virtual gavel.

Administration Charge

Non-refundable £1,200 inc VAT payable on the fall of the virtual gavel.

Disbursements

Please see the legal pack for any disbursements listed that may become payable by the purchaser on completion.

Loading the bidding panel...

* Guide | £10,000+
  • 2 Bedrooms
  • Unconditional (Immediate Exchange)

Call the team on 01427 616436 for more information

Disclaimer: The map preview provided above is for general guidance only and may not accurately reflect the exact location or surrounding buildings. Prospective buyers and interested parties are strongly advised to independently verify the precise location and surroundings before bidding.

Note

  1. MONEY LAUNDERING REGULATIONS: Intending purchasers will be asked to produce identification documentation at a later stage and we would ask for your co-operation in order that there will be no delay in agreeing the sale.
  2. General : While we endeavour to make our sales particulars fair, accurate and reliable, they are only a general guide to the property and, accordingly, if there is any point which is of particular importance to you, please contact the office and we will be pleased to check the position for you, especially if you are contemplating travelling some distance to view the property.
  3. Measurements: These approximate room sizes are only intended as general guidance. You must verify the dimensions carefully before ordering carpets or any built-in furniture.
  4. Services: Please note we have not tested the services or any of the equipment or appliances in this property, accordingly we strongly advise prospective buyers to commission their own survey or service reports before finalising their offer to purchase.
  5. THESE PARTICULARS ARE ISSUED IN GOOD FAITH BUT DO NOT CONSTITUTE REPRESENTATIONS OF FACT OR FORM PART OF ANY OFFER OR CONTRACT. THE MATTERS REFERRED TO IN THESE PARTICULARS SHOULD BE INDEPENDENTLY VERIFIED BY PROSPECTIVE BUYERS OR TENANTS. NEITHER AUCTION HOUSE NOR ANY OF ITS EMPLOYEES OR AGENTS HAS ANY AUTHORITY TO MAKE OR GIVE ANY REPRESENTATION OR WARRANTY WHATEVER IN RELATION TO THIS PROPERTY.