Auction House / Wales - Cardiff

  • For Sale By Unconditional Online Auction
  • Guide Price* : £46,000
  • Auction Ended 25/04/2023
  • Lot 25

30 High Street, Blaenau Ffestiniog, Gwynedd, LL41 3AE

FOR SALE VIA NATIONAL ONLINE AUCTION. REGISTER TO BID!

Description

Bidding opens Monday 24th April 2023 at 13:00 and closes Tuesday 25th April 2023 at 13:00.

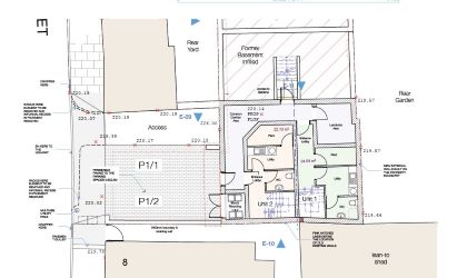
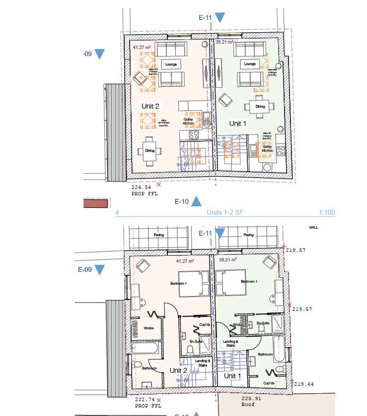
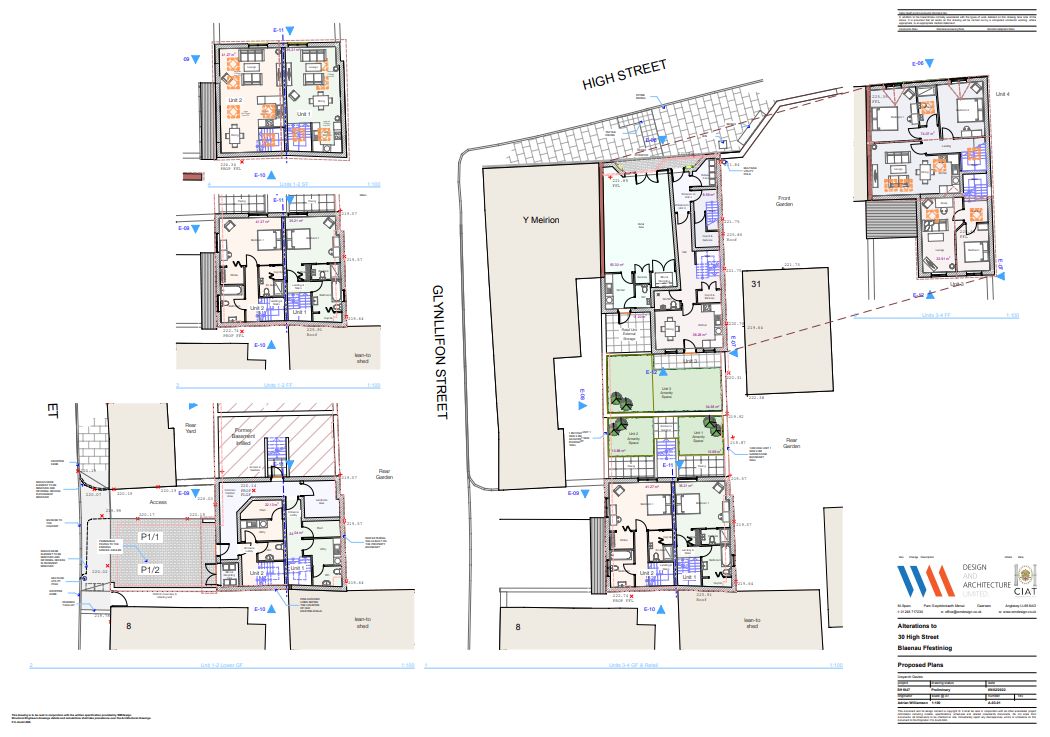
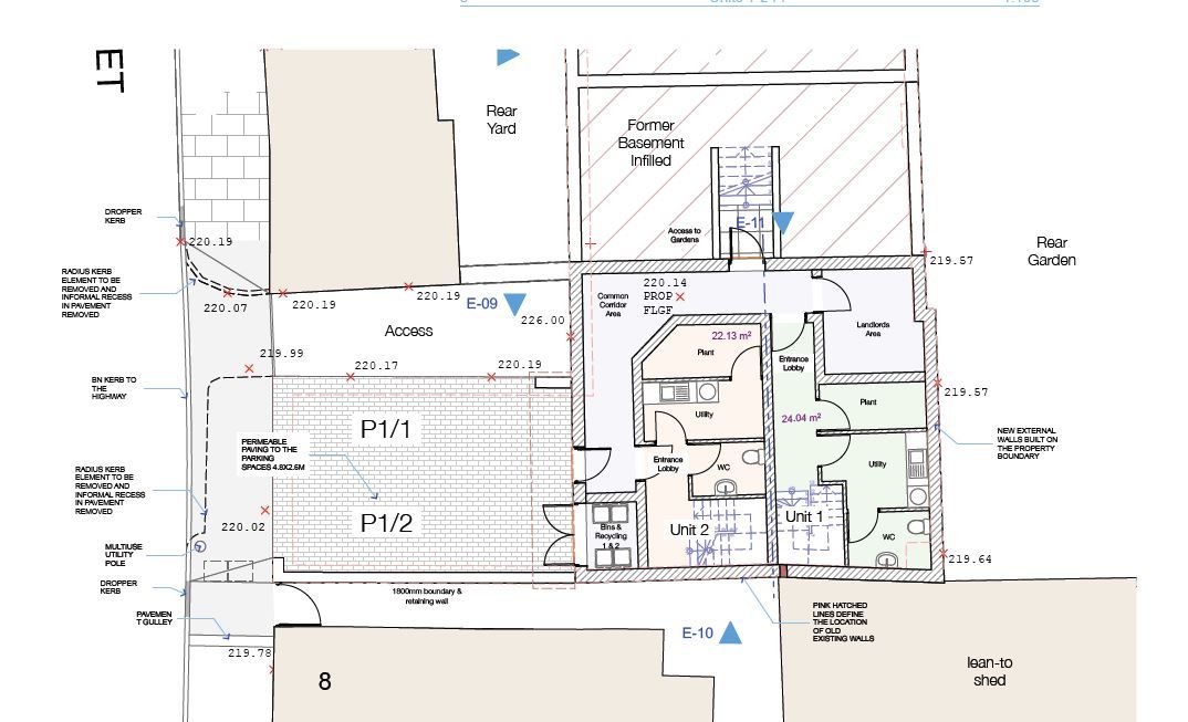
Development Opportunity

An opportunity to acquire an end terraced retail property which benefits from full planning for the demolition of the existing property and construction of self-contained retail unit fronting the High Street (55m2) 2 x 1 bedroom town houses, 1 x first floor two bedroom apartment and a one-bedroom maisonette for the purpose of affordable housing. The application was approved in September 2021 and further documentation can be viewed from Gwynedd County Council planning department using reference number (C21/0922/03/LL). Of course, there is also an opportunity for a business occupier or an investor purchase.
The property is located on the high street of Blaenau Ffestiniog, an historic mining town, once known as the Slate Capital of the World - it is now a busy town and a popular tourist destination located on the fringes of the UK's recently awarded 32nd UNESCO Heritage Site.

Viewings Dafydd Hardy (Commercial) 01286 676760

Tenure: See Legal Pack

EPC Rating: D

Important Notice to Prospective Buyers

We draw your attention to the Special Conditions of Sale within the Legal Pack, referring to other charges in addition to the purchase price which may become payable. Such costs may include Search Fees, reimbursement of Sellers costs and Legal Fees, and Transfer Fees amongst others.

Buyers Premium

£500 plus VAT payable on the fall of the Virtual Gavel.

Administration Charge

1.2% inc VAT of the purchase price, subject to a minimum of £1200 inc VAT, payable on exchange of contracts.

Disbursements

Please see Legal Pack for any Disbursements.

Loading the bidding panel...

* Guide | £46,000
  • Unconditional (Immediate Exchange)

Call the team on 02920 475 184 for more information

Disclaimer: The map preview provided above is for general guidance only and may not accurately reflect the exact location or surrounding buildings. Prospective buyers and interested parties are strongly advised to independently verify the precise location and surroundings before bidding.

Note

  1. MONEY LAUNDERING REGULATIONS: Intending purchasers will be asked to produce identification documentation at a later stage and we would ask for your co-operation in order that there will be no delay in agreeing the sale.
  2. General : While we endeavour to make our sales particulars fair, accurate and reliable, they are only a general guide to the property and, accordingly, if there is any point which is of particular importance to you, please contact the office and we will be pleased to check the position for you, especially if you are contemplating travelling some distance to view the property.
  3. Measurements: These approximate room sizes are only intended as general guidance. You must verify the dimensions carefully before ordering carpets or any built-in furniture.
  4. Services: Please note we have not tested the services or any of the equipment or appliances in this property, accordingly we strongly advise prospective buyers to commission their own survey or service reports before finalising their offer to purchase.
  5. THESE PARTICULARS ARE ISSUED IN GOOD FAITH BUT DO NOT CONSTITUTE REPRESENTATIONS OF FACT OR FORM PART OF ANY OFFER OR CONTRACT. THE MATTERS REFERRED TO IN THESE PARTICULARS SHOULD BE INDEPENDENTLY VERIFIED BY PROSPECTIVE BUYERS OR TENANTS. NEITHER AUCTION HOUSE NOR ANY OF ITS EMPLOYEES OR AGENTS HAS ANY AUTHORITY TO MAKE OR GIVE ANY REPRESENTATION OR WARRANTY WHATEVER IN RELATION TO THIS PROPERTY.