Auction House / North West

  • For Sale By Unconditional Online Auction
  • Guide Price* : £187,000
  • Auction Ended 25/04/2023
  • Lot 9

1 The Gatehouse, 1 The Gatehouse Church Street, Leominster, Herefordshire, HR6 8NE

Grade II Listed – Three Storey, Four-Bedroom Georgian Town house. National Online Auction 5th-6th June 2023

Description

Grade II Listed – Three Storey, Four-Bedroom Georgian Town house. National Online Auction 5th-6th June 2023

Grade II Listed – Three Storey, Four-Bedroom Georgian Town House

The property comprises a Grade II Listed, three storey, four-bedroom Georgian town house.

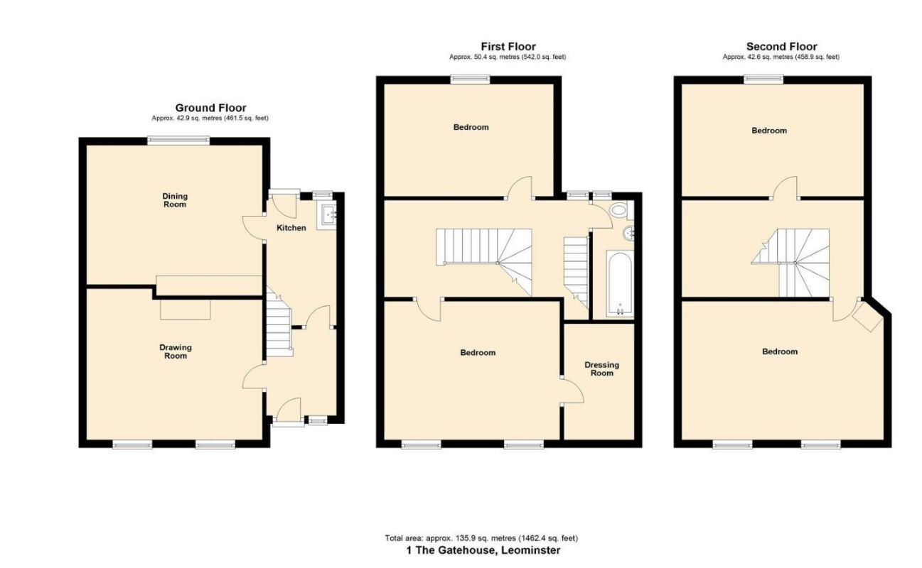
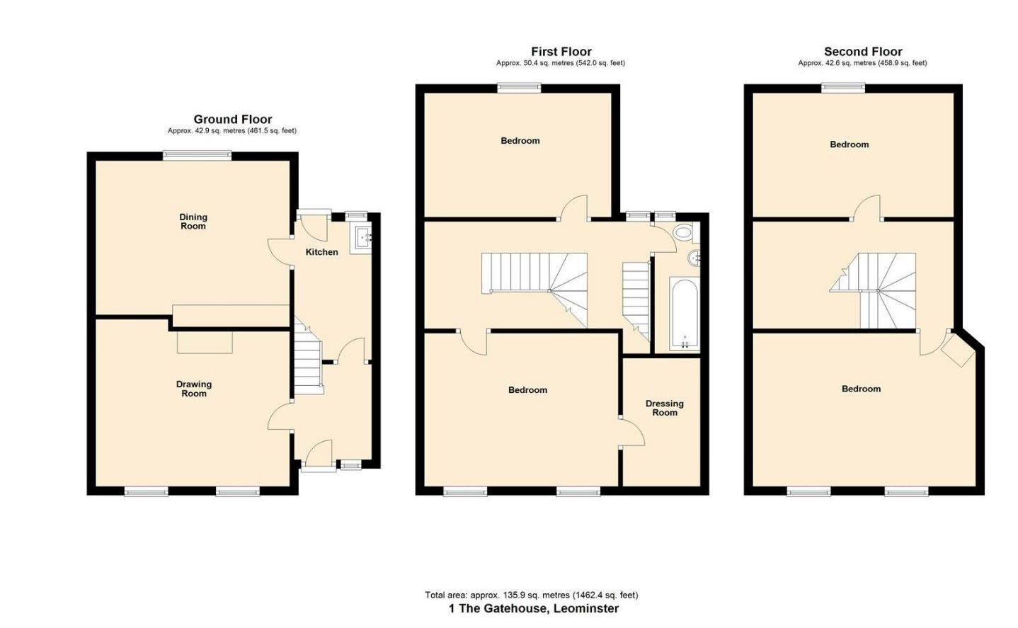
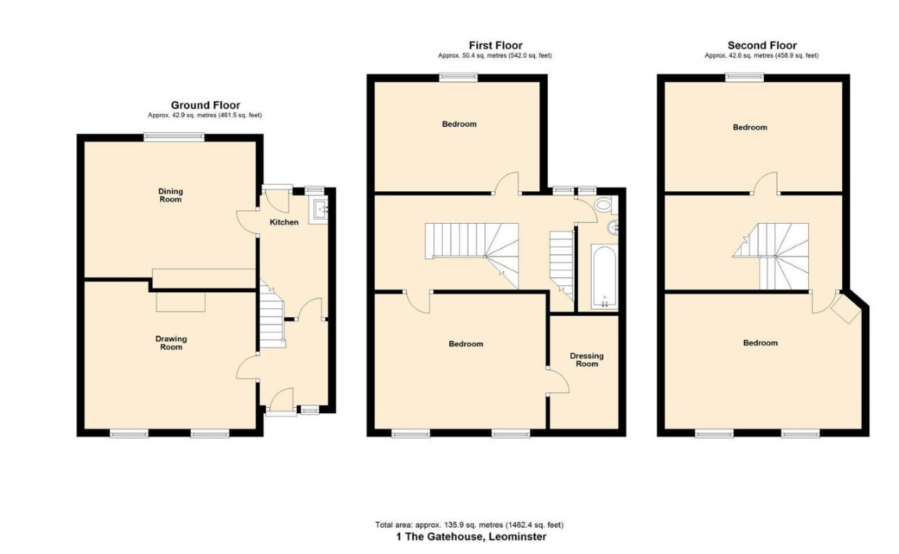
Accommodation
The property provides the following accommodation:
Ground Floor: Entrance hall, sitting room, kitchen, dining room.
First Floor: Two bedrooms, (second bedroom includes separate dressing room) one bathroom.
Second Floor: Two bedrooms.
External: Enclosed walled rear garden, vehicle access.

Location
The property is situated in Leominster, approximately 0.25 miles from Leominster's town centre. The premises is positioned in close proximity to an array of local amenities including shops, supermarkets, cafes and Grange Park. Leominster also has good schooling, sports centre with swimming pool, train station within walking distance with regular services to the nearby cathedral city of Hereford.

Tenure: Freehold
Title number: Unregistered Title
Length of Lease/Term:
Ground Rent : £
Service Charge: £
Council Tax Band: D

Finance is available on this lot. For a decision-in-principle visit togethermoney.com/amydip/

ANTI-MONEY LAUNDERING REGULATIONS
In accordance with Anti-Money Laundering Regulations, two forms of identification and confirmation of the source of funding will be required from the successful purchaser.

Every effort has been made to confirm the accuracy of the lot details including any defect in the title both with the vendor and their solicitor. Auction House will not be held responsible for any failure to disclose any such defects.

Any purchasers choosing to buy without viewing in person are doing so at their own risk and acknowledge that the auctioneer will not be held responsible for any issues that may arise due to them being unintentionally missed from the video or sales particulars.

Please refer to legal pack for additional fees and the Auction Information document for guidance prior to bidding.

Tenure: Freehold

EPC Rating: To follow

Important Notice to Prospective Buyers

We draw your attention to the Special Conditions of Sale within the Legal Pack, referring to other charges in addition to the purchase price which may become payable. Such costs may include Search Fees, reimbursement of Sellers costs and Legal Fees, and Transfer Fees amongst others.

Buyers Premium

4.8% including VAT subject to a minimum of £6,000.00 including VAT payable upon exchange of contracts

Administration Charge

No Fee Applicable

Loading the bidding panel...

* Guide | £187,000
  • Town House
  • 4 Bedrooms
  • Unconditional (Immediate Exchange)

Call the team on 01772 772450 for more information

Disclaimer: The map preview provided above is for general guidance only and may not accurately reflect the exact location or surrounding buildings. Prospective buyers and interested parties are strongly advised to independently verify the precise location and surroundings before bidding.

Note

  1. MONEY LAUNDERING REGULATIONS: Intending purchasers will be asked to produce identification documentation at a later stage and we would ask for your co-operation in order that there will be no delay in agreeing the sale.
  2. General : While we endeavour to make our sales particulars fair, accurate and reliable, they are only a general guide to the property and, accordingly, if there is any point which is of particular importance to you, please contact the office and we will be pleased to check the position for you, especially if you are contemplating travelling some distance to view the property.
  3. Measurements: These approximate room sizes are only intended as general guidance. You must verify the dimensions carefully before ordering carpets or any built-in furniture.
  4. Services: Please note we have not tested the services or any of the equipment or appliances in this property, accordingly we strongly advise prospective buyers to commission their own survey or service reports before finalising their offer to purchase.
  5. THESE PARTICULARS ARE ISSUED IN GOOD FAITH BUT DO NOT CONSTITUTE REPRESENTATIONS OF FACT OR FORM PART OF ANY OFFER OR CONTRACT. THE MATTERS REFERRED TO IN THESE PARTICULARS SHOULD BE INDEPENDENTLY VERIFIED BY PROSPECTIVE BUYERS OR TENANTS. NEITHER AUCTION HOUSE NOR ANY OF ITS EMPLOYEES OR AGENTS HAS ANY AUTHORITY TO MAKE OR GIVE ANY REPRESENTATION OR WARRANTY WHATEVER IN RELATION TO THIS PROPERTY.