Auction House / East Anglia

  • For Sale By Unconditional Online Auction
  • Guide Price* : £120,000
  • Auction Ended 06/04/2023
  • Lot 4

105 The Causeway Burwell, Cambridge, Cambridgeshire, CB25 0DU

SOLD PRIOR TO AUCTION

Description

SOLD PRIOR TO AUCTION

A detached freehold commercial investment currently producing £13,200 pa

This commercial property is currently producing an income of £13,200pa which is currently trading as a coffee shop. We are offering the freehold interest in the building with the first floor flat already sold off on a long lease. On the ground floor there is a coffee shop, kitchen preparation area and toilet facilities with parking to the rear.

Burwell is located west of the famous flat racing centre of Newmarket and north of the University City of Cambridge. The village offers local facilities.

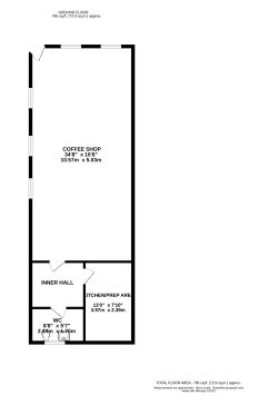
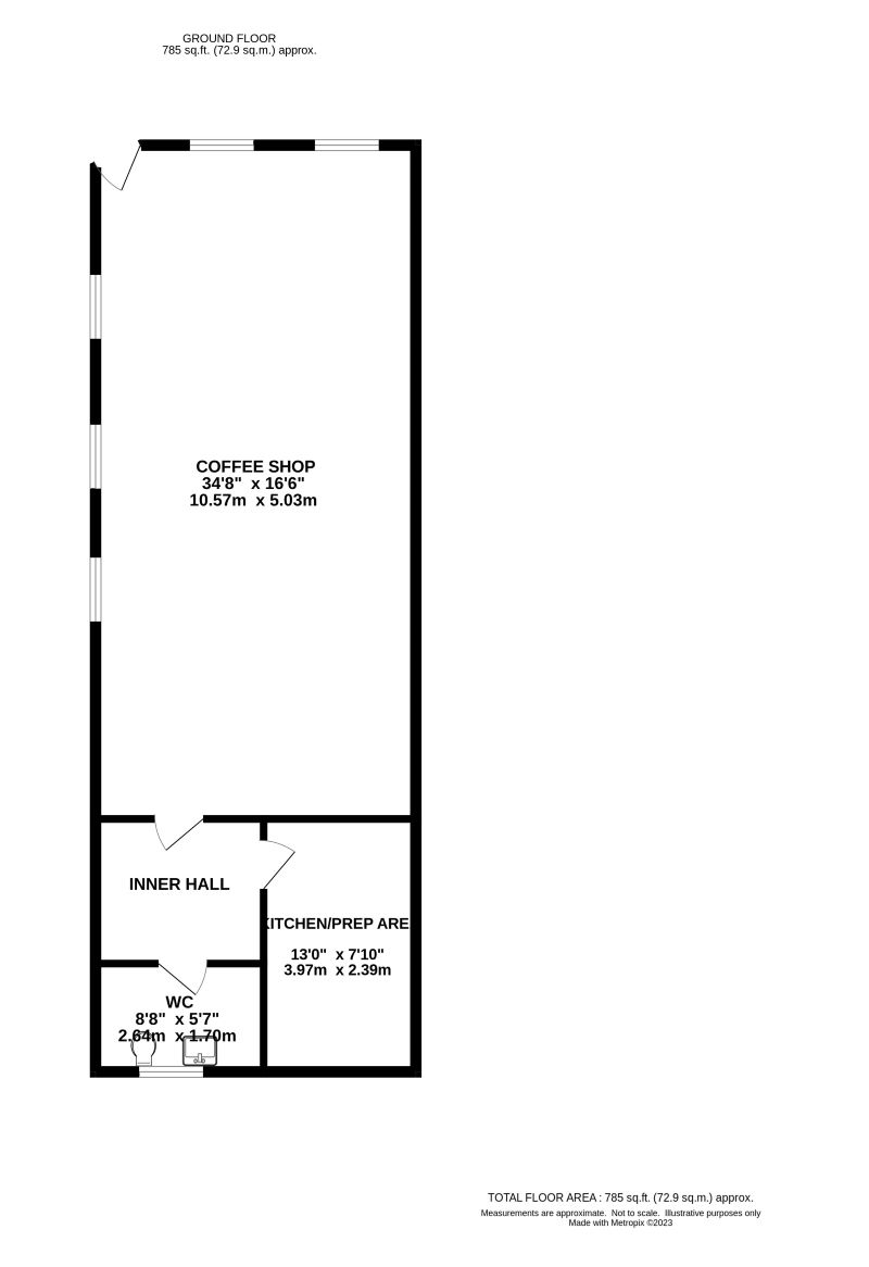
Ground Floor Coffee shop, kitchen preparation area and toilet facilities
Outside Parking at rear.

Tenure: Freehold

EPC Rating: C

Important Notice to Prospective Buyers

We draw your attention to the Special Conditions of Sale within the Legal Pack, referring to other charges in addition to the purchase price which may become payable. Such costs may include Search Fees, reimbursement of Sellers costs and Legal Fees, and Transfer Fees amongst others.

Buyers Premium

£900 inc VAT payable on exchange of contracts

Administration Charge

Administration Charge is a non-refundable £1,200 inc VAT payable on the fall of the virtual gavel.

Loading the bidding panel...

* Guide | £120,000
  • Commercial Property
  • Unconditional (Immediate Exchange)

Call the team on 01603 505 100 for more information

Disclaimer: The map preview provided above is for general guidance only and may not accurately reflect the exact location or surrounding buildings. Prospective buyers and interested parties are strongly advised to independently verify the precise location and surroundings before bidding.

Note

  1. MONEY LAUNDERING REGULATIONS: Intending purchasers will be asked to produce identification documentation at a later stage and we would ask for your co-operation in order that there will be no delay in agreeing the sale.
  2. General : While we endeavour to make our sales particulars fair, accurate and reliable, they are only a general guide to the property and, accordingly, if there is any point which is of particular importance to you, please contact the office and we will be pleased to check the position for you, especially if you are contemplating travelling some distance to view the property.
  3. Measurements: These approximate room sizes are only intended as general guidance. You must verify the dimensions carefully before ordering carpets or any built-in furniture.
  4. Services: Please note we have not tested the services or any of the equipment or appliances in this property, accordingly we strongly advise prospective buyers to commission their own survey or service reports before finalising their offer to purchase.
  5. THESE PARTICULARS ARE ISSUED IN GOOD FAITH BUT DO NOT CONSTITUTE REPRESENTATIONS OF FACT OR FORM PART OF ANY OFFER OR CONTRACT. THE MATTERS REFERRED TO IN THESE PARTICULARS SHOULD BE INDEPENDENTLY VERIFIED BY PROSPECTIVE BUYERS OR TENANTS. NEITHER AUCTION HOUSE NOR ANY OF ITS EMPLOYEES OR AGENTS HAS ANY AUTHORITY TO MAKE OR GIVE ANY REPRESENTATION OR WARRANTY WHATEVER IN RELATION TO THIS PROPERTY.