Auction House / Lincolnshire

  • For Sale By Unconditional Online Auction
  • Guide Price* : £15,000+
  • Auction Ended 04/04/2023
  • Lot 14

61-61A Bolton Street, Blackpool, Lancashire, FY1 6AA

FOR SALE BY UNCONDITIONAL ONLINE AUCTION! (IMMEDIATE EXCHANGE)
This property will be offered for sale by auction opening 3 April 2023 with a *guide price of £15,000 (plus fees). To register to bid: auctionhouse.co.uk/lincolnshire

Description

Situation:
We are pleased to offer this investment opportunity for sale. This substantial corner property comprises of an empty retail unit/storage unit, a 3 bedroom maisonette and a garage. The property is situated in Bolton Street, South Shore being close to Bond Street and The Promenade.

Location:
The property is well situated on Bolton Street, parallel to Lytham Road, Blackpool town centre. Bolton Street is a mainly commercial street right next to the promenade, nearest to Blackpool South train station. The area is a large mix of commercial and residential properties with an extremely high level of footfall and traffic. Blackpool is located 9.6 miles south of Fleetwood, 17 miles west of Preston and 50 miles northwest of Manchester.

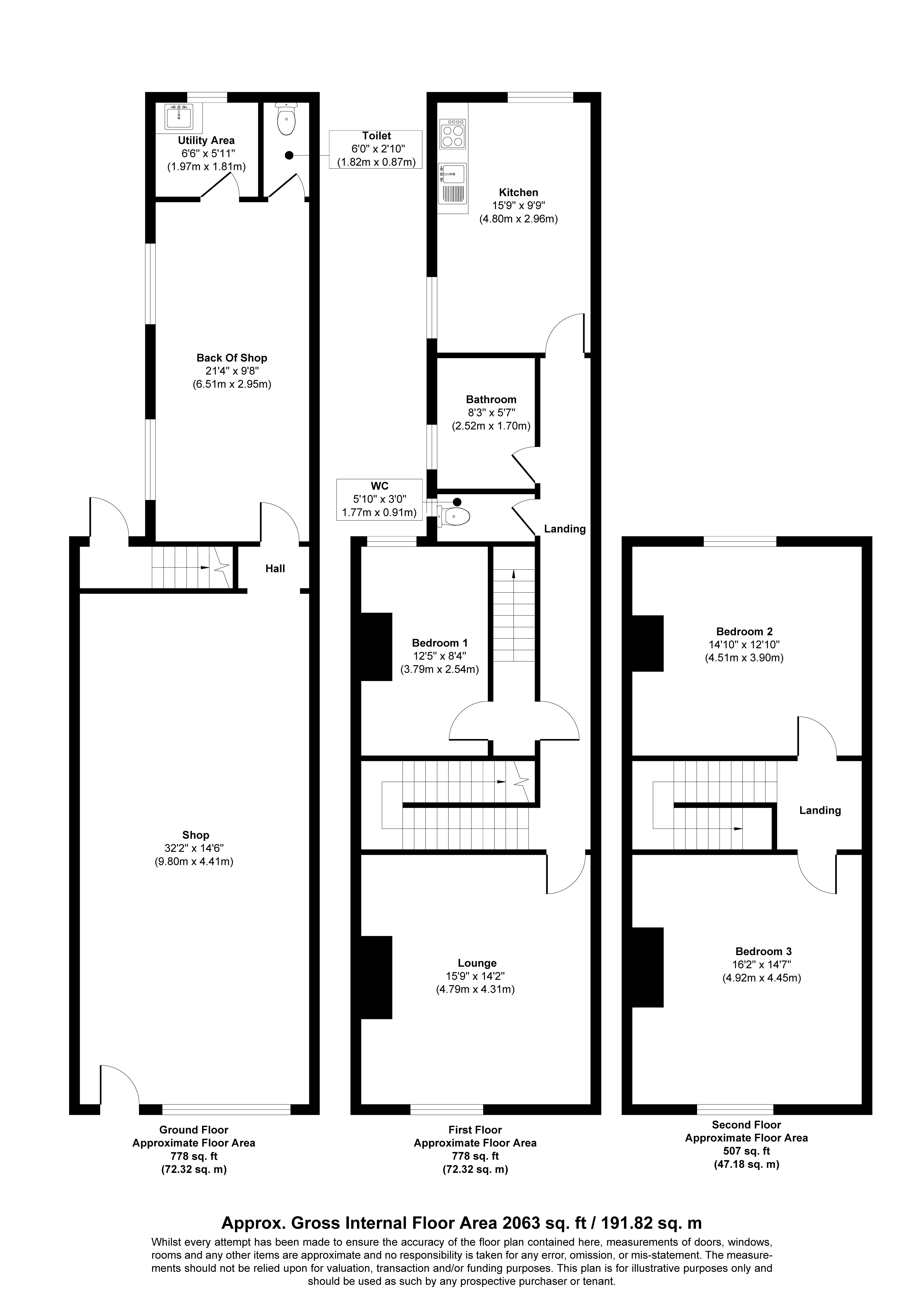
Accommodation Ground Floor:
Main Shop (approx. 700sq ft).
Rear Showroom
Kitchen Area
Toilet

Lower Ground Floor:
Cellar area.

61A BOLTON STREET

Ground Floor:
Separate Entrance leading to staircase.

First Floor:
Lounge.
Bedroom
Toilet
Bathroom comprising bath with shower over and hand basin

Second Floor:
Bedroom
Bedroom
Posesssion The property is offered with vacant possession. When previously let, the shop achieved £80 per week, the garage achieved £20 per week and the maisonette £130 per week generating an annual income of £11,960 pa.
Material Information Tenure:
The property is believed to be freehold. All prospective bidders should satisfy themselves of the tenure by inspecting the legal pack.

Council Tax:
We have been advised that the property falls within Blackpool Borough Council – BAND A.

Business Rates:
The adopted rateable value is £3,500 as of the 1st April 2017.

Possession:
Vacant possession will be given upon completion.

Viewing:
Strictly by appointment with Auction House.

Services:
Prospective purchasers are advised to make their own enquiries of the relevant statutory authorities. NB: Services, Apparatus and Equipment have not been tested by Auction House and therefore cannot be verified as being in working order. The buyer is advised to obtain verification from their Solicitor/Surveyor.

These particulars are believed to be correct but their accuracy is not guaranteed and they do not form any part of any contract. Information relating to Rating and Town and Country Planning matters has been obtained by verbal enquiry only. Prospective purchasers are advised to make their own enquiries of the appropriate Authority. All measurements, areas and distances are approximate only. Potential purchasers are advised to check them.

Council Tax Band

A

EPC Rating

C

Important Notice to Prospective Buyers

We draw your attention to the Special Conditions of Sale within the Legal Pack, referring to other charges in addition to the purchase price which may become payable. Such costs may include Search Fees, reimbursement of Sellers costs and Legal Fees, and Transfer Fees amongst others.

Buyers Premium

Non-refundable £1,200 inc VAT payable on the fall of the virtual gavel

Administration Charge

Non-refundable £1,200 inc VAT payable on the fall of the virtual gavel

Disbursements

Please see the legal pack for any disbursements listed that may become payable by the purchaser on completion.

Loading the bidding panel...

* Guide | £15,000+
  • 3 Bedrooms
  • Unconditional (Immediate Exchange)

Call the team on 01427 616436 for more information

Disclaimer: The map preview provided above is for general guidance only and may not accurately reflect the exact location or surrounding buildings. Prospective buyers and interested parties are strongly advised to independently verify the precise location and surroundings before bidding.

Note

  1. MONEY LAUNDERING REGULATIONS: Intending purchasers will be asked to produce identification documentation at a later stage and we would ask for your co-operation in order that there will be no delay in agreeing the sale.
  2. General : While we endeavour to make our sales particulars fair, accurate and reliable, they are only a general guide to the property and, accordingly, if there is any point which is of particular importance to you, please contact the office and we will be pleased to check the position for you, especially if you are contemplating travelling some distance to view the property.
  3. Measurements: These approximate room sizes are only intended as general guidance. You must verify the dimensions carefully before ordering carpets or any built-in furniture.
  4. Services: Please note we have not tested the services or any of the equipment or appliances in this property, accordingly we strongly advise prospective buyers to commission their own survey or service reports before finalising their offer to purchase.
  5. THESE PARTICULARS ARE ISSUED IN GOOD FAITH BUT DO NOT CONSTITUTE REPRESENTATIONS OF FACT OR FORM PART OF ANY OFFER OR CONTRACT. THE MATTERS REFERRED TO IN THESE PARTICULARS SHOULD BE INDEPENDENTLY VERIFIED BY PROSPECTIVE BUYERS OR TENANTS. NEITHER AUCTION HOUSE NOR ANY OF ITS EMPLOYEES OR AGENTS HAS ANY AUTHORITY TO MAKE OR GIVE ANY REPRESENTATION OR WARRANTY WHATEVER IN RELATION TO THIS PROPERTY.