Auction House / Beds & Bucks

  • For Sale By Unconditional Online Auction
  • Guide Price* : £60,000
  • Auction Ended 14/12/2018
  • Lot 9

51a Buxton Road, Luton, Bedfordshire, LU1 1RE

One bedroom ground floor apartment.

Viewing Details

Wed 28 Nov: 14:30 - 15:00
Sat 1 Dec: 12:00 - 12:30
Wed 5 Dec: 09:30 - 10:00

Location

The property is situated close to Luton town centre.

Description

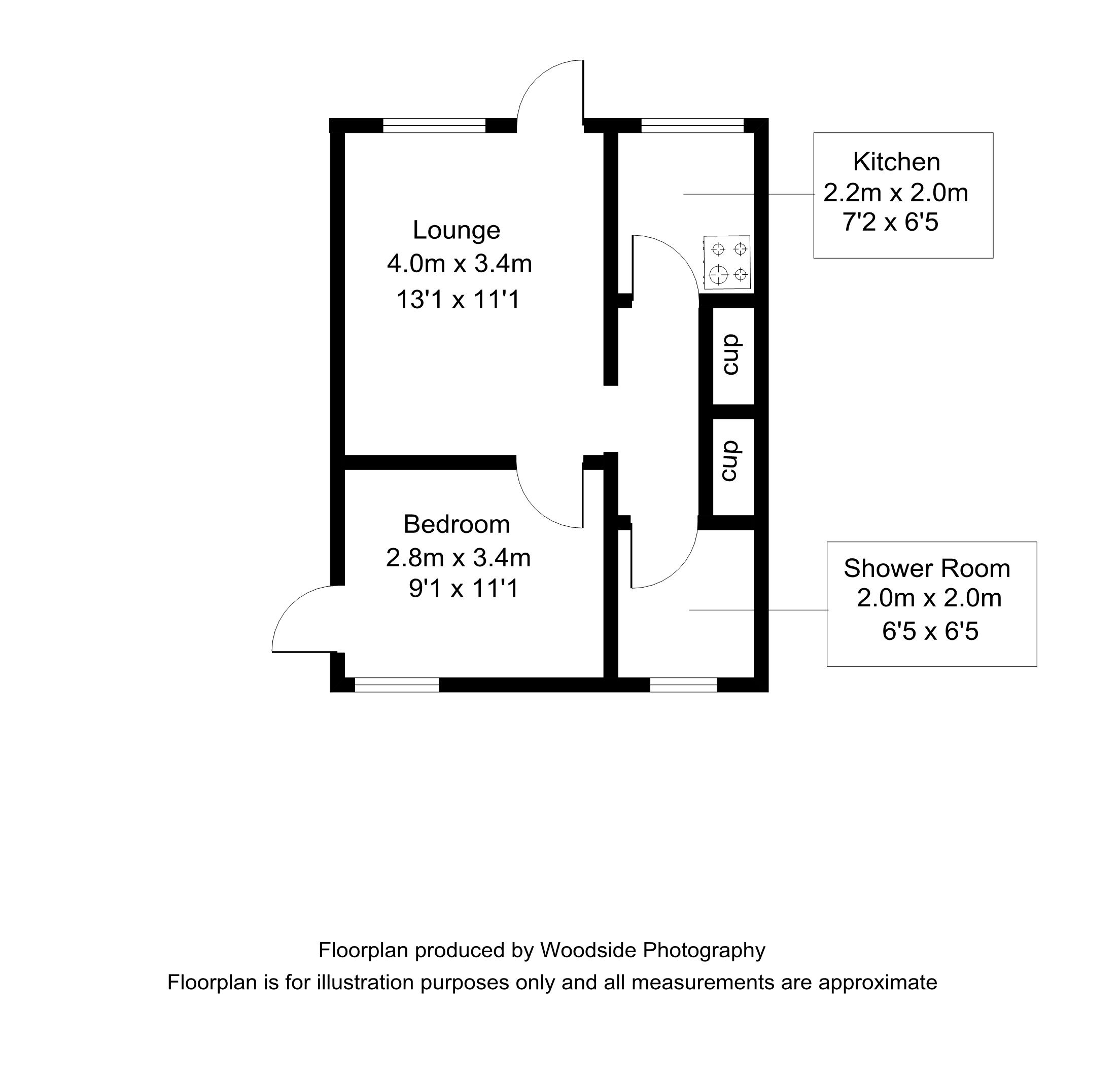
This ground floor one bedroom apartment is ideally located close to Luton town centre only 0.8 miles from Luton Railway Station. The accommodation comprises sitting room, inner hall, kitchen, bedroom and shower room.

Service Charge:
£150 paid quarterly.

Ground Rent:
£200 per annum.

Accommodation

Sitting room, inner hall, kitchen, bedroom and shower room.

Exterior

The property benefits from communal gardens.

Tenure

Leasehold. The property is held on a 125 year lease from 16th March 2004 (110 years remaining).

Note

Solicitors:
Heckford Norton Solicitors
19 Leys Avenue, Lethcworth Garden City SG6 3EB
Ref: Mr. Adam Perrin - ap@heckfordnorton.co.uk
Tel: 01462 682244

Lot Type

Residential Investments

EPC Rating

C

Important Notice to Prospective Buyers

We draw your attention to the Special Conditions of Sale within the Legal Pack, referring to other charges in addition to the purchase price which may become payable. Such costs may include Search Fees, reimbursement of Sellers costs and Legal Fees, and Transfer Fees amongst others.

Administration Charge

Administration Charge is a non-refundable £1,200 inc VAT payable on the fall of the virtual gavel.

Loading the bidding panel...

* Guide | £60,000
  • 1 Bedroom
  • Tenure: Leasehold. The property is held on a 125 year lease from 16th March 2004 (110 years remaining).
  • Unconditional (Immediate Exchange)

Call the team on 01908 030127 for more information

Related Documents

Disclaimer: The map preview provided above is for general guidance only and may not accurately reflect the exact location or surrounding buildings. Prospective buyers and interested parties are strongly advised to independently verify the precise location and surroundings before bidding.

Note

  1. MONEY LAUNDERING REGULATIONS: Intending purchasers will be asked to produce identification documentation at a later stage and we would ask for your co-operation in order that there will be no delay in agreeing the sale.
  2. General : While we endeavour to make our sales particulars fair, accurate and reliable, they are only a general guide to the property and, accordingly, if there is any point which is of particular importance to you, please contact the office and we will be pleased to check the position for you, especially if you are contemplating travelling some distance to view the property.
  3. Measurements: These approximate room sizes are only intended as general guidance. You must verify the dimensions carefully before ordering carpets or any built-in furniture.
  4. Services: Please note we have not tested the services or any of the equipment or appliances in this property, accordingly we strongly advise prospective buyers to commission their own survey or service reports before finalising their offer to purchase.
  5. THESE PARTICULARS ARE ISSUED IN GOOD FAITH BUT DO NOT CONSTITUTE REPRESENTATIONS OF FACT OR FORM PART OF ANY OFFER OR CONTRACT. THE MATTERS REFERRED TO IN THESE PARTICULARS SHOULD BE INDEPENDENTLY VERIFIED BY PROSPECTIVE BUYERS OR TENANTS. NEITHER AUCTION HOUSE NOR ANY OF ITS EMPLOYEES OR AGENTS HAS ANY AUTHORITY TO MAKE OR GIVE ANY REPRESENTATION OR WARRANTY WHATEVER IN RELATION TO THIS PROPERTY.