Auction House / Lincolnshire

  • For Sale By Unconditional Online Auction
  • Guide Price* : £90,000 - £110,000
  • Auction Ended 14/02/2023
  • Lot 5

9 Hotspur Road, Gainsborough, Lincolnshire, DN21 2RX

FOR SALE BY UNCONDITIONAL ONLINE AUCTION! (IMMEDIATE EXCHANGE)
This property will be offered for sale by auction opening 13 February 2023 with a *guide price of £90,000 - £110,000 (plus fees).

Description

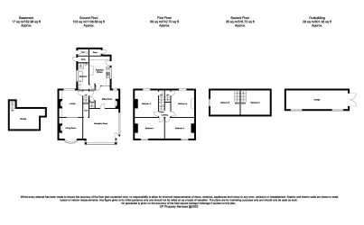
Accommodation Former shop space: 5.70m x 5.31m
With wooden glazed entrance door glazing to both the front and side elevation shop counter and a range of shelving, handbasin and doors giving access to:

Dining Room: 4.56m x 3.45m
UPVC double glazed window to the rear elevation, radiator, fireplace with gas fire and doors giving access to:

Cellar: 5.55m x 3.16m

Kitchen: 4.54m x 3.16m
UPVC double glazed window and entrance door to the side elevation, fitted kitchen comprising of base, drawer, larder and wall units with complimentary worksurfaces, tiled splashbacks, stainless steel inset sink and drainer with mixer tap, space for cooker, fridge freezer, dryer and provision for automatic washing machine. Wall mounted gas fired central heating boiler and door giving access to:

Bathroom: 4.15m x 1.66m with recess into doorway
UPVC double glazed window to the side elevation, five-piece bathroom suite comprising of WC, bidet, pedestal wash handbasin, tiled sided bath and single corner shower cubicle with electric shower, part tiled walls and radiator. Door from dining room gives access to:

Lounge: 4.13m x 3.74m
UPVC double glazed window to the rear elevation radiator and stone-built fireplace with multifuel burner. Double sliding doors give access to:

Snug: 3.62m x 3.27m
UPVC double glazed window to the front elevation and stone-built fireplace with gas fire.

First floor landing doors giving access to:

Bedroom: 4.53m x 3.28m
UPVC double glazed window to the front elevation and radiator

Bedroom: 4.61m x 3.30m
UPVC double glazed window to the front elevation and radiator

Bedroom:4.09m x 3.71m
UPVC double glazed window to the rear elevation and radiator door giving access to
staircase leading to:

Attic bedroom: 4.60m x 3.78m
UPVC double glazed window to the side elevation and eaves access

Bedroom (accessed from landing): 4.12m x 3.65m
UPVC double glazed window to the rear elevation radiator and linen cupboard. Door giving access to staircase rising to:

Attic Bedroom: 4.55m x 3.62m
UPVC double glazed window to the side elevation and eaves access

Externally: To the front is a fenced low maintenance hardstanding area leading to the shop entrance, externally to the rear is walled and gated yard with workshop, two coal stores and outside WC.
Material Information Tenure:
The property is believed to be freehold. All prospective bidders should satisfy themselves of the tenure by inspecting the legal pack.

Council Tax:
We have been advised that the property falls within West Lindsey District Council – BAND A

Possession:
Vacant possession will be given upon completion.

Viewing:
Strictly by appointment with Auction House.

Services:
Prospective purchasers are advised to make their own enquiries of the relevant statutory authorities. NB: Services, Apparatus and Equipment have not been tested by Auction House and therefore cannot be verified as being in working order. The buyer is advised to obtain verification from their Solicitor/Surveyor.

These particulars are believed to be correct but their accuracy is not guaranteed and they do not form any part of any contract. Information relating to Rating and Town & Country Planning matters has been obtained by verbal enquiry only. Prospective purchasers are advised to make their own enquiries of the appropriate Authority. All measurements, areas and distances are approximate only. Potential purchasers are advised to check them.

Tenure: Freehold

EPC Rating: TBC

Tenure

Freehold

EPC Rating

E

Important Notice to Prospective Buyers

We draw your attention to the Special Conditions of Sale within the Legal Pack, referring to other charges in addition to the purchase price which may become payable. Such costs may include Search Fees, reimbursement of Sellers costs and Legal Fees, and Transfer Fees amongst others.

Buyers Premium

Non-refundable £1,200 inc VAT payable on the fall of the virtual gavel.

Administration Charge

Non-refundable £1,200 inc VAT payable on the fall of the virtual gavel.

Loading the bidding panel...

* Guide | £90,000 - £110,000
  • 6 Bedrooms
  • Tenure: Freehold
  • Unconditional (Immediate Exchange)

Call the team on 01427 616436 for more information

Related Documents

Disclaimer: The map preview provided above is for general guidance only and may not accurately reflect the exact location or surrounding buildings. Prospective buyers and interested parties are strongly advised to independently verify the precise location and surroundings before bidding.

Note

  1. MONEY LAUNDERING REGULATIONS: Intending purchasers will be asked to produce identification documentation at a later stage and we would ask for your co-operation in order that there will be no delay in agreeing the sale.
  2. General : While we endeavour to make our sales particulars fair, accurate and reliable, they are only a general guide to the property and, accordingly, if there is any point which is of particular importance to you, please contact the office and we will be pleased to check the position for you, especially if you are contemplating travelling some distance to view the property.
  3. Measurements: These approximate room sizes are only intended as general guidance. You must verify the dimensions carefully before ordering carpets or any built-in furniture.
  4. Services: Please note we have not tested the services or any of the equipment or appliances in this property, accordingly we strongly advise prospective buyers to commission their own survey or service reports before finalising their offer to purchase.
  5. THESE PARTICULARS ARE ISSUED IN GOOD FAITH BUT DO NOT CONSTITUTE REPRESENTATIONS OF FACT OR FORM PART OF ANY OFFER OR CONTRACT. THE MATTERS REFERRED TO IN THESE PARTICULARS SHOULD BE INDEPENDENTLY VERIFIED BY PROSPECTIVE BUYERS OR TENANTS. NEITHER AUCTION HOUSE NOR ANY OF ITS EMPLOYEES OR AGENTS HAS ANY AUTHORITY TO MAKE OR GIVE ANY REPRESENTATION OR WARRANTY WHATEVER IN RELATION TO THIS PROPERTY.