Auction House / West Yorkshire

  • For Sale By Unconditional Online Auction
  • Guide Price* : £60,000+
  • Auction Ended 15/11/2022
  • Lot 2

33 King Street, Heckmondwike, West Yorkshire, WF16 9LN

FOR SALE VIA ONLINE AUCTION ON TUESDAY 15TH NOVEMBER 2022

Description

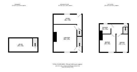
This two bedroom through terrace in Heckmondwike will appeal to those looking for a straight forward renovation project. Accommodation comprises a basement on the lower level, an entrance hallway, living room, and kitchen to the ground floor. On the first floor two bedrooms and a house bathroom. Externally the property provides on street parking.

The property is conveniently located close to local amenities, schools and transport links.

Please note: A 14 day completion applies to this lot and the buyer will be required to pay the exchange deposit from cleared funds.

Accommodation

Lower ground - Basement
Ground floor - Living room and kitchen
First floor - Two bedrooms and bathroom

Tenure

Freehold

Council Tax Band

A

Lot Type

Residential

Important Notice to Prospective Buyers

We draw your attention to the Special Conditions of Sale within the Legal Pack, referring to other charges in addition to the purchase price which may become payable. Such costs may include Search Fees, reimbursement of Sellers costs and Legal Fees, and Transfer Fees amongst others.

Buyers Premium

£900 inc VAT

Administration Charge

Administration Charge is a non-refundable £1,200 inc VAT payable on the fall of the virtual gavel.

Loading the bidding panel...

* Guide | £60,000+
  • 2 Bedrooms
  • Tenure: Freehold
  • Unconditional (Immediate Exchange)

Call the team on 0113 393 3482 for more information

Disclaimer: The map preview provided above is for general guidance only and may not accurately reflect the exact location or surrounding buildings. Prospective buyers and interested parties are strongly advised to independently verify the precise location and surroundings before bidding.

Note

  1. MONEY LAUNDERING REGULATIONS: Intending purchasers will be asked to produce identification documentation at a later stage and we would ask for your co-operation in order that there will be no delay in agreeing the sale.
  2. General : While we endeavour to make our sales particulars fair, accurate and reliable, they are only a general guide to the property and, accordingly, if there is any point which is of particular importance to you, please contact the office and we will be pleased to check the position for you, especially if you are contemplating travelling some distance to view the property.
  3. Measurements: These approximate room sizes are only intended as general guidance. You must verify the dimensions carefully before ordering carpets or any built-in furniture.
  4. Services: Please note we have not tested the services or any of the equipment or appliances in this property, accordingly we strongly advise prospective buyers to commission their own survey or service reports before finalising their offer to purchase.
  5. THESE PARTICULARS ARE ISSUED IN GOOD FAITH BUT DO NOT CONSTITUTE REPRESENTATIONS OF FACT OR FORM PART OF ANY OFFER OR CONTRACT. THE MATTERS REFERRED TO IN THESE PARTICULARS SHOULD BE INDEPENDENTLY VERIFIED BY PROSPECTIVE BUYERS OR TENANTS. NEITHER AUCTION HOUSE NOR ANY OF ITS EMPLOYEES OR AGENTS HAS ANY AUTHORITY TO MAKE OR GIVE ANY REPRESENTATION OR WARRANTY WHATEVER IN RELATION TO THIS PROPERTY.