Auction House / West Yorkshire

  • For Sale By Unconditional Online Auction
  • Guide Price* : £130,000
  • Auction Ended 08/11/2022
  • Lot 26

2 Broadway, Kirkstall, Leeds, West Yorkshire, LS5 3PR

FOR SALE VIA NATIONAL ONLINE AUCTION. BIDDING OPENS ON MONDAY 7TH NOVEMBER AT 1PM AND CLOSES TUESDAY 8TH NOVEMBER FROM 1PM. REGISTER TO BID!

Description

This vacant end terrace property has been most recently been used as a ground floor residential studio with separate two bedroom maisonette across the first and second floors. It was previously a mixed use property with retail accommodation to the ground floor.
This is sure to appeal to both investors and developers looking to add some value and hopefully secure a strong return once the works are completed and the property is fully let.
The property is located on an established parade in Hawksworth which borders Kirkstall, Horsforth and West Park. Leeds city centre is less than 4 miles to the south east.
The current owners are unsure how long the ground floor has been used for residential purposes and do not know if a formal change of use was applied for.
The property will be sold as seen with all contents, fixtures and fittings included.

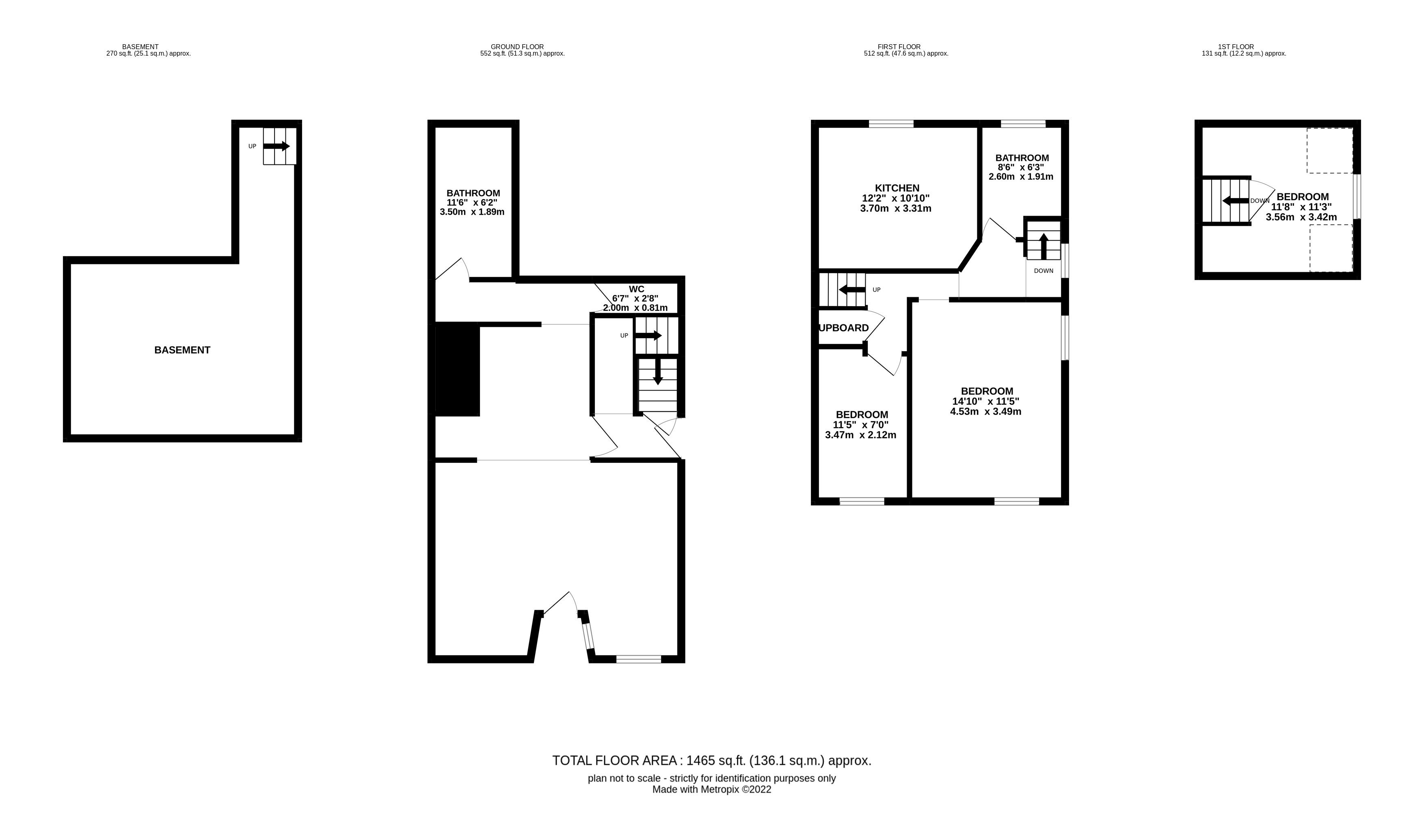
Accommodation

Lower ground floor - Basement
Ground floor - Two rooms, bathroom and WC
First floor - Kitchen, two bedrooms, bathroom and cupboard
Second floor - Bedroom
Externally garage - not inspected

Tenure

Freehold

Lot Type

Residential

Important Notice to Prospective Buyers

We draw your attention to the Special Conditions of Sale within the Legal Pack, referring to other charges in addition to the purchase price which may become payable. Such costs may include Search Fees, reimbursement of Sellers costs and Legal Fees, and Transfer Fees amongst others.

Administration Charge

Administration Charge is a non-refundable £1,200 inc VAT payable on the fall of the virtual gavel.

Loading the bidding panel...

* Guide | £130,000
  • Tenure: Freehold
  • Unconditional (Immediate Exchange)

Call the team on 0113 393 3482 for more information

Disclaimer: The map preview provided above is for general guidance only and may not accurately reflect the exact location or surrounding buildings. Prospective buyers and interested parties are strongly advised to independently verify the precise location and surroundings before bidding.

Note

  1. MONEY LAUNDERING REGULATIONS: Intending purchasers will be asked to produce identification documentation at a later stage and we would ask for your co-operation in order that there will be no delay in agreeing the sale.
  2. General : While we endeavour to make our sales particulars fair, accurate and reliable, they are only a general guide to the property and, accordingly, if there is any point which is of particular importance to you, please contact the office and we will be pleased to check the position for you, especially if you are contemplating travelling some distance to view the property.
  3. Measurements: These approximate room sizes are only intended as general guidance. You must verify the dimensions carefully before ordering carpets or any built-in furniture.
  4. Services: Please note we have not tested the services or any of the equipment or appliances in this property, accordingly we strongly advise prospective buyers to commission their own survey or service reports before finalising their offer to purchase.
  5. THESE PARTICULARS ARE ISSUED IN GOOD FAITH BUT DO NOT CONSTITUTE REPRESENTATIONS OF FACT OR FORM PART OF ANY OFFER OR CONTRACT. THE MATTERS REFERRED TO IN THESE PARTICULARS SHOULD BE INDEPENDENTLY VERIFIED BY PROSPECTIVE BUYERS OR TENANTS. NEITHER AUCTION HOUSE NOR ANY OF ITS EMPLOYEES OR AGENTS HAS ANY AUTHORITY TO MAKE OR GIVE ANY REPRESENTATION OR WARRANTY WHATEVER IN RELATION TO THIS PROPERTY.