Auction House / Lincolnshire

  • For Sale By Unconditional Online Auction
  • Guide Price* : £375,000 - £425,000
  • Auction Ended 25/10/2022
  • Lot 16

Elm Croft, Brigg Road, Scawby, Brigg, South Humberside, DN20 9AB

Description

Situation:
The property occupies a pleasant position on the Western outskirts of the highly regarded and sought after North Lincolnshire village of Scawby. Access to the surrounding towns of Brigg and Scunthorpe is convenient and the M180 road network, with access to Grimsby, Hull and the City of Doncaster, is also easily within reach.

Description:
An extremely rare opportunity to purchase a beautifully proportioned detached house, within surrounding grounds of approximately 2 acres. The site presents a wealth of potential to create a stunning residence within well proportioned grounds in this desirable village location, and the property must be viewed to be fully appreciated.

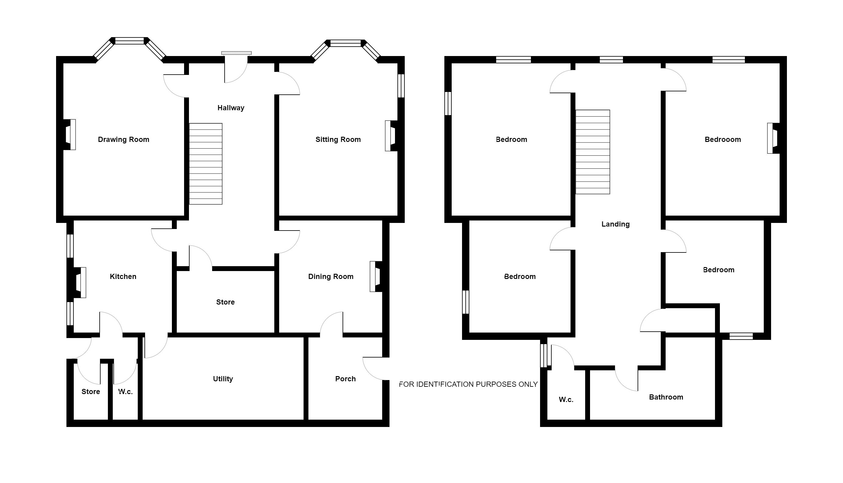
Accommodation: Front Entrance door into:
Entrance Hallway: Stairs rising to the first floor landing with under stairs storage cupboard, original quarry tiled flooring. Door to:
Sitting Room: 5.03m x 3.89m (16’6 x 12’9) Bay window to the front elevation, feature fireplace, picture rail, coved cornice to ceiling.
Drawing Room: 3.96m x 5.00m (13’0 x 16’5) Bay window to the front elevation, feature fireplace, window to the side elevation, picture rail, coved cornice.
Dining Room/Breakfast Room: 3.94m x 4.04m (12’11 x 13’3) Tiled flooring, window to the rear elevation and door to rear Entrance Porch. Feature fireplace.
Kitchen: 3.86m x 3.68m (12’8 x 12’8) Window to the side elevation, tiled flooring, range of fitted floor and eye level units, inset range cooker into chimney, space and provision for numerous appliances. Further doorway to:
Utility Room: With power and light, space for a range of appliances.
Rear Entrance Lobby: With further door to w.c., coal store. And door leading to the outside of the property.
First Floor Landing: Window to the front elevation, radiator, access to roof space and doors to:
Bedroom: 3.91m x 4.24m (12’10 x 13’11) Windows to the front and side elevation, picture rail.
Bedroom: 4.27m x 3.89m (14’0 x 12’9) Window to the front and side elevation, picture rail.
Bedroom: 3.86m x 3.86m (12’8 x 12’9) Window to the side elevation, cornice to ceiling.
Bedroom: 3.66m x 3.94m (12’0 x 12’11) (measurements to front of wardrobes) Window to the side elevation, fireplace.
Storage cupboard
Bathroom with separate w.c.
Family Bathroom: Comprising pedestal wash hand basin, cast iron bath and windows to the rear and side elevations.
Externally: The property occupies a private and secluded self contained plot of approximately 2 acres in size. A path from the road leads to the rear of the property with further pathway circling to the front. The site previously had a detached double garage accessed by a gated driveway to the rear. The Garage is no longer in existence although a range of brick and pantiles outbuildings remain.

The plot is made up of large lawned garden area bordered by a wide range of mature and well established trees and shrubs along with a further side and rear area of garden also interspersed with a range of mature shrubs and trees including a magnificent horse chestnut tree.
General Remarks Tenure
The property is believed to be freehold. All prospective bidders should satisfy themselves of the tenure by inspecting the legal pack.

Council Tax
We have been advised that the property falls within North Lincolnshire Council – BAND C

Possession
Vacant possession will be given upon completion.

Viewing
Strictly by appointment with Auction House.

Services
Prospective purchasers are advised to make their own enquiries of the relevant statutory authorities. NB: Services, Apparatus and Equipment have not been tested by Auction House and therefore cannot be verified as being in working order. The buyer is advised to obtain verification from their Solicitor/Surveyor.

These particulars are believed to be correct but their accuracy is not guaranteed and they do not form any part of any contract. Information relating to Rating and Town & Country Planning matters has been obtained by verbal enquiry only. Prospective purchasers are advised to make their own enquiries of the appropriate Authority. All measurements, areas and distances are approximate only. Potential purchasers are advised to check them.

Tenure: Freehold

EPC Rating: G

EPC Rating

G

Important Notice to Prospective Buyers

We draw your attention to the Special Conditions of Sale within the Legal Pack, referring to other charges in addition to the purchase price which may become payable. Such costs may include Search Fees, reimbursement of Sellers costs and Legal Fees, and Transfer Fees amongst others.

Buyers Premium

Buyers Premium is a non-refundable payment of 1.2% inc VAT of the final sale price payable on the fall of the virtual gavel.

Administration Charge

Administration Charge is a non-refundable £1,800 inc VAT payable on the fall of the virtual gavel

Loading the bidding panel...

* Guide | £375,000 - £425,000
  • 4 Bedrooms
  • Unconditional (Immediate Exchange)

Call the team on 01427 616436 for more information

Disclaimer: The map preview provided above is for general guidance only and may not accurately reflect the exact location or surrounding buildings. Prospective buyers and interested parties are strongly advised to independently verify the precise location and surroundings before bidding.

Note

  1. MONEY LAUNDERING REGULATIONS: Intending purchasers will be asked to produce identification documentation at a later stage and we would ask for your co-operation in order that there will be no delay in agreeing the sale.
  2. General : While we endeavour to make our sales particulars fair, accurate and reliable, they are only a general guide to the property and, accordingly, if there is any point which is of particular importance to you, please contact the office and we will be pleased to check the position for you, especially if you are contemplating travelling some distance to view the property.
  3. Measurements: These approximate room sizes are only intended as general guidance. You must verify the dimensions carefully before ordering carpets or any built-in furniture.
  4. Services: Please note we have not tested the services or any of the equipment or appliances in this property, accordingly we strongly advise prospective buyers to commission their own survey or service reports before finalising their offer to purchase.
  5. THESE PARTICULARS ARE ISSUED IN GOOD FAITH BUT DO NOT CONSTITUTE REPRESENTATIONS OF FACT OR FORM PART OF ANY OFFER OR CONTRACT. THE MATTERS REFERRED TO IN THESE PARTICULARS SHOULD BE INDEPENDENTLY VERIFIED BY PROSPECTIVE BUYERS OR TENANTS. NEITHER AUCTION HOUSE NOR ANY OF ITS EMPLOYEES OR AGENTS HAS ANY AUTHORITY TO MAKE OR GIVE ANY REPRESENTATION OR WARRANTY WHATEVER IN RELATION TO THIS PROPERTY.