Auction House / South Yorkshire

  • For Sale By Unconditional Online Auction
  • Guide Price* : £16,000
  • Auction Ended 12/07/2022
  • Lot 25

27 Co-Operative Street Goldthorpe, Rotherham, South Yorkshire, S63 9HN

FOR SALE VIA NATIONAL ONLINE AUCTION. BIDDING OPENS ON MONDAY 11TH JULY AT 1PM AND CLOSES TUESDAY 12TH JULY FROM 1PM. REGISTER TO BID!

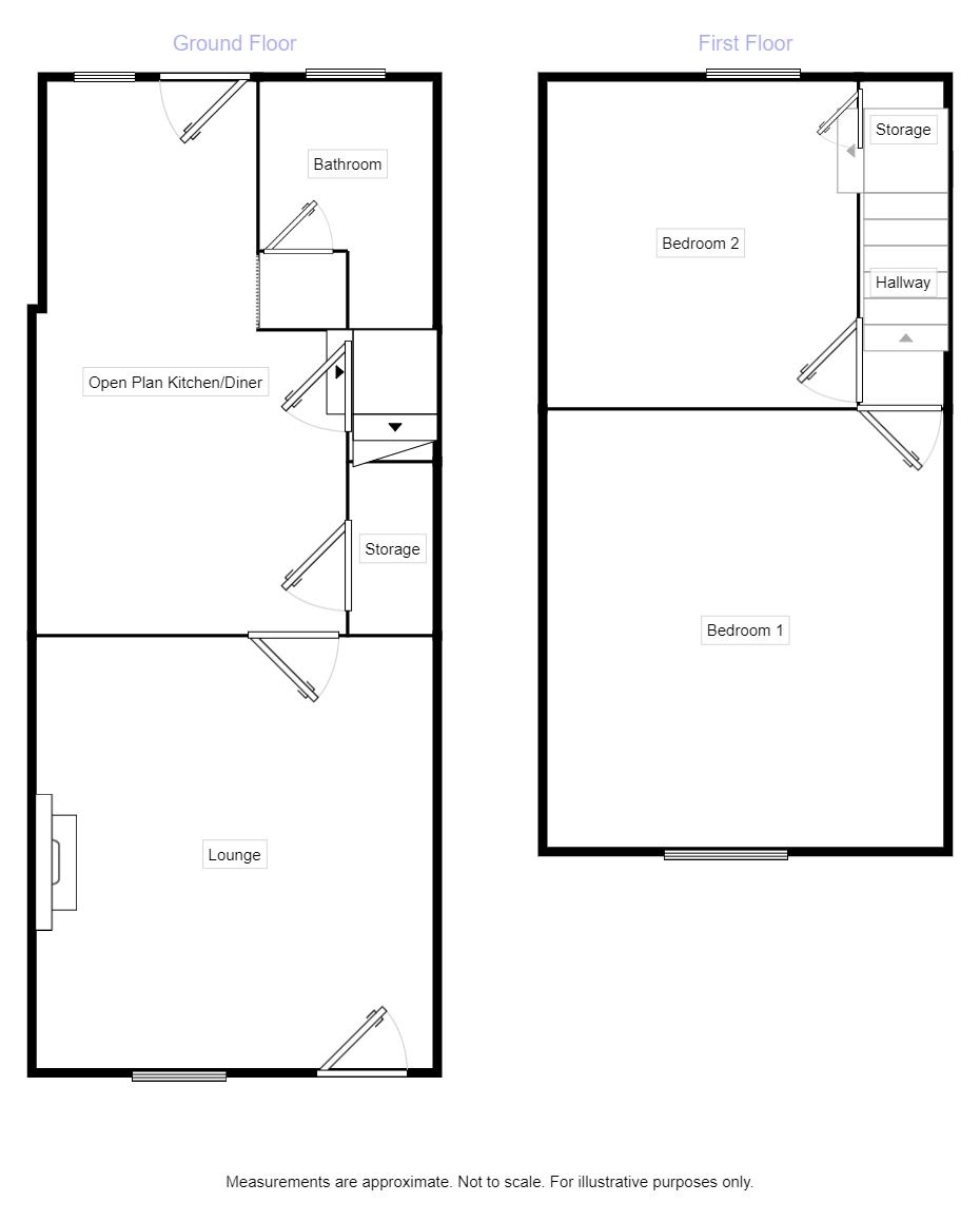
Description

An extended and larger than usual two double bedroom terrace house for improvement, which has been let until recently and is in a strong rental location and has windows, gas central heating system and which is ready for updating internally. The property lies only a short walk to the High Street with lots of shops and services nearby, lots of employment areas, and excellent links to the A1M AND M1 motorways.

Lounge -A front-facing lounge with a window and entrance door, radiator, and fireplace.

Kitchen/Diner - A good size open-plan space with a rear-facing window and door to the garden, a range of modern kitchen units, and a radiator. a doorway gives access to the staircase and there is useful storage space beneath.

Bathroom -The bathroom has a modern white three-piece suite and there is a radiator and rear-facing window.

Bedroom 1 - A large front-facing double bedroom with a window and a radiator.

Bedroom 2 - A good size rear-facing double room with a window, radiator, and a useful built-in store that houses the gas-fired boiler.

Outside - The property is street lined to the front and to the rear is a private enclosed garden with rear access route beyond.

Market information The property is in an area that is improving and has properties let at £425-£500 per month and some neighboring two-bedroom properties recently under offer at around £60,000, therefore good scope exists for adding value and achieving a good rental return on investment.

OPEN HOUSE VIEWING DATE

THURSDAY 07TH AT 2:15PM UNTIL 2:45PM

Tenure: Freehold

EPC Rating: D

Important Notice to Prospective Buyers

We draw your attention to the Special Conditions of Sale within the Legal Pack, referring to other charges in addition to the purchase price which may become payable. Such costs may include Search Fees, reimbursement of Sellers costs and Legal Fees, and Transfer Fees amongst others.

Buyers Premium

£1200 inc VAT

Administration Charge

Administration Charge is a non-refundable £1,200 inc VAT payable on the fall of the virtual gavel.

Loading the bidding panel...

* Guide | £16,000
  • 2 Bedrooms
  • Unconditional (Immediate Exchange)

Call the team on 0114 223 0777 for more information

Disclaimer: The map preview provided above is for general guidance only and may not accurately reflect the exact location or surrounding buildings. Prospective buyers and interested parties are strongly advised to independently verify the precise location and surroundings before bidding.

Note

  1. MONEY LAUNDERING REGULATIONS: Intending purchasers will be asked to produce identification documentation at a later stage and we would ask for your co-operation in order that there will be no delay in agreeing the sale.
  2. General : While we endeavour to make our sales particulars fair, accurate and reliable, they are only a general guide to the property and, accordingly, if there is any point which is of particular importance to you, please contact the office and we will be pleased to check the position for you, especially if you are contemplating travelling some distance to view the property.
  3. Measurements: These approximate room sizes are only intended as general guidance. You must verify the dimensions carefully before ordering carpets or any built-in furniture.
  4. Services: Please note we have not tested the services or any of the equipment or appliances in this property, accordingly we strongly advise prospective buyers to commission their own survey or service reports before finalising their offer to purchase.
  5. THESE PARTICULARS ARE ISSUED IN GOOD FAITH BUT DO NOT CONSTITUTE REPRESENTATIONS OF FACT OR FORM PART OF ANY OFFER OR CONTRACT. THE MATTERS REFERRED TO IN THESE PARTICULARS SHOULD BE INDEPENDENTLY VERIFIED BY PROSPECTIVE BUYERS OR TENANTS. NEITHER AUCTION HOUSE NOR ANY OF ITS EMPLOYEES OR AGENTS HAS ANY AUTHORITY TO MAKE OR GIVE ANY REPRESENTATION OR WARRANTY WHATEVER IN RELATION TO THIS PROPERTY.