Auction House / Lincolnshire

  • For Sale By Unconditional Online Auction
  • Guide Price* : £50,000 - £60,000
  • Auction Ended 21/06/2022
  • Lot 1

1 Birrell Street, Gainsborough, Lincolnshire, DN21 2PF

FOR SALE BY UNCONDITIONAL ONLINE AUCTION! (IMMEDIATE EXCHANGE)
This property will be offered for sale by auction closing on 21st June 2022 with a *guide price of £50,000 - £60,000 (plus fees). To register to bid: auctionhouse.co.uk/lincolnshire


Description


Situation:
The property is situated on Birrell Street Gainsborough, a popular and central area of the traditionally Lincolnshire market town, well positioned for access to the town centre with its wealth of amenities and facilities including Marshalls Yard retail and leisure complex.

Description:
A traditionally constructed two bedroom end of terrace house offered for sale in reasonable order throughout, however would benefit from some improvement works throughout. An ideal opportunity for both investors and owner occupiers alike.


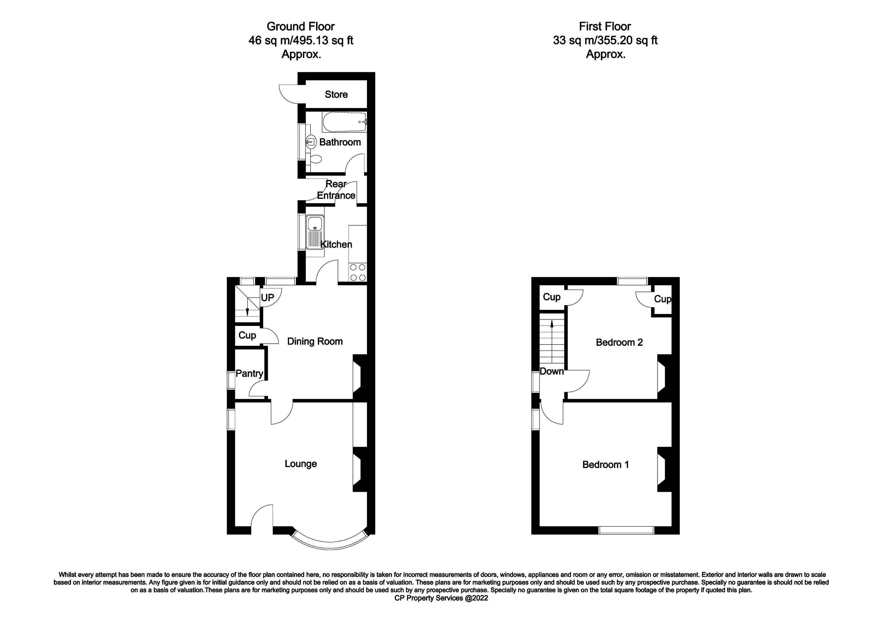
Accommodation

uPVC front entrance door into

Sitting Room: 4.22m x 3.96m (13’10 x 13’0)
uPVC double glazed windows to the front and side elevations, central heating radiator, tiled fire place with hearth, mantle and surround, fitted cupboards. Door to:

Dining Room: 3.63m x 3.33m (11’11 x 10’11) maximum
With uPVC double glazed window to the rear elevation, radiator, fireplace with tiled surround, hearth and mantle. Stairs rising to first floor. Door to:

Pantry: uPVC double glazed window to the side elevation and storage space

Kitchen: 2.36m x 1.93m (7’9 x 6’4)
uPVC double glazed window to the side elevation, radiator, range of floor and wall units, complementary rolled edge work surfaces housing sink and drainer unit, tiled splash, space for cooker, space and plumbing for automatic washing machine.

Further door to rear Entrance lobby:
With tiled floor and uPVC double glazed door to the side of the property.

Bathroom: uPVC double glazed opaque glass window to the side elevation, tiled floor, radiator. Suite comprising low level flush w.c., pedestal wash hand basin and panelled bath with electric shower fitment over.

Stairs rising to the first floor landing: uPVC double glazed window to the side elevation.

Bedroom One: 4.19m x 3.91m (13’9 x 12’10) maximum
uPVC double glazed windows to the front and side elevation, radiator, original cast iron fire place.

Bedroom Two: 3.63m x 3.35m (11’11 x 11’0) maximum
uPVC double glazed window to the rear elevation, radiator, cast iron fireplace ,airing cupboard housing the Worcester Bosche gas combination boiler and walk in wardrobe.

Externally:
To the front of the property is enclosed garden area with mature planted rose bed and to the rear of the property is an enclosed garden area with mature and well planted borders, lawned garden area, outside storage shed and detached sectional concrete garage.


General Remarks

Tenure:
The property is believed to be freehold. All prospective bidders should satisfy themselves of the tenure by inspecting the legal pack.

Possession:
Vacant possession will be given upon completion.

Council Tax
West Lindsey District Council - Band A

Viewing:
Strictly by appointment with Auction House.

Services:
Prospective purchasers are advised to make their own enquiries of the relevant statutory authorities. NB: Services, Apparatus and Equipment have not been tested by Auction House and therefore cannot be verified as being in working order. The buyer is advised to obtain verification from their Solicitor/Surveyor.

These particulars are believed to be correct but their accuracy is not guaranteed and they do not form any part of any contract. Information relating to Rating and Town & Country Planning matters has been obtained by verbal enquiry only. Prospective purchasers are advised to make their own enquiries of the appropriate Authority. All measurements, areas and distances are approximate only. Potential purchasers are advised to check them.

Additional Fees
Buyer's Premium: £1,200.00
Administration Charge: £1,200.00
Disbursements: Please see the legal pack for any disbursements listed that may become payable by the purchaser on completion

Council Tax Band

A

Lot Type

Residential for Improvement

EPC Rating

E

Important Notice to Prospective Buyers

We draw your attention to the Special Conditions of Sale within the Legal Pack, referring to other charges in addition to the purchase price which may become payable. Such costs may include Search Fees, reimbursement of Sellers costs and Legal Fees, and Transfer Fees amongst others.

Administration Charge

Administration Charge is a non-refundable £1,200 inc VAT payable on the fall of the virtual gavel.

Loading the bidding panel...

* Guide | £50,000 - £60,000
  • 2 Bedrooms
  • Unconditional (Immediate Exchange)

Call the team on 01427 616436 for more information

Related Documents

Disclaimer: The map preview provided above is for general guidance only and may not accurately reflect the exact location or surrounding buildings. Prospective buyers and interested parties are strongly advised to independently verify the precise location and surroundings before bidding.

Note

  1. MONEY LAUNDERING REGULATIONS: Intending purchasers will be asked to produce identification documentation at a later stage and we would ask for your co-operation in order that there will be no delay in agreeing the sale.
  2. General : While we endeavour to make our sales particulars fair, accurate and reliable, they are only a general guide to the property and, accordingly, if there is any point which is of particular importance to you, please contact the office and we will be pleased to check the position for you, especially if you are contemplating travelling some distance to view the property.
  3. Measurements: These approximate room sizes are only intended as general guidance. You must verify the dimensions carefully before ordering carpets or any built-in furniture.
  4. Services: Please note we have not tested the services or any of the equipment or appliances in this property, accordingly we strongly advise prospective buyers to commission their own survey or service reports before finalising their offer to purchase.
  5. THESE PARTICULARS ARE ISSUED IN GOOD FAITH BUT DO NOT CONSTITUTE REPRESENTATIONS OF FACT OR FORM PART OF ANY OFFER OR CONTRACT. THE MATTERS REFERRED TO IN THESE PARTICULARS SHOULD BE INDEPENDENTLY VERIFIED BY PROSPECTIVE BUYERS OR TENANTS. NEITHER AUCTION HOUSE NOR ANY OF ITS EMPLOYEES OR AGENTS HAS ANY AUTHORITY TO MAKE OR GIVE ANY REPRESENTATION OR WARRANTY WHATEVER IN RELATION TO THIS PROPERTY.