Auction House / Bristol

  • For Sale By Conditional Online Auction
  • Guide Price* : £235,000
  • Auction Ended 20/10/2020
  • Lot 4

64 Five Stiles Road, Marlborough, Wiltshire, SN8 4BE

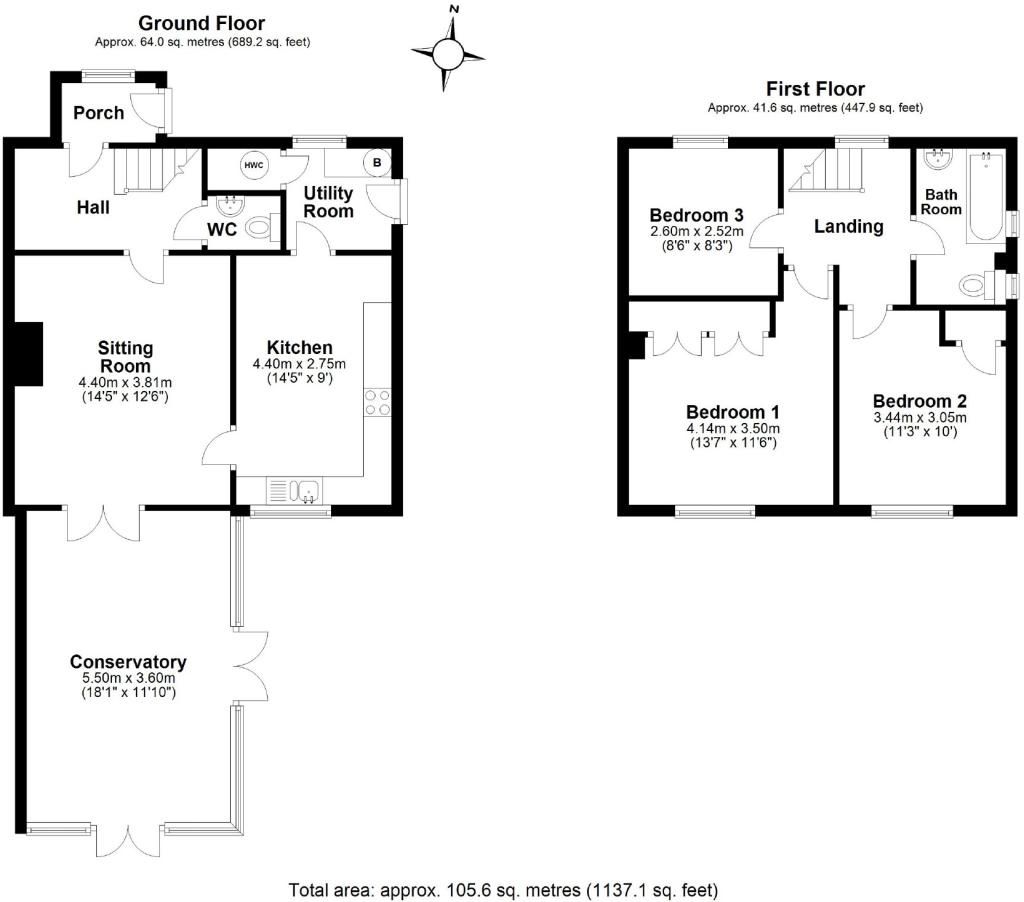
A 3 bedroom semi-detached property in the market town of Marlborough. The property consists of a driveway for 2 cars, porch, downstairs WC, kitchen, utility room, dining room, conservatory with under floor heating, 3 bedrooms, bathroom and large landscaped garden with shed including electric.


Description

A 3 bedroom semi-detached property in the market town of Marlborough. The property consists of a driveway for 2 cars, porch, downstairs WC, kitchen, utility room, dining room, conservatory with under floor heating, 3 bedrooms, bathroom and large landscaped garden with shed including electric.

A 3 bedroom semi-detached property in the market town of Marlborough

Located in a suburban setting within a few minutes of the Town Centre and it's numerous amenities. The property consists of a driveway for 2 cars whilst inside there is a porch, downstairs toilet, kitchen, utility room, dining room and large conservatory used as a living room with under floor heating and Air conditioning - suitable for all year round use. Upstairs there are Three bedrooms (Two Doubles) and a bathroom. The loft above provides scope for a Fourth Bedroom subject to planning consent. The rear garden backs onto Woodland and includes a large shed with electric. The property is of non-traditional construction and prospective buyers are advised to make their own finance/mortgage inquiries.


FOR SALE BY CONDITIONAL ONLINE AUCTION (56 day completion)

The property is being sold by Conditional Auction not to be confused with Traditional Auction. The successful buyer will be required to pay a non-refundable reservation fee of 2.4% inc vat (min of £4,800 inc vat) to secure the property. The reservation fee is in addition to the purchase price and as such prospective bidders are advised to take this into account before the auction.
The reservation fee gives the successful buyer exclusive rights to exchange contracts within 28 days. Upon exchange the buyer has a further 28 days to complete providing a total of 56 days.


Tenure

Freehold


Key Points

• Semi Detached Home of non-standard construction
• Kitchen, Dining Room, Large Conservatory and downstairs W.C.
• 3 bedrooms and family bathroom
• Landscaped rear garden with shed and electric mains
• Off Road Parking
• In need of general updating
• Conveniently positioned for Town Centre amenities


Viewings

Strictly by appointment only, please call 01179 464949 to register your interest. PPE including masks and gloves must be worn at all times as the property is occupied.


For sale by Conditional Auction

Please note the auctioneers have made their best endeavours to disclose all additional fees. Interested parties should refer to the special conditions of sale contained in the Legal Pack for any late amendments or additions to these fees.


Legal Pack

A full auction legal pack can be downloaded from the Auction House Bristol website once available.


Energy Efficiency Rating (EPC)

Current Rating D


Solicitors

WRJ Solicitors Ltd (Pauline Wilbond) Tel: 0121 7280242

Partner Agents

Additional Fees
Administration Charge: £1,200.00
Disbursements: Please see the legal pack for any disbursements listed that may become payable by the purchaser on completion

Important Notice to Prospective Buyers

We draw your attention to the Special Conditions of Sale within the Legal Pack, referring to other charges in addition to the purchase price which may become payable. Such costs may include Search Fees, reimbursement of Sellers costs and Legal Fees, and Transfer Fees amongst others.

Administration Charge

Administration Charge is a non-refundable £1,200 inc VAT payable on the fall of the virtual gavel.

Loading the bidding panel...

* Guide | £235,000
  • Semi-Detached House
  • 3 Bedrooms
  • Conditional (Flexible Exchange)

Call the team on 0117 946 4949 for more information

Related Documents

Disclaimer: The map preview provided above is for general guidance only and may not accurately reflect the exact location or surrounding buildings. Prospective buyers and interested parties are strongly advised to independently verify the precise location and surroundings before bidding.

Note

  1. MONEY LAUNDERING REGULATIONS: Intending purchasers will be asked to produce identification documentation at a later stage and we would ask for your co-operation in order that there will be no delay in agreeing the sale.
  2. General : While we endeavour to make our sales particulars fair, accurate and reliable, they are only a general guide to the property and, accordingly, if there is any point which is of particular importance to you, please contact the office and we will be pleased to check the position for you, especially if you are contemplating travelling some distance to view the property.
  3. Measurements: These approximate room sizes are only intended as general guidance. You must verify the dimensions carefully before ordering carpets or any built-in furniture.
  4. Services: Please note we have not tested the services or any of the equipment or appliances in this property, accordingly we strongly advise prospective buyers to commission their own survey or service reports before finalising their offer to purchase.
  5. THESE PARTICULARS ARE ISSUED IN GOOD FAITH BUT DO NOT CONSTITUTE REPRESENTATIONS OF FACT OR FORM PART OF ANY OFFER OR CONTRACT. THE MATTERS REFERRED TO IN THESE PARTICULARS SHOULD BE INDEPENDENTLY VERIFIED BY PROSPECTIVE BUYERS OR TENANTS. NEITHER AUCTION HOUSE NOR ANY OF ITS EMPLOYEES OR AGENTS HAS ANY AUTHORITY TO MAKE OR GIVE ANY REPRESENTATION OR WARRANTY WHATEVER IN RELATION TO THIS PROPERTY.