Auction House / Lincolnshire

  • For Sale By Unconditional Online Auction
  • Guide Price* : £5,000
  • Bidding Opens 18/05/2026 13:00

152 Durban Road, Grimsby, South Humberside, DN32 8AY

*ONLINE Unconditional Auction Opening 18 May 2026*
To register for the legal pack and bidding, please visit our website: auctionhouse.co.uk/lincolnshire

Description

Situation:
The property is situated on Durban Road, Grimsby a popular and central area of this north east Lincolnshire market and port town. The town centre is within close proximity offering a wide range of facilities and amenities both retail and leisure and Grimsby itself is well positioned for access to the M180 road network.

Description:
A wonderful opportunity to acquire this ground floor flat benefiting from uPVC double glazing, central heating and versatile accommodation throughout. Ideal for investors, the property is currently occupied by a tenant. A Section 13 Notice was served on 11/02/2026 to increase the rent to £575pcm (£6600 per annum) from 04/05/2026.

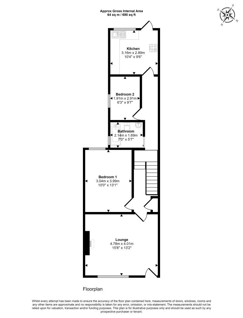
Accommodation
Accommodation believed to comprise:

Ground Floor
Lounge
Kitchen
Bathroom
Bedroom 1
Bedroom 2
Agent Note
We do not currently have access for internal inspection therefore, the accommodation information provided may not be accurate.
Material Information
Please copy and paste the link below into your browser for a full breakdown of material information for this property
mip.urls.addland.com/nF7LXrFYL65sa8p5cZFPzr

Tenure:
The property is leasehold. All prospective bidders should satisfy themselves of terms of the tenure, ground rent and service charge if applicable, by inspecting the legal pack.

Council Tax:
The property falls within North East Lincolnshire Council – BAND A

Possession:
Subject to existing tenancy agreement.

Viewing:
No internal inspections will be possible.

Services:
Prospective purchasers are advised to make their own enquiries of the relevant statutory authorities. NB: Services, Apparatus and Equipment have not been tested by Auction House and therefore cannot be verified as being in working order. The buyer is advised to obtain verification from their Solicitor/Surveyor.

These particulars are believed to be correct but their accuracy is not guaranteed and they do not form any part of any contract. Information relating to Rating and Town and Country Planning matters has been obtained by verbal enquiry only. Prospective purchasers are advised to make their own enquiries of the appropriate Authority. Information relating to Phone & Broadband can be found by visiting Ofcom. All measurements, areas and distances are approximate only. Potential purchasers are advised to check them. Any potential rental incomes are approximate based on Rightmove data at the time of preparing the details and bidders are advised to check with a local agent for an accurate valuation.

Lease Start Date

14/03/1986

Lease Duration

99 years (58 years unexpired)

EPC Rating

C

Important Notice to Prospective Buyers

We draw your attention to the Special Conditions of Sale within the Legal Pack, referring to other charges in addition to the purchase price which may become payable. Such costs may include Search Fees, reimbursement of Sellers costs and Legal Fees, and Transfer Fees amongst others.

Administration Charge

Non-refundable £3,600 inc VAT payable on the fall of the virtual gavel.

Disbursements

Please see the legal pack for any disbursements listed that may become payable by the purchaser on completion.

Loading the bidding panel...

Make An Enquiry

Submit an enquiry for this lot and someone will be in contact shortly.

 
 
 
* Guide | £5,000
  • 2 Bedrooms
  • Unconditional (Immediate Exchange)

Call the team on 01427 616436 for more information

Disclaimer: The map preview provided above is for general guidance only and may not accurately reflect the exact location or surrounding buildings. Prospective buyers and interested parties are strongly advised to independently verify the precise location and surroundings before bidding.

Note

  1. MONEY LAUNDERING REGULATIONS: Intending purchasers will be asked to produce identification documentation at a later stage and we would ask for your co-operation in order that there will be no delay in agreeing the sale.
  2. General : While we endeavour to make our sales particulars fair, accurate and reliable, they are only a general guide to the property and, accordingly, if there is any point which is of particular importance to you, please contact the office and we will be pleased to check the position for you, especially if you are contemplating travelling some distance to view the property.
  3. Measurements: These approximate room sizes are only intended as general guidance. You must verify the dimensions carefully before ordering carpets or any built-in furniture.
  4. Services: Please note we have not tested the services or any of the equipment or appliances in this property, accordingly we strongly advise prospective buyers to commission their own survey or service reports before finalising their offer to purchase.
  5. THESE PARTICULARS ARE ISSUED IN GOOD FAITH BUT DO NOT CONSTITUTE REPRESENTATIONS OF FACT OR FORM PART OF ANY OFFER OR CONTRACT. THE MATTERS REFERRED TO IN THESE PARTICULARS SHOULD BE INDEPENDENTLY VERIFIED BY PROSPECTIVE BUYERS OR TENANTS. NEITHER AUCTION HOUSE NOR ANY OF ITS EMPLOYEES OR AGENTS HAS ANY AUTHORITY TO MAKE OR GIVE ANY REPRESENTATION OR WARRANTY WHATEVER IN RELATION TO THIS PROPERTY.