Auction House / Lincolnshire

  • For Sale By Unconditional Online Auction
  • Guide Price* : £100,000 - £120,000
  • Auction Ended 12/05/2026
  • Lot 37

Muskham Hall Old Great North Road, North Muskham, Nottinghamshire, NG23 6ET

*** Addendum ***

The seller is selling as mortgagee. It has previously obtained and executed a possession order but the Property has been unlawfully re-entered. A further eviction took place where the Property was successfully taken into possession. However, it is now understood that the proprietor of the property has again unlawfully re-entered the Property. The Property is sold without any warranty for vacant possession and the buyer shall not be entitled to delay completion or reduce the purchase price in the event that it is re-occupied prior to completion.

*ONLINE Unconditional Auction Opening 11 May 2026*
To register for the legal pack and bidding, please visit our website: auctionhouse.co.uk/lincolnshire

Description

Situation:
The property is situate on Waltons Lane, North Muskham, a pleasant and secluded position within this sought after North Nottinghamshire village. Access to the surrounding towns, including the historic Newark and its direct rail link to London Kings Cross, is convenient, along with access to the A1 road network.

Description:
Constructed in the late 18th century, the Grade II Listed, Muskham Hall occupies a well-proportioned plot on Waltons Lane, bordering the A1.

This Georgian property demonstrates predominantly British Gothic architecture with strong Scottish and French influences evident throughout. It offers potential purchasers the fabulous opportunity to own a piece of history, and through substantial renovation, restore the property to its former glory whilst creating a wonderful home suitable to their taste.

Subject to the necessary planning & listed building consents, the Hall not only offers the potential as a residential dwelling, but could also be turned to alternate uses such as a boutique hotel, wedding venue or other commercial premises.

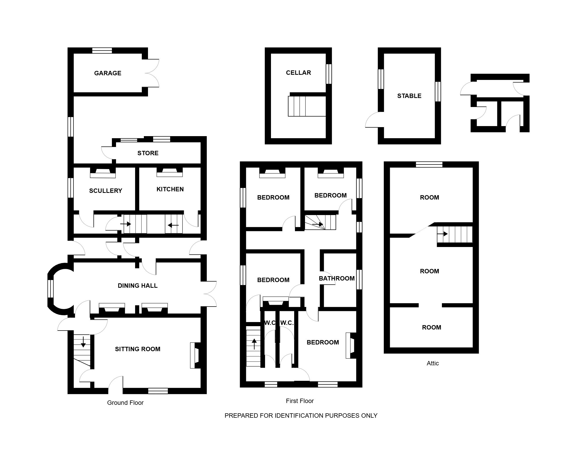
Accommodation
Ground Floor
Sitting Room
Dining Hall
Kitchen
Skullery
Store

Lower Ground Floor
Cellar

First Floor
Bedroom 1
WC
Bedroom 2
Bedroom 3
Bedroom 4
WC
Family Bathroom

Second Floor
Room
Room
Room

Outside
Pleasant and well proportioned grounds, with a range of outbuildings.

What3Words ///united.vintages.bravest

Material Information
Tenure:
The property is freehold. All prospective bidders should satisfy themselves of terms of the tenure, ground rent and service charge if applicable, by inspecting the legal pack.

The property falls within Newark and sherwood Council the banding has been deleted from their website therefor all prospective bidders must make their own enquires

Possession:
Being sold with Mortgagee not in possession
Viewing:
Strictly by appointment with Auction House.

Services:
Prospective purchasers are advised to make their own enquiries of the relevant statutory authorities. NB: Services, Apparatus and Equipment have not been tested by Auction House and therefore cannot be verified as being in working order. The buyer is advised to obtain verification from their Solicitor/Surveyor.

These particulars are believed to be correct but their accuracy is not guaranteed and they do not form any part of any contract. Information relating to Rating and Town and Country Planning matters has been obtained by verbal enquiry only. Prospective purchasers are advised to make their own enquiries of the appropriate Authority. Information relating to Phone & Broadband can be found by visiting Ofcom. All measurements, areas and distances are approximate only. Potential purchasers are advised to check them.

EPC Rating

G

Important Notice to Prospective Buyers

We draw your attention to the Special Conditions of Sale within the Legal Pack, referring to other charges in addition to the purchase price which may become payable. Such costs may include Search Fees, reimbursement of Sellers costs and Legal Fees, and Transfer Fees amongst others.

Buyers Premium

Non-refundable £1,560 inc VAT payable on the fall of the virtual gavel.

Administration Charge

Non-refundable 2.4% inc VAT payable on the fall of the virtual gavel.

Disbursements

Please see the legal pack for any disbursements listed that may become payable by the purchaser on completion.

Loading the bidding panel...

* Guide | £100,000 - £120,000
  • 4 Bedrooms
  • Unconditional (Immediate Exchange)

Call the team on 01427 616436 for more information

Disclaimer: The map preview provided above is for general guidance only and may not accurately reflect the exact location or surrounding buildings. Prospective buyers and interested parties are strongly advised to independently verify the precise location and surroundings before bidding.

Note

  1. MONEY LAUNDERING REGULATIONS: Intending purchasers will be asked to produce identification documentation at a later stage and we would ask for your co-operation in order that there will be no delay in agreeing the sale.
  2. General : While we endeavour to make our sales particulars fair, accurate and reliable, they are only a general guide to the property and, accordingly, if there is any point which is of particular importance to you, please contact the office and we will be pleased to check the position for you, especially if you are contemplating travelling some distance to view the property.
  3. Measurements: These approximate room sizes are only intended as general guidance. You must verify the dimensions carefully before ordering carpets or any built-in furniture.
  4. Services: Please note we have not tested the services or any of the equipment or appliances in this property, accordingly we strongly advise prospective buyers to commission their own survey or service reports before finalising their offer to purchase.
  5. THESE PARTICULARS ARE ISSUED IN GOOD FAITH BUT DO NOT CONSTITUTE REPRESENTATIONS OF FACT OR FORM PART OF ANY OFFER OR CONTRACT. THE MATTERS REFERRED TO IN THESE PARTICULARS SHOULD BE INDEPENDENTLY VERIFIED BY PROSPECTIVE BUYERS OR TENANTS. NEITHER AUCTION HOUSE NOR ANY OF ITS EMPLOYEES OR AGENTS HAS ANY AUTHORITY TO MAKE OR GIVE ANY REPRESENTATION OR WARRANTY WHATEVER IN RELATION TO THIS PROPERTY.

Price Information

*Guides are provided as an indication of each seller's minimum expectation. They are not necessarily figures which a property will sell for and may change at any time prior to the auction. Each property will be offered subject to a Reserve (a figure below which the Auctioneer cannot sell the property during the auction) which we expect will be set within the Guide Range or no more than 10% above a single figure Guide.

Additional Fees Information

*Please be aware there may be additional fees payable on top of the final sale price. These include and are not limited to administration charges and buyer's premium fees payable on exchange, and disbursements payable on completion. Please ensure you check the property information page for a list of any relevant additional fees as well as reading the legal pack for any disbursements.


Privacy Policy|Cookie Policy

© Auction House UK 2026

Auction House® and associated logos are registered
trademark of Auction House UK Ltd

Complaints procedure