Auction House / East Anglia

  • For Sale By Unconditional Online Auction
  • Guide Price* : £130,000 - £140,000
  • Bidding Opens 13/04/2026 13:00

Smokey Cottage Carlton Road, Saxmundham, Suffolk, IP17 2QE

FOR SALE BY ONLINE AUCTION TUESDAY 14TH APRIL 2026

TO REGISTER FOR LEGAL PACKS AND BIDDING INSTRUCTIONS PLEASE VISIT OUR WEBSITE

Description

FOR SALE BY ONLINE AUCTION TUESDAY 14TH APRIL 2026

TO REGISTER FOR LEGAL PACKS AND BIDDING INSTRUCTIONS PLEASE VISIT OUR WEBSITE

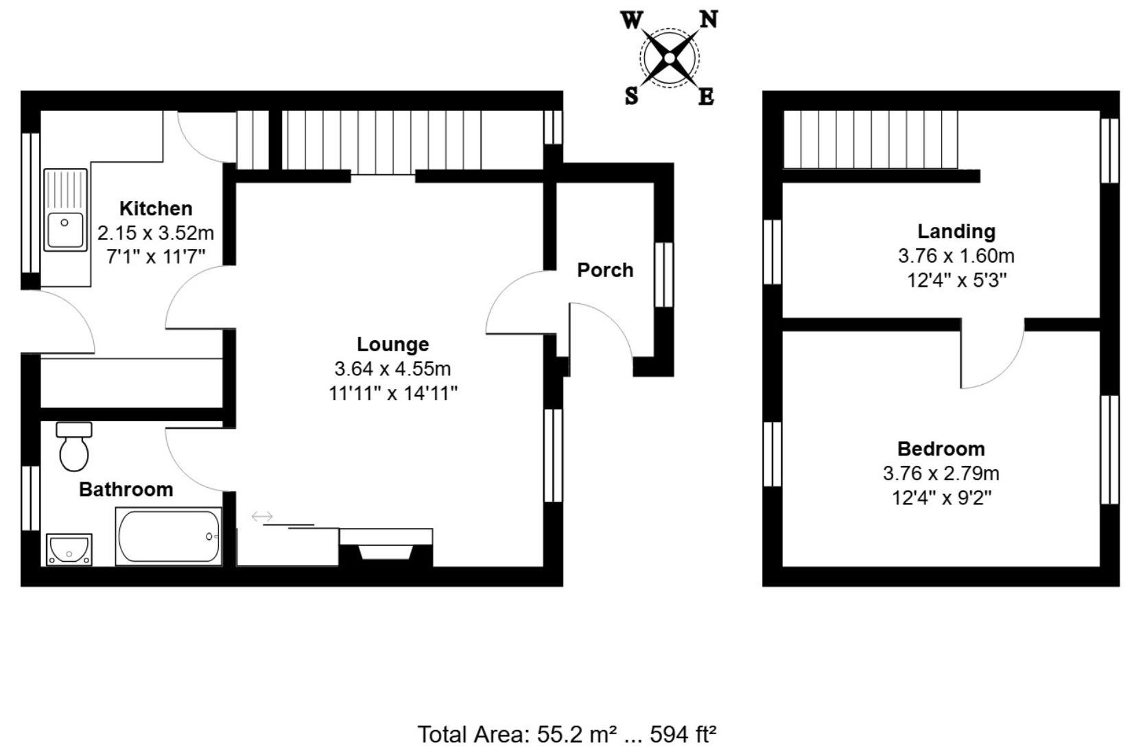
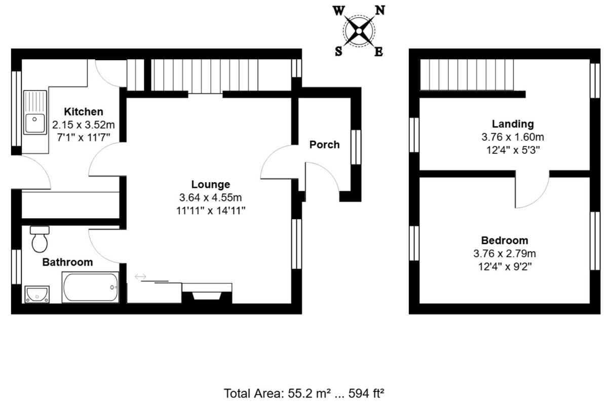
A delightful semi detached period cottage

Situated in the desirable village of Kelsale just a mile or so from Saxmundham and with easy access to the Suffolk Heritage Coast is this pretty semi detached property known as 'Smokey Cottage' after a previous owner's black cat and offering a good size rear garden, off road parking and a garage.

The property offers well presented one bedroom accommodation with scope to create a small second bedroom on the landing and includes a sitting room with a wood burning stove, double glazing and electric storage heating.

With Sizewell just 6 miles away and a particularly strong demand for rental properties in the area, we believe this to be a first class investment opportunity.

Council Tax Band A
Viewing

Tenure: Freehold

EPC Rating: E

Important Notice to Prospective Buyers

We draw your attention to the Special Conditions of Sale within the Legal Pack, referring to other charges in addition to the purchase price which may become payable. Such costs may include Search Fees, reimbursement of Sellers costs and Legal Fees, and Transfer Fees amongst others.

Buyers Premium

Buyer's Premium - £1200 inc VAT payable on exchange of contracts.

Administration Charge

Administration Charge is a non-refundable £1,200 inc VAT payable on the fall of the virtual gavel.

Loading the bidding panel...

Make An Enquiry

Submit an enquiry for this lot and someone will be in contact shortly.

 
 
 
* Guide | £130,000 - £140,000
  • 1 Bedroom
  • Unconditional (Immediate Exchange)

Call the team on 01603 505 100 for more information

Related Documents

Disclaimer: The map preview provided above is for general guidance only and may not accurately reflect the exact location or surrounding buildings. Prospective buyers and interested parties are strongly advised to independently verify the precise location and surroundings before bidding.

Note

  1. MONEY LAUNDERING REGULATIONS: Intending purchasers will be asked to produce identification documentation at a later stage and we would ask for your co-operation in order that there will be no delay in agreeing the sale.
  2. General : While we endeavour to make our sales particulars fair, accurate and reliable, they are only a general guide to the property and, accordingly, if there is any point which is of particular importance to you, please contact the office and we will be pleased to check the position for you, especially if you are contemplating travelling some distance to view the property.
  3. Measurements: These approximate room sizes are only intended as general guidance. You must verify the dimensions carefully before ordering carpets or any built-in furniture.
  4. Services: Please note we have not tested the services or any of the equipment or appliances in this property, accordingly we strongly advise prospective buyers to commission their own survey or service reports before finalising their offer to purchase.
  5. THESE PARTICULARS ARE ISSUED IN GOOD FAITH BUT DO NOT CONSTITUTE REPRESENTATIONS OF FACT OR FORM PART OF ANY OFFER OR CONTRACT. THE MATTERS REFERRED TO IN THESE PARTICULARS SHOULD BE INDEPENDENTLY VERIFIED BY PROSPECTIVE BUYERS OR TENANTS. NEITHER AUCTION HOUSE NOR ANY OF ITS EMPLOYEES OR AGENTS HAS ANY AUTHORITY TO MAKE OR GIVE ANY REPRESENTATION OR WARRANTY WHATEVER IN RELATION TO THIS PROPERTY.