Auction House / South Yorkshire

  • For Sale By Unconditional Online Auction
  • Guide Price* : £28,000
  • Bidding Opens 30/03/2026 13:00

28 Leicester Road Dinnington, Sheffield, South Yorkshire, S25 2PX

Full Refurbishment Project with Strong Investment Potential in Popular Dinnington Location.

**NO VIEWINGS DUE TO INTERNALLY BEING UNSAFE**

Description

A two-bedroom mid-terraced property offering an excellent opportunity for investors, developers, or builders seeking a full renovation project with strong value-add potential.
Situated in the popular residential area of Dinnington, the property is conveniently located close to local amenities, schools, and transport links providing easy access to Sheffield, Rotherham, and the M1 motorway network.

The property requires complete refurbishment throughout but offers generous accommodation arranged over two floors and a traditional terrace layout, making it an ideal buy-to-let, resale, or refurbishment project.

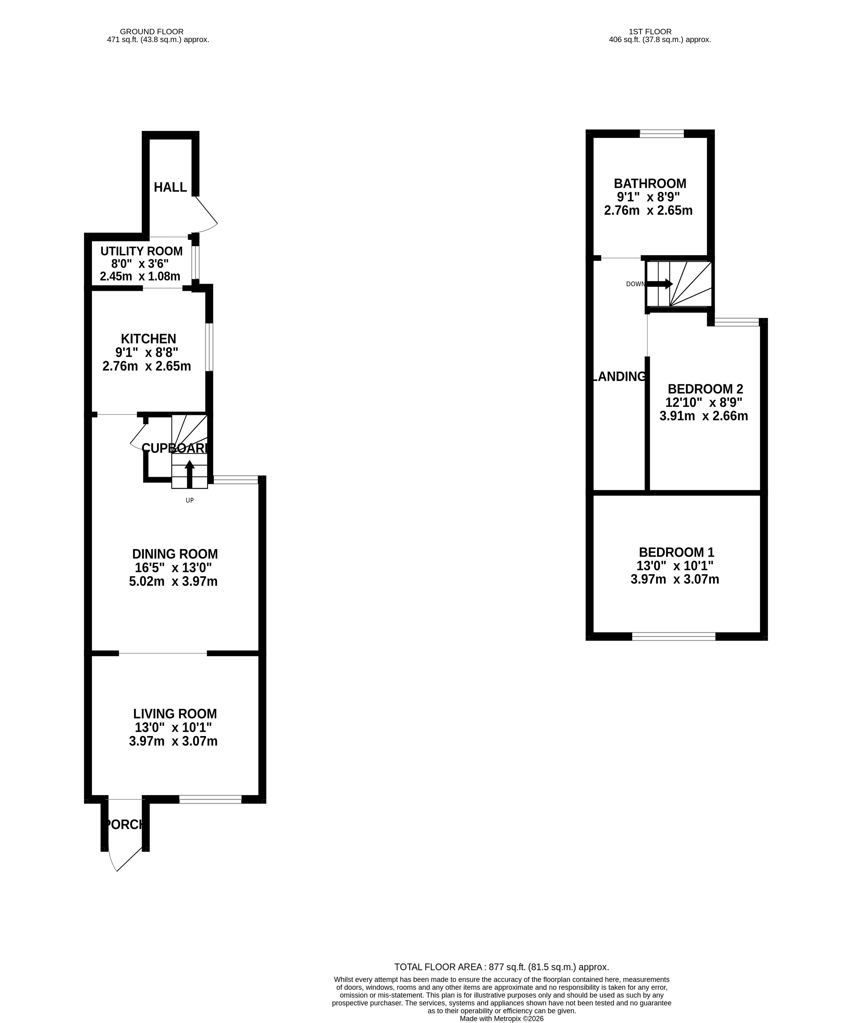
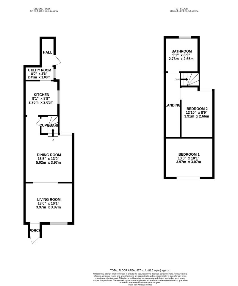
Accommodation

Ground Floor
•{tab}Entrance Porch
•{tab}Living Room – approx. 13'0" x 10'1" (3.97m x 3.07m)
•{tab}Dining Room – approx. 16'5" x 13'0" (5.02m x 3.97m)
•{tab}Kitchen – approx. 9'1" x 8'8" (2.76m x 2.65m)
•{tab}Utility Room – approx. 8'0" x 3'6" (2.45m x 1.08m)

First Floor
•{tab}Bedroom One – approx. 13'0" x 10'1" (3.97m x 3.07m)
•{tab}Bedroom Two – approx. 12'10" x 8'9" (3.91m x 2.66m)
•{tab}Bathroom – approx. 9'1" x 8'9" (2.76m x 2.65m)
•{tab}
Total Floor Area: approx. 877 sq ft (81.5 sq m)

Externally the property benefits from a front forecourt garden and a rear yard/garden area.

Investment Potential

Properties of this style are highly sought after by landlords and developers once refurbished. Following renovation the property could provide an attractive rental investment or resale opportunity.

Tenure
Freehold

Council Tax
Band A

Auctioneer’s Note
The property is offered in need of full modernisation and is sold as seen.

Tenure: Freehold

EPC Rating: D

Important Notice to Prospective Buyers

We draw your attention to the Special Conditions of Sale within the Legal Pack, referring to other charges in addition to the purchase price which may become payable. Such costs may include Search Fees, reimbursement of Sellers costs and Legal Fees, and Transfer Fees amongst others.

Administration Charge

£3,600 inc vat payable upon the fall of the virtual gavel

Loading the bidding panel...

Make An Enquiry

Submit an enquiry for this lot and someone will be in contact shortly.

 
 
 
* Guide | £28,000
  • 2 Bedrooms
  • Unconditional (Immediate Exchange)

Call the team on 0114 223 0777 for more information

Disclaimer: The map preview provided above is for general guidance only and may not accurately reflect the exact location or surrounding buildings. Prospective buyers and interested parties are strongly advised to independently verify the precise location and surroundings before bidding.

Note

  1. MONEY LAUNDERING REGULATIONS: Intending purchasers will be asked to produce identification documentation at a later stage and we would ask for your co-operation in order that there will be no delay in agreeing the sale.
  2. General : While we endeavour to make our sales particulars fair, accurate and reliable, they are only a general guide to the property and, accordingly, if there is any point which is of particular importance to you, please contact the office and we will be pleased to check the position for you, especially if you are contemplating travelling some distance to view the property.
  3. Measurements: These approximate room sizes are only intended as general guidance. You must verify the dimensions carefully before ordering carpets or any built-in furniture.
  4. Services: Please note we have not tested the services or any of the equipment or appliances in this property, accordingly we strongly advise prospective buyers to commission their own survey or service reports before finalising their offer to purchase.
  5. THESE PARTICULARS ARE ISSUED IN GOOD FAITH BUT DO NOT CONSTITUTE REPRESENTATIONS OF FACT OR FORM PART OF ANY OFFER OR CONTRACT. THE MATTERS REFERRED TO IN THESE PARTICULARS SHOULD BE INDEPENDENTLY VERIFIED BY PROSPECTIVE BUYERS OR TENANTS. NEITHER AUCTION HOUSE NOR ANY OF ITS EMPLOYEES OR AGENTS HAS ANY AUTHORITY TO MAKE OR GIVE ANY REPRESENTATION OR WARRANTY WHATEVER IN RELATION TO THIS PROPERTY.