Auction House / South Yorkshire

  • For Sale By Unconditional Online Auction
  • Guide Price* : £10,000 - £20,000
  • Bidding Opens 16/03/2026 13:00

Spiritualist Church on Station Road, Doncaster, South Yorkshire, DN7 5QA

FOR SALE VIA NATIONAL ONLINE AUCTION. BIDDING OPENS ON MONDAY 16th MARCH AT 1PM AND CLOSES TUESDAY 17th MARCH FROM 1PM. REGISTER TO BID!

Description

For sale by auction is this vacant detached Spiritualist Church, in need of improvement.

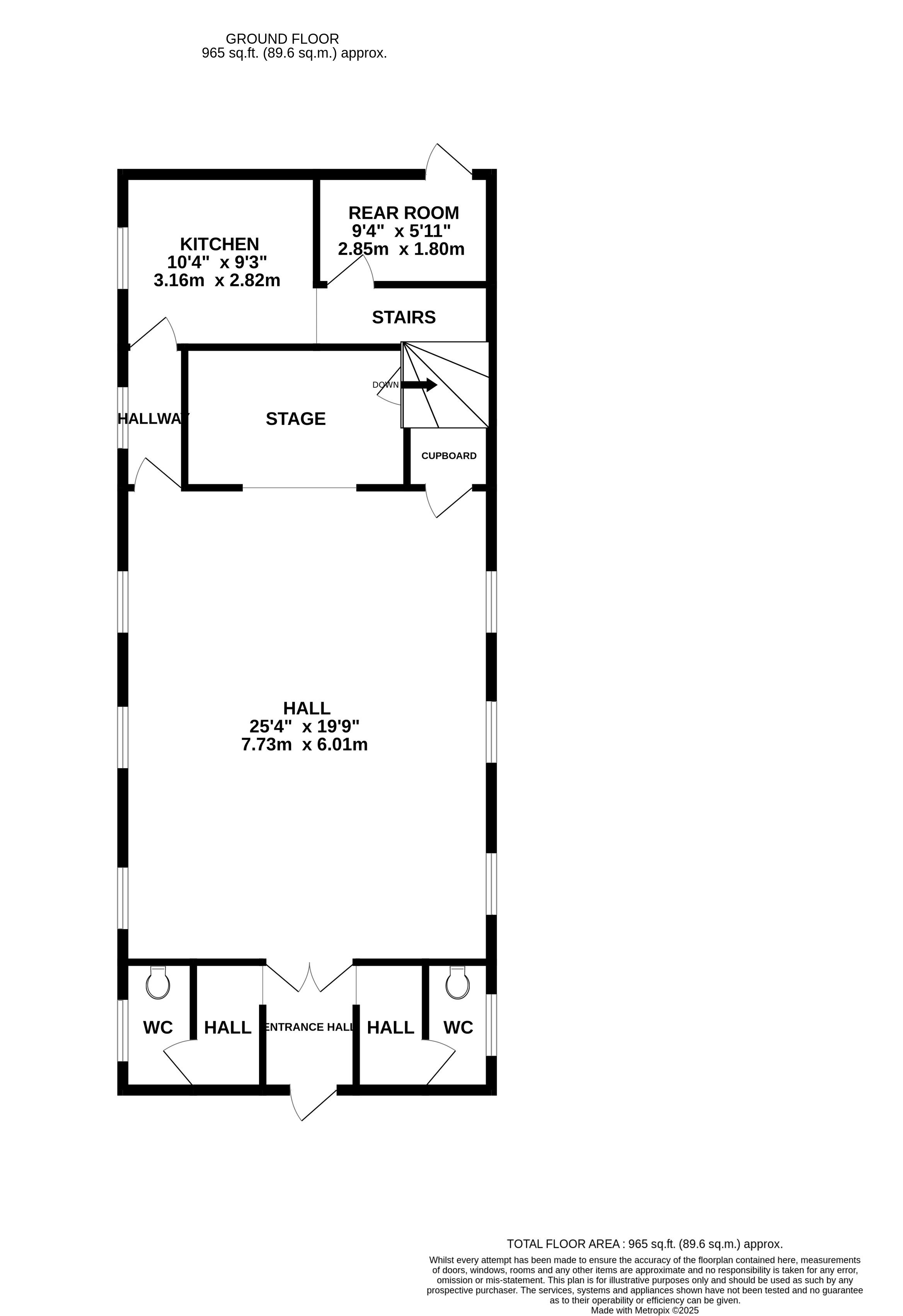
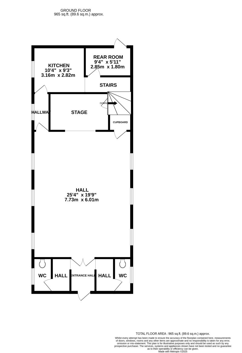
The property compromises of an Entrance Hall, 2 WCs, a Hall with stage area, a Kitchen, and a rear storage room.

The plot offers scope to demolish the existing building and replace it with another, subject to the relevant consent being approved, making this an ideal purchase for an investor looking for a project.

Externally, there is a front yard, with a small walkway to the rear of the property. The perimeter is fenced/gated.

Situated along the main road through the centre of Stainforth is this former place of worship which now being sold with vacant possession. It is close to the main shops, including Asda and is served by the local bus service to Doncaster and surrounding districts. Stainforth sits northwest of Doncaster city centre and is close to Thorne and the M18 Motorway for travelling further afield.

Tenure: Freehold

Important Notice to Prospective Buyers

We draw your attention to the Special Conditions of Sale within the Legal Pack, referring to other charges in addition to the purchase price which may become payable. Such costs may include Search Fees, reimbursement of Sellers costs and Legal Fees, and Transfer Fees amongst others.

Administration Charge

Administration Charge is a non-refundable £3,600 inc VAT payable on the fall of the virtual gavel.

Loading the bidding panel...

Make An Enquiry

Submit an enquiry for this lot and someone will be in contact shortly.

 
 
 
* Guide | £10,000 - £20,000
  • Unconditional (Immediate Exchange)

Call the team on 0114 223 0777 for more information

Disclaimer: The map preview provided above is for general guidance only and may not accurately reflect the exact location or surrounding buildings. Prospective buyers and interested parties are strongly advised to independently verify the precise location and surroundings before bidding.

Note

  1. MONEY LAUNDERING REGULATIONS: Intending purchasers will be asked to produce identification documentation at a later stage and we would ask for your co-operation in order that there will be no delay in agreeing the sale.
  2. General : While we endeavour to make our sales particulars fair, accurate and reliable, they are only a general guide to the property and, accordingly, if there is any point which is of particular importance to you, please contact the office and we will be pleased to check the position for you, especially if you are contemplating travelling some distance to view the property.
  3. Measurements: These approximate room sizes are only intended as general guidance. You must verify the dimensions carefully before ordering carpets or any built-in furniture.
  4. Services: Please note we have not tested the services or any of the equipment or appliances in this property, accordingly we strongly advise prospective buyers to commission their own survey or service reports before finalising their offer to purchase.
  5. THESE PARTICULARS ARE ISSUED IN GOOD FAITH BUT DO NOT CONSTITUTE REPRESENTATIONS OF FACT OR FORM PART OF ANY OFFER OR CONTRACT. THE MATTERS REFERRED TO IN THESE PARTICULARS SHOULD BE INDEPENDENTLY VERIFIED BY PROSPECTIVE BUYERS OR TENANTS. NEITHER AUCTION HOUSE NOR ANY OF ITS EMPLOYEES OR AGENTS HAS ANY AUTHORITY TO MAKE OR GIVE ANY REPRESENTATION OR WARRANTY WHATEVER IN RELATION TO THIS PROPERTY.