Auction House / Notts & Derby

  • For Sale By Unconditional Online Auction
  • Guide Price* : £370,000
  • Bidding Opens 09/03/2026 13:00

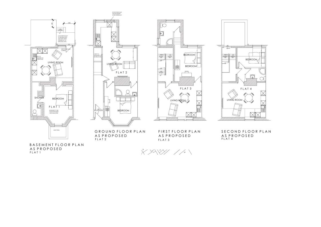
Four Flats and Freehold Grinford House, Buxton, Derbyshire, SK17 6LP

Grinford House, SK17 6LP – Freehold Block of 4 Self-Contained One-Bedroom Flats
Total Current Income: £29,700 per annum | Fully Let | Recently Refurbished

Description

A rare opportunity to acquire a freehold block of four self-contained one-bedroom flats, converted from a substantial former residence and offering immediate income with future value-add potential.

The property was originally purchased in 2016 as a large eight-bedroom house and subsequently converted back to bricks into four individual one-bedroom flats, each completed with full planning consent and Building Regulations sign-off. The building has also benefitted from further refurbishment within the last 12–18 months, including updated kitchens, bathrooms, floor coverings and general redecoration.

All four flats are well-presented, self-contained and individually metered, and are currently occupied by professional tenants, providing a reliable and established income stream with no rental arrears.

Current Rent Roll:

Flat 1 – £580 pcm
Flat 2 – £600 pcm
Flat 3 – £625 pcm
Flat 4 – £600 pcm

Total Gross Income: £2,475 pcm / £29,700 per annum

The property is held on a single freehold title, offering scope for an incoming purchaser to create four individual leasehold titles (subject to consents), providing an opportunity to enhance capital value and refinance.

Located in a popular and well-connected area, the flats appeal strongly to the local rental market and offer a hands-off investment with long-term growth prospects.

Key Investment Highlights:

Freehold block of 4 flats
Fully let to professional tenants
Converted with planning and Building Regulations approval
Recently refurbished
Combined income £29,700 per annum
Scope for title splitting and increased GDV
Strong rental demand location

An ideal acquisition for investors seeking a secure income-producing asset with future upside.

Tenure: Freehold

EPC Rating: see legals

Important Notice to Prospective Buyers

We draw your attention to the Special Conditions of Sale within the Legal Pack, referring to other charges in addition to the purchase price which may become payable. Such costs may include Search Fees, reimbursement of Sellers costs and Legal Fees, and Transfer Fees amongst others.

Administration Charge

Administration Charge is a non-refundable £1,200 inc VAT payable on the fall of the virtual gavel.

Loading the bidding panel...

Make An Enquiry

Submit an enquiry for this lot and someone will be in contact shortly.

 
 
 
* Guide | £370,000
  • 4 Bedrooms
  • Unconditional (Immediate Exchange)

Call the team on 0115 777 8888 for more information

Disclaimer: The map preview provided above is for general guidance only and may not accurately reflect the exact location or surrounding buildings. Prospective buyers and interested parties are strongly advised to independently verify the precise location and surroundings before bidding.

Note

  1. MONEY LAUNDERING REGULATIONS: Intending purchasers will be asked to produce identification documentation at a later stage and we would ask for your co-operation in order that there will be no delay in agreeing the sale.
  2. General : While we endeavour to make our sales particulars fair, accurate and reliable, they are only a general guide to the property and, accordingly, if there is any point which is of particular importance to you, please contact the office and we will be pleased to check the position for you, especially if you are contemplating travelling some distance to view the property.
  3. Measurements: These approximate room sizes are only intended as general guidance. You must verify the dimensions carefully before ordering carpets or any built-in furniture.
  4. Services: Please note we have not tested the services or any of the equipment or appliances in this property, accordingly we strongly advise prospective buyers to commission their own survey or service reports before finalising their offer to purchase.
  5. THESE PARTICULARS ARE ISSUED IN GOOD FAITH BUT DO NOT CONSTITUTE REPRESENTATIONS OF FACT OR FORM PART OF ANY OFFER OR CONTRACT. THE MATTERS REFERRED TO IN THESE PARTICULARS SHOULD BE INDEPENDENTLY VERIFIED BY PROSPECTIVE BUYERS OR TENANTS. NEITHER AUCTION HOUSE NOR ANY OF ITS EMPLOYEES OR AGENTS HAS ANY AUTHORITY TO MAKE OR GIVE ANY REPRESENTATION OR WARRANTY WHATEVER IN RELATION TO THIS PROPERTY.