Auction House / Lincolnshire

  • For Sale By Unconditional Online Auction
  • Guide Price* : Starting Bid | £60,000
  • Auction Ended 10/03/2026
  • Lot 37

Bridge Farm St Johns Road, Helston, Cornwall, TR13 8HW

*ONLINE Unconditional Auction Opening 09 March 2026*
To register for the legal pack and bidding, please visit our website: auctionhouse.co.uk/lincolnshire

*GUIDE PRICE / EXPECTED SALE RANGE: £80,000 - £120,000 (plus fees)*

Description

Situation:
The property is situate on St Johns Road, in the heart of Helston, being well positioned for access to a wide range of facilities and amenities.Helston itself is well located for access to the surrounding towns and villages of historic Cornwall, along with convenient access to the stunning beaches and coastlines of Porthleven.

Description:
This traditionally constructed three-bedroom semi-detached house is offered for sale and requires some cosmetic improvement. The property offers potential to add value and may suit a range of buyers, including owner-occupiers or those seeking an investment opportunity. Situated in an area known for strong rental demand, the property may lend itself to long-term letting or alternative uses, subject to the relevant permissions and consents.

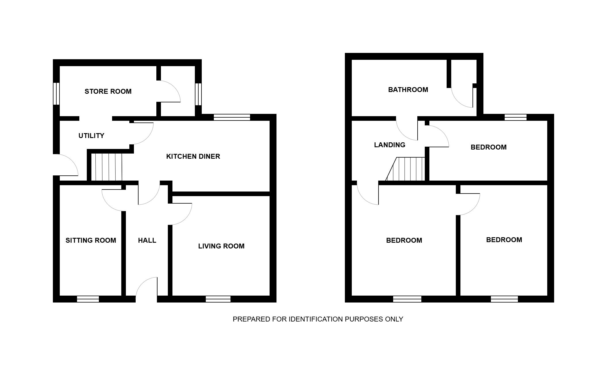
Accommodation
Ground Floor
Entrance Hall
Living Room
Sitting Room
Kitchen/Diner
Utility Room
Store Room
Rear Lobby

First Floor
Bedroom 1
Bedroom 2
Bedroom 3
Family Bathroom

Outside
Gravelled parking area.

Material Information
Please copy and paste the link below into your browser for a full breakdown of material information for this property

_https_mip.urls.addland.com/hvZW94juEeFvgXAe5gU1z9

Tenure:
The property is freehold. All prospective bidders should satisfy themselves of terms of the tenure, ground rent and service charge if applicable, by inspecting the legal pack.

Council Tax:
The property falls within Cornwall Council – BAND - D

Possession:
Vacant possession will be given upon completion.

Viewing:
Strictly by appointment with Auction House.

Services:
Prospective purchasers are advised to make their own enquiries of the relevant statutory authorities. NB: Services, Apparatus and Equipment have not been tested by Auction House and therefore cannot be verified as being in working order. The buyer is advised to obtain verification from their Solicitor/Surveyor.

These particulars are believed to be correct but their accuracy is not guaranteed and they do not form any part of any contract. Information relating to Rating and Town and Country Planning matters has been obtained by verbal enquiry only. Prospective purchasers are advised to make their own enquiries of the appropriate Authority. Information relating to Phone & Broadband can be found by visiting Ofcom. All measurements, areas and distances are approximate only. Potential purchasers are advised to check them. Any potential rental incomes are approximate based on Rightmove data at the time of preparing the details and bidders are advised to check with a local agent for an accurate valuation.

Important Notice to Prospective Buyers

We draw your attention to the Special Conditions of Sale within the Legal Pack, referring to other charges in addition to the purchase price which may become payable. Such costs may include Search Fees, reimbursement of Sellers costs and Legal Fees, and Transfer Fees amongst others.

Administration Charge

Non-refundable £3,600 inc VAT payable on the fall of the virtual gavel.

Disbursements

Please see the legal pack for any disbursements listed that may become payable by the purchaser on completion.

Loading the bidding panel...

* Guide | Starting Bid | £60,000
  • 3 Bedrooms
  • Unconditional (Immediate Exchange)

Call the team on 01427 616436 for more information

Disclaimer: The map preview provided above is for general guidance only and may not accurately reflect the exact location or surrounding buildings. Prospective buyers and interested parties are strongly advised to independently verify the precise location and surroundings before bidding.

Note

  1. MONEY LAUNDERING REGULATIONS: Intending purchasers will be asked to produce identification documentation at a later stage and we would ask for your co-operation in order that there will be no delay in agreeing the sale.
  2. General : While we endeavour to make our sales particulars fair, accurate and reliable, they are only a general guide to the property and, accordingly, if there is any point which is of particular importance to you, please contact the office and we will be pleased to check the position for you, especially if you are contemplating travelling some distance to view the property.
  3. Measurements: These approximate room sizes are only intended as general guidance. You must verify the dimensions carefully before ordering carpets or any built-in furniture.
  4. Services: Please note we have not tested the services or any of the equipment or appliances in this property, accordingly we strongly advise prospective buyers to commission their own survey or service reports before finalising their offer to purchase.
  5. THESE PARTICULARS ARE ISSUED IN GOOD FAITH BUT DO NOT CONSTITUTE REPRESENTATIONS OF FACT OR FORM PART OF ANY OFFER OR CONTRACT. THE MATTERS REFERRED TO IN THESE PARTICULARS SHOULD BE INDEPENDENTLY VERIFIED BY PROSPECTIVE BUYERS OR TENANTS. NEITHER AUCTION HOUSE NOR ANY OF ITS EMPLOYEES OR AGENTS HAS ANY AUTHORITY TO MAKE OR GIVE ANY REPRESENTATION OR WARRANTY WHATEVER IN RELATION TO THIS PROPERTY.