Auction House / East Anglia

  • For Sale By Unconditional Online Auction
  • Guide Price* : £650,000
  • Bidding Opens 02/03/2026 13:00

64-66 Westwick Street, Norwich, Norfolk, NR2 4SZ

FOR SALE BY ONLINE AUCTION ON TUESDAY 3 MARCH 2026

Description

Two prominent commercial city premises with 30 parking spaces and direct frontage over River Wensum, currently partially let to separate tenants producing over £100,000 pa.

Prominently positioned on Westwick Street, just a short walk from Norwich city centre, this substantial property offers an exceptional opportunity for investors or developers.

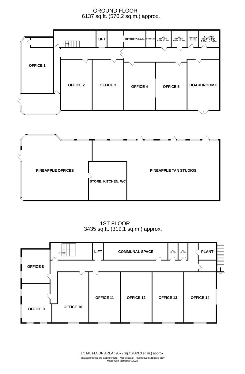
Occupying a plot measuring 0.43 acres (stms) the premises comprise two adjoining buildings and contain 15 commercial units spread over two floors with parking spaces for 30 vehicles. To the left is a two storey premises divided into 14 separate office spaces, with kitchen, two WCs, shower room and lift and measures approximately 638 sq/m (6867 sq/ft) and is partially let. Opposite is the single storey building measuring approximately 251 sqm (2701 sq/ft) and is leased in its entirety to a long-standing tenant.

We have been informed that the current rental agreements indicate that the tenanted units produce a combined income of £104,700

The property offers excellent potential for refurbishment, redevelopment, or alternative uses including residential, subject to the necessary consents.

Property offered for sale on instruction from receivers.

Rents
Units 1, 4, 5, 6 & 11 VACANT
Unit 2 - £725 pcm
Unit 3 -£1,000 pcm
Unit 7 - Communal space
Units 8, 9, 10, 14 - £1,600 pcm
Unit 12 -£1,100 pcm
Unit 13 -£1,200 pcm
Right hand building: - £3,000 pcm
2 Parking Spaces - £100 pcm

TOTAL £8,725 pcm (£104,700)

Note Leases not inspected by receivers or auctioneers. Due diligence to be applied by interested parties.
Viewings Offered by appointment only.

Please contact the Norwich Office 01603 505100 to arrange

Tenure: Freehold

EPC Rating: C & D

Important Notice to Prospective Buyers

We draw your attention to the Special Conditions of Sale within the Legal Pack, referring to other charges in addition to the purchase price which may become payable. Such costs may include Search Fees, reimbursement of Sellers costs and Legal Fees, and Transfer Fees amongst others.

Buyers Premium

£1260 inc VAT payable on exchange of contracts.

Administration Charge

Administration Charge is a non-refundable £1,200 inc VAT payable on the fall of the virtual gavel.

Loading the bidding panel...

Make An Enquiry

Submit an enquiry for this lot and someone will be in contact shortly.

 
 
 
* Guide | £650,000
  • Unconditional (Immediate Exchange)

Call the team on 01603 505 100 for more information

Disclaimer: The map preview provided above is for general guidance only and may not accurately reflect the exact location or surrounding buildings. Prospective buyers and interested parties are strongly advised to independently verify the precise location and surroundings before bidding.

Note

  1. MONEY LAUNDERING REGULATIONS: Intending purchasers will be asked to produce identification documentation at a later stage and we would ask for your co-operation in order that there will be no delay in agreeing the sale.
  2. General : While we endeavour to make our sales particulars fair, accurate and reliable, they are only a general guide to the property and, accordingly, if there is any point which is of particular importance to you, please contact the office and we will be pleased to check the position for you, especially if you are contemplating travelling some distance to view the property.
  3. Measurements: These approximate room sizes are only intended as general guidance. You must verify the dimensions carefully before ordering carpets or any built-in furniture.
  4. Services: Please note we have not tested the services or any of the equipment or appliances in this property, accordingly we strongly advise prospective buyers to commission their own survey or service reports before finalising their offer to purchase.
  5. THESE PARTICULARS ARE ISSUED IN GOOD FAITH BUT DO NOT CONSTITUTE REPRESENTATIONS OF FACT OR FORM PART OF ANY OFFER OR CONTRACT. THE MATTERS REFERRED TO IN THESE PARTICULARS SHOULD BE INDEPENDENTLY VERIFIED BY PROSPECTIVE BUYERS OR TENANTS. NEITHER AUCTION HOUSE NOR ANY OF ITS EMPLOYEES OR AGENTS HAS ANY AUTHORITY TO MAKE OR GIVE ANY REPRESENTATION OR WARRANTY WHATEVER IN RELATION TO THIS PROPERTY.