Auction House / Cumbria

  • For Sale By Unconditional Online Auction
  • Guide Price* : £125,000
  • Bidding Opens 02/03/2026 13:00
  • Lot 56

7 Norfolk Road, Penrith, Cumbria, CA11 9AA

GUIDE PRICE £125,000+
FOR SALE BY ONLINE AUCTION. BIDDING OPENS AT 1PM ON MONDAY 2ND MARCH 2026 AND CLOSES AT 1PM ON TUESDAY 3RD MARCH 2026.
For bidding registration, please visit auctionhousecumbria.co.uk

Description

GUIDE PRICE £125,000+
FOR SALE BY ONLINE AUCTION. BIDDING OPENS AT 1PM ON MONDAY 2ND MARCH 2026 AND CLOSES AT 1PM ON TUESDAY 3RD MARCH 2026.
For bidding registration, please visit auctionhousecumbria.co.uk

End terraced property in sought after location

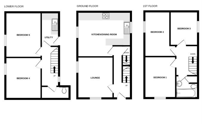
Five bedroom end terraced property over 3 floors. Located close to the town centre, local ameities and transport links. Comprises: hall, lounge and kitchen/diner to the ground floor, 2 bedrooms and utility room to the lower ground floor and 2 bedrooms and bathroom to the first floor.

Lower Ground Floor Bedroom 3.38m x 2.8m
Bedroom 3.7m x 2.92m
Utility Room
Ground Floor Hall
Sitting Room 3.6m x 3.25m
Kitchen/ Dining Room 4.6m max x 7.2m
First Floor Bedroom 3.6m max x 3.2m
Bedroom 3.9m x 2.2m
Bathroom 2.4m x 1.9m

Tenure: See Legal Pack

EPC Rating: D

Important Notice to Prospective Buyers

We draw your attention to the Special Conditions of Sale within the Legal Pack, referring to other charges in addition to the purchase price which may become payable. Such costs may include Search Fees, reimbursement of Sellers costs and Legal Fees, and Transfer Fees amongst others.

Buyers Premium

£1,200 inc VAT payable on the fall of the virtual hammer

Administration Charge

Administration Charge is a non-refundable 1.2% inc VAT (subject to a minimum of £1,500 inc VAT) payable on the fall of the virtual gavel.

Loading the bidding panel...

Make An Enquiry

Submit an enquiry for this lot and someone will be in contact shortly.

 
 
 
* Guide | £125,000
  • 5 Bedrooms
  • Unconditional (Immediate Exchange)

Call the team on 01228 510 552 for more information

Disclaimer: The map preview provided above is for general guidance only and may not accurately reflect the exact location or surrounding buildings. Prospective buyers and interested parties are strongly advised to independently verify the precise location and surroundings before bidding.

Note

  1. MONEY LAUNDERING REGULATIONS: Intending purchasers will be asked to produce identification documentation at a later stage and we would ask for your co-operation in order that there will be no delay in agreeing the sale.
  2. General : While we endeavour to make our sales particulars fair, accurate and reliable, they are only a general guide to the property and, accordingly, if there is any point which is of particular importance to you, please contact the office and we will be pleased to check the position for you, especially if you are contemplating travelling some distance to view the property.
  3. Measurements: These approximate room sizes are only intended as general guidance. You must verify the dimensions carefully before ordering carpets or any built-in furniture.
  4. Services: Please note we have not tested the services or any of the equipment or appliances in this property, accordingly we strongly advise prospective buyers to commission their own survey or service reports before finalising their offer to purchase.
  5. THESE PARTICULARS ARE ISSUED IN GOOD FAITH BUT DO NOT CONSTITUTE REPRESENTATIONS OF FACT OR FORM PART OF ANY OFFER OR CONTRACT. THE MATTERS REFERRED TO IN THESE PARTICULARS SHOULD BE INDEPENDENTLY VERIFIED BY PROSPECTIVE BUYERS OR TENANTS. NEITHER AUCTION HOUSE NOR ANY OF ITS EMPLOYEES OR AGENTS HAS ANY AUTHORITY TO MAKE OR GIVE ANY REPRESENTATION OR WARRANTY WHATEVER IN RELATION TO THIS PROPERTY.