Auction House / North East

  • For Sale By Unconditional Online Auction
  • Guide Price* : £110,000
  • Bidding Opens 16/02/2026 13:00

50 Norman Terrace, Wallsend, Tyne And Wear, NE28 6SP

Spacious three bed terraced house, located in Willington Quay in Wallsend.

Please contact Your Move Wallsend on 0191 262 3961 to arrange a viewing!

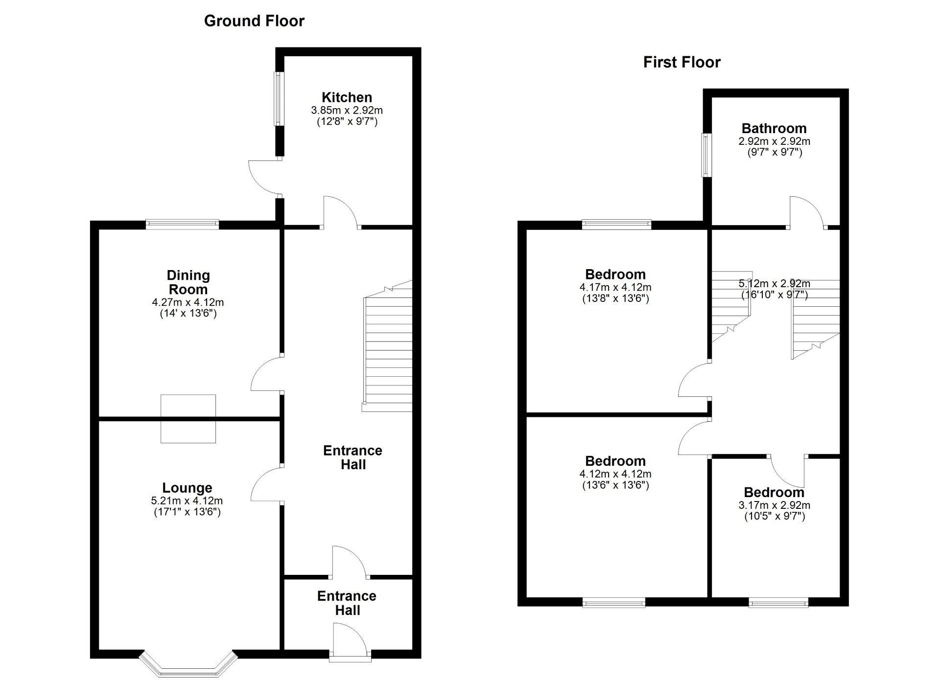
Description

This well-proportioned property offers generous living accommodation arranged over two floors and provides excellent potential for owner-occupiers and investors alike. Situated on a popular residential road, the property benefits from a private rear yard and is conveniently located close to local amenities, schools, and transport links.

This property presents an ideal opportunity for those seeking a spacious family home or a renovation project with good resale or rental potential.

To the ground floor, the accommodation comprises an entrance hallway with staircase to the first floor, a spacious lounge to the front, a separate dining room, and a fitted kitchen to the rear with access to the rear yard.

The first floor offers three well-sized bedrooms and a family bathroom.

Externally, the property benefits from a private rear yard, offering outdoor space with low maintenance requirements.

Tenure: Freehold

Important Notice to Prospective Buyers

We draw your attention to the Special Conditions of Sale within the Legal Pack, referring to other charges in addition to the purchase price which may become payable. Such costs may include Search Fees, reimbursement of Sellers costs and Legal Fees, and Transfer Fees amongst others.

Administration Charge

£3600 inc VAT payable on exchange of contracts.

Loading the bidding panel...

Make An Enquiry

Submit an enquiry for this lot and someone will be in contact shortly.

 
 
 
* Guide | £110,000
  • 3 Bedrooms
  • Unconditional (Immediate Exchange)

Call the team on 0191 908 9691 for more information

Disclaimer: The map preview provided above is for general guidance only and may not accurately reflect the exact location or surrounding buildings. Prospective buyers and interested parties are strongly advised to independently verify the precise location and surroundings before bidding.

Note

  1. MONEY LAUNDERING REGULATIONS: Intending purchasers will be asked to produce identification documentation at a later stage and we would ask for your co-operation in order that there will be no delay in agreeing the sale.
  2. General : While we endeavour to make our sales particulars fair, accurate and reliable, they are only a general guide to the property and, accordingly, if there is any point which is of particular importance to you, please contact the office and we will be pleased to check the position for you, especially if you are contemplating travelling some distance to view the property.
  3. Measurements: These approximate room sizes are only intended as general guidance. You must verify the dimensions carefully before ordering carpets or any built-in furniture.
  4. Services: Please note we have not tested the services or any of the equipment or appliances in this property, accordingly we strongly advise prospective buyers to commission their own survey or service reports before finalising their offer to purchase.
  5. THESE PARTICULARS ARE ISSUED IN GOOD FAITH BUT DO NOT CONSTITUTE REPRESENTATIONS OF FACT OR FORM PART OF ANY OFFER OR CONTRACT. THE MATTERS REFERRED TO IN THESE PARTICULARS SHOULD BE INDEPENDENTLY VERIFIED BY PROSPECTIVE BUYERS OR TENANTS. NEITHER AUCTION HOUSE NOR ANY OF ITS EMPLOYEES OR AGENTS HAS ANY AUTHORITY TO MAKE OR GIVE ANY REPRESENTATION OR WARRANTY WHATEVER IN RELATION TO THIS PROPERTY.