Auction House / South West

  • For Sale By Unconditional Online Auction
  • Guide Price* : £200,000
  • Bidding Opens 16/02/2026 13:00

8 Mason Street, Reading, Berkshire, RG1 7PD

Guide Price £200,000 (plus fees). For sale by National Timed Auction, bidding opens 16th of February 2026 and closes 24 hours later. Four bedroom mid-terrace house. Legal pack available to download free of charge via our website.

Description

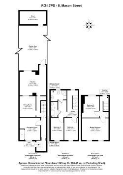
Mid-Terrace House

A four bedroom mid terrace property situated in Reading, Berkshire. Requiring modernisation throughout, the accommodation comprises an entrance hall, living room, dining room, kitchen, four bedrooms, two shower rooms and a rear garden.

ACCOMMODATION
Entrance Hall
Living Room: 11'12" x 10'6"
Dining Room: 10'8" x 8'6"
Kitchen: 12'7" x 12'0"
Landing
Bedroom One: 13'5" x 10'11"
Bedroom Two: 11'1" x 6'7"
Bedroom Three: 11'1" x 6'1"
Bedroom Four: 10'10" x 8'7"
Shower Room One: 8'1" x 5'5"
Shower Room Two: 8'1" x 5'5"

VIEWINGS Regular block viewing sessions will be provided in the lead up to the auction. Please telephone Auction House South West on 03456 461361 to request a viewing.

FULL DETAILS Photographs, Dimensions, Floor Plans and Area Measurements (when available) are included within the full property details, online, via our website. All published information is to aid identification of the property and is not necessarily to scale.

NOTICE TO BIDDER Please be aware that if your Bid is successful on Auction day the exchange of contracts will happen immediately after the Auction.

Tenure: Freehold

EPC Rating: C71

Important Notice to Prospective Buyers

We draw your attention to the Special Conditions of Sale within the Legal Pack, referring to other charges in addition to the purchase price which may become payable. Such costs may include Search Fees, reimbursement of Sellers costs and Legal Fees, and Transfer Fees amongst others.

Buyers Premium

Buyers Premium is a non-refundable £1,200 inc VAT payable on the fall of the virtual gavel.

Administration Charge

Administration Charge is a non-refundable £1,200 inc VAT payable on the fall of the virtual gavel.

Loading the bidding panel...

Make An Enquiry

Submit an enquiry for this lot and someone will be in contact shortly.

 
 
 
* Guide | £200,000
  • 4 Bedrooms
  • Unconditional (Immediate Exchange)

Call the team on 01752 474200 for more information

Disclaimer: The map preview provided above is for general guidance only and may not accurately reflect the exact location or surrounding buildings. Prospective buyers and interested parties are strongly advised to independently verify the precise location and surroundings before bidding.

Note

  1. MONEY LAUNDERING REGULATIONS: Intending purchasers will be asked to produce identification documentation at a later stage and we would ask for your co-operation in order that there will be no delay in agreeing the sale.
  2. General : While we endeavour to make our sales particulars fair, accurate and reliable, they are only a general guide to the property and, accordingly, if there is any point which is of particular importance to you, please contact the office and we will be pleased to check the position for you, especially if you are contemplating travelling some distance to view the property.
  3. Measurements: These approximate room sizes are only intended as general guidance. You must verify the dimensions carefully before ordering carpets or any built-in furniture.
  4. Services: Please note we have not tested the services or any of the equipment or appliances in this property, accordingly we strongly advise prospective buyers to commission their own survey or service reports before finalising their offer to purchase.
  5. THESE PARTICULARS ARE ISSUED IN GOOD FAITH BUT DO NOT CONSTITUTE REPRESENTATIONS OF FACT OR FORM PART OF ANY OFFER OR CONTRACT. THE MATTERS REFERRED TO IN THESE PARTICULARS SHOULD BE INDEPENDENTLY VERIFIED BY PROSPECTIVE BUYERS OR TENANTS. NEITHER AUCTION HOUSE NOR ANY OF ITS EMPLOYEES OR AGENTS HAS ANY AUTHORITY TO MAKE OR GIVE ANY REPRESENTATION OR WARRANTY WHATEVER IN RELATION TO THIS PROPERTY.