Auction House / South Yorkshire

  • For Sale By Unconditional Online Auction
  • Guide Price* : £32,000
  • Bidding Opens 16/02/2026 13:00

9 Kent Road, Doncaster, South Yorkshire, DN4 8JB

Open House Viewings (no need to book)
Monday 2nd February - 11.30-12.00
Friday 6th February - 11.30-12.00
Friday 13th February - 11.30-12.00

Description

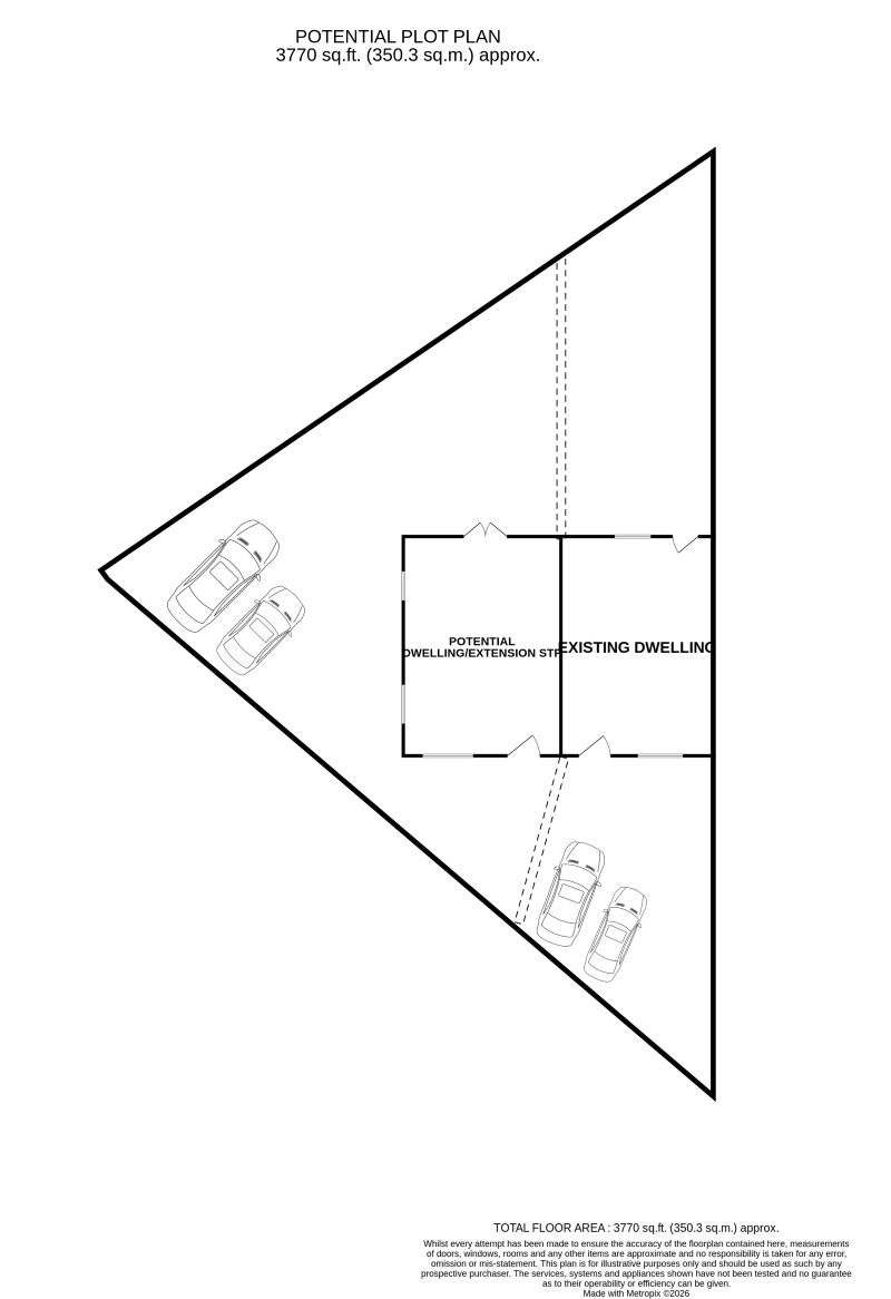
A good size brick built end town house offering spacious accommodation in need or a general refurbishment, and offering fantastic potential to reinstate as a three bedroom property easily, and sitting on a very large corner plot the property holds tremendous potential for extending or possibly an additional dwelling, subject to planning ( see proposed site layout)
The property has a popular location within Balby, which is a stones-throw from the city centre and all its amenities, the A1m is just a few minutes drive away and so is the east coast mainline for fast trains to London. The property would make a great investment, let in its current form could generate an income of £10200 per year, and with development potential on the plot the property could generate a significant re-sale return once completed.

Hallway
Lounge - 4.02 x 4.15
Kitchen/Diner - 3.42 x 2.73
Utility Room - 1.36 x 2.86
Storage
First Floor Landing
Bedroom 1 - 4.03 x 2.96
Bedroom 2 - 3.15 x 4.01
Bathroom - 2.56 x 2.74
Gardens with potential to all three sides

Tenure: Freehold

EPC Rating: ordered

Important Notice to Prospective Buyers

We draw your attention to the Special Conditions of Sale within the Legal Pack, referring to other charges in addition to the purchase price which may become payable. Such costs may include Search Fees, reimbursement of Sellers costs and Legal Fees, and Transfer Fees amongst others.

Administration Charge

£2,400 inc vat payable upon the fall of the virtual gavel

Loading the bidding panel...

Make An Enquiry

Submit an enquiry for this lot and someone will be in contact shortly.

 
 
 
* Guide | £32,000
  • 2 Bedrooms
  • Unconditional (Immediate Exchange)

Call the team on 0114 223 0777 for more information

Disclaimer: The map preview provided above is for general guidance only and may not accurately reflect the exact location or surrounding buildings. Prospective buyers and interested parties are strongly advised to independently verify the precise location and surroundings before bidding.

Note

  1. MONEY LAUNDERING REGULATIONS: Intending purchasers will be asked to produce identification documentation at a later stage and we would ask for your co-operation in order that there will be no delay in agreeing the sale.
  2. General : While we endeavour to make our sales particulars fair, accurate and reliable, they are only a general guide to the property and, accordingly, if there is any point which is of particular importance to you, please contact the office and we will be pleased to check the position for you, especially if you are contemplating travelling some distance to view the property.
  3. Measurements: These approximate room sizes are only intended as general guidance. You must verify the dimensions carefully before ordering carpets or any built-in furniture.
  4. Services: Please note we have not tested the services or any of the equipment or appliances in this property, accordingly we strongly advise prospective buyers to commission their own survey or service reports before finalising their offer to purchase.
  5. THESE PARTICULARS ARE ISSUED IN GOOD FAITH BUT DO NOT CONSTITUTE REPRESENTATIONS OF FACT OR FORM PART OF ANY OFFER OR CONTRACT. THE MATTERS REFERRED TO IN THESE PARTICULARS SHOULD BE INDEPENDENTLY VERIFIED BY PROSPECTIVE BUYERS OR TENANTS. NEITHER AUCTION HOUSE NOR ANY OF ITS EMPLOYEES OR AGENTS HAS ANY AUTHORITY TO MAKE OR GIVE ANY REPRESENTATION OR WARRANTY WHATEVER IN RELATION TO THIS PROPERTY.