Auction House / Lincolnshire

  • For Sale By Unconditional Online Auction
  • Guide Price* : £95,000 +
  • Bidding Opens 26/01/2026 13:00

35 Gilbert Avenue Tuxford, Newark, Nottinghamshire, NG22 0JB

*ONLINE Unconditional Auction Opening 26 January 2026*
To register for the legal pack and bidding, please visit our website: auctionhouse.co.uk/lincolnshire

Description

Situation:
The property is situate on Gilbert Avenue, Tuxford, a popular and well positioned area of the town, close to the local amenities and facilities. Tuxford itself offers convenient access to the A1 road network, and subsequently the well served towns of Retford and Newark with their train links to London Kings Cross.

Description:
A wonderful opportunity to acquire this well proportioned 3 bedroom mid terrace system built house, offered for sale with the benefit of double glazing and central heating. This property will appeal to both owner occupiers and investors alike, with scope to add value and generate a strong rental yield in an area of strong demand, with typical rents up to £900pcm (£10,800 per annum).

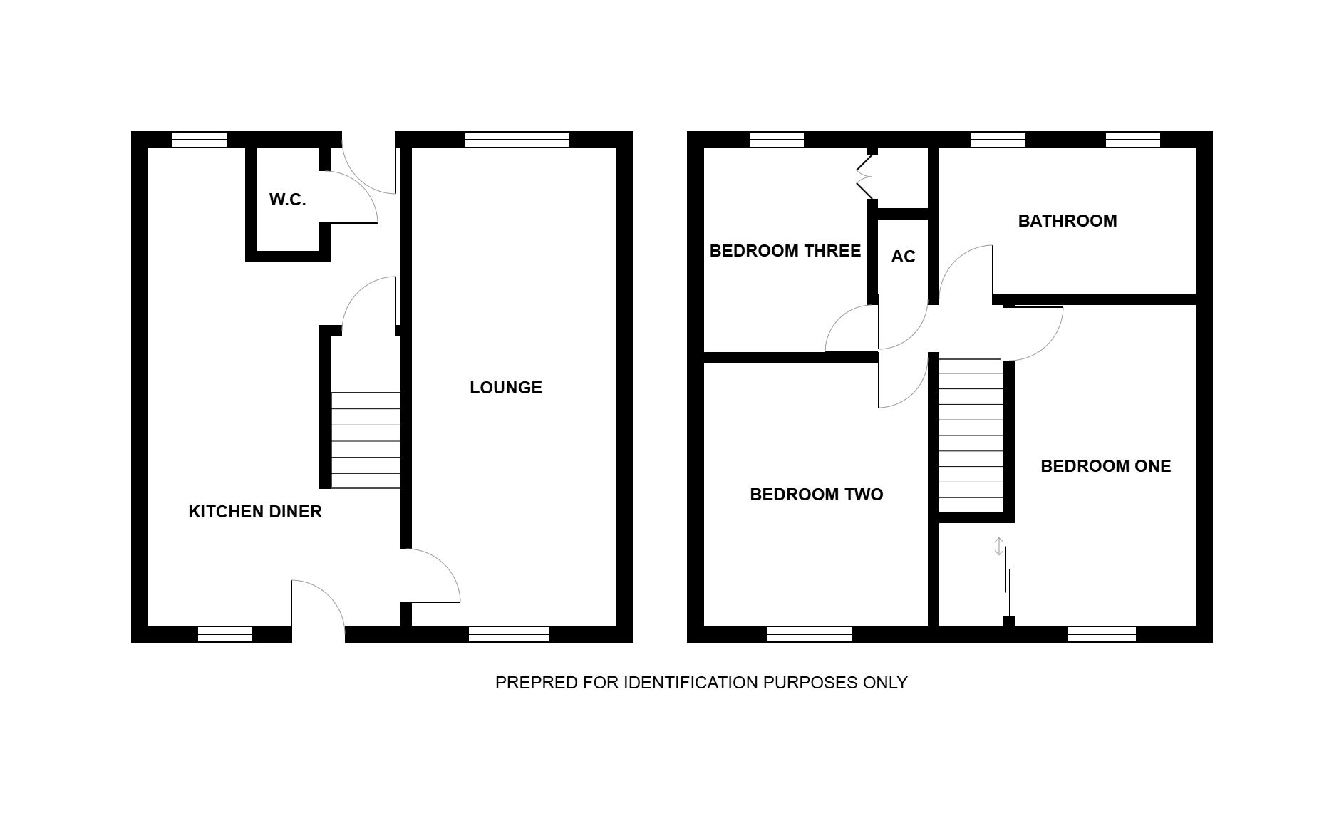
Accommodation

Ground Floor
Entrance Hall:
Downstairs WC:
Pantry:
Lounge: 6.10m x 3.15m
Dining Kitchen: 6.10m x 3.23m max

First Floor
Bedroom One: 4.47m x 3.07m max
Bedroom Two: 3.58m x 3.25m
Bedroom Three: 2.62m x 2.21m
Bathroom: 4.19m x 1.73m

Outside:
Gardens to front and rear

Material Information

Please copy and paste the link below into your browser for a full breakdown of material information for this property
mip.urls.addland.com/oNF5ojSXtYHm3GQrovHK9D

Tenure:
The property is freehold. All prospective bidders should satisfy themselves of terms of the tenure, ground rent and service charge if applicable, by inspecting the legal pack.

Construction:
According to the EPC, the property is system built, as built, no insulation (assumed)

Council Tax:
The property falls within Bassetlaw Council – BAND A

Viewing:
Strictly by appointment with Auction House.

Services:
Prospective purchasers are advised to make their own enquiries of the relevant statutory authorities. NB: Services, Apparatus and Equipment have not been tested by Auction House and therefore cannot be verified as being in working order. The buyer is advised to obtain verification from their Solicitor/Surveyor.

These particulars are believed to be correct but their accuracy is not guaranteed and they do not form any part of any contract. Information relating to Rating and Town and Country Planning matters has been obtained by verbal enquiry only. Prospective purchasers are advised to make their own enquiries of the appropriate Authority. Information relating to Phone & Broadband can be found by visiting Ofcom. All measurements, areas and distances are approximate only. Potential purchasers are advised to check them.

Important Notice to Prospective Buyers

We draw your attention to the Special Conditions of Sale within the Legal Pack, referring to other charges in addition to the purchase price which may become payable. Such costs may include Search Fees, reimbursement of Sellers costs and Legal Fees, and Transfer Fees amongst others.

Buyers Premium

Non-refundable £1,500 inc VAT of the purchase price, payable on exchange of contracts.

Administration Charge

Non-refundable £2,400 inc VAT of the purchase price, payable on exchange of contracts.

Disbursements

Please see the legal pack for any disbursements listed that may become payable by the purchaser on completion.

Loading the bidding panel...

Make An Enquiry

Submit an enquiry for this lot and someone will be in contact shortly.

 
 
 
* Guide | £95,000 +
  • 3 Bedrooms
  • Unconditional (Immediate Exchange)

Call the team on 01427 616436 for more information

Disclaimer: The map preview provided above is for general guidance only and may not accurately reflect the exact location or surrounding buildings. Prospective buyers and interested parties are strongly advised to independently verify the precise location and surroundings before bidding.

Note

  1. MONEY LAUNDERING REGULATIONS: Intending purchasers will be asked to produce identification documentation at a later stage and we would ask for your co-operation in order that there will be no delay in agreeing the sale.
  2. General : While we endeavour to make our sales particulars fair, accurate and reliable, they are only a general guide to the property and, accordingly, if there is any point which is of particular importance to you, please contact the office and we will be pleased to check the position for you, especially if you are contemplating travelling some distance to view the property.
  3. Measurements: These approximate room sizes are only intended as general guidance. You must verify the dimensions carefully before ordering carpets or any built-in furniture.
  4. Services: Please note we have not tested the services or any of the equipment or appliances in this property, accordingly we strongly advise prospective buyers to commission their own survey or service reports before finalising their offer to purchase.
  5. THESE PARTICULARS ARE ISSUED IN GOOD FAITH BUT DO NOT CONSTITUTE REPRESENTATIONS OF FACT OR FORM PART OF ANY OFFER OR CONTRACT. THE MATTERS REFERRED TO IN THESE PARTICULARS SHOULD BE INDEPENDENTLY VERIFIED BY PROSPECTIVE BUYERS OR TENANTS. NEITHER AUCTION HOUSE NOR ANY OF ITS EMPLOYEES OR AGENTS HAS ANY AUTHORITY TO MAKE OR GIVE ANY REPRESENTATION OR WARRANTY WHATEVER IN RELATION TO THIS PROPERTY.