Auction House / Notts & Derby

  • For Sale By Unconditional Online Auction
  • Guide Price* : £12,000
  • Bidding Opens 19/01/2026 13:00

39. Brindley Court Wilkins Drive, Derby, Derbyshire, DE24 8YR

Open House Viewings (no need to book)
Tuesday 6th January at 12-12:30pm.
Weds 14th January at 11:30-12pm.
Friday 16th January at 2-2:30pm

Description

A Flat for renovation near Derby City Centre!
This is a very spacious self contained one bedroom flat and is ideal for investors, situated near the centre of Derby and just a short walk to Derby train station with transport links across the UK.

It is also within walking distance of David Lloyd Leisure, Moorways Sports & Swimming complex and Derby area, plus many other local amenities.

Similar properties in the apartment block are being listed for rent at up to £8100 per year, so with some renovation this could be a very high yielding property to go for! A straightforward first refurbishment opportunity or low entry cost addition to a rental portfolio
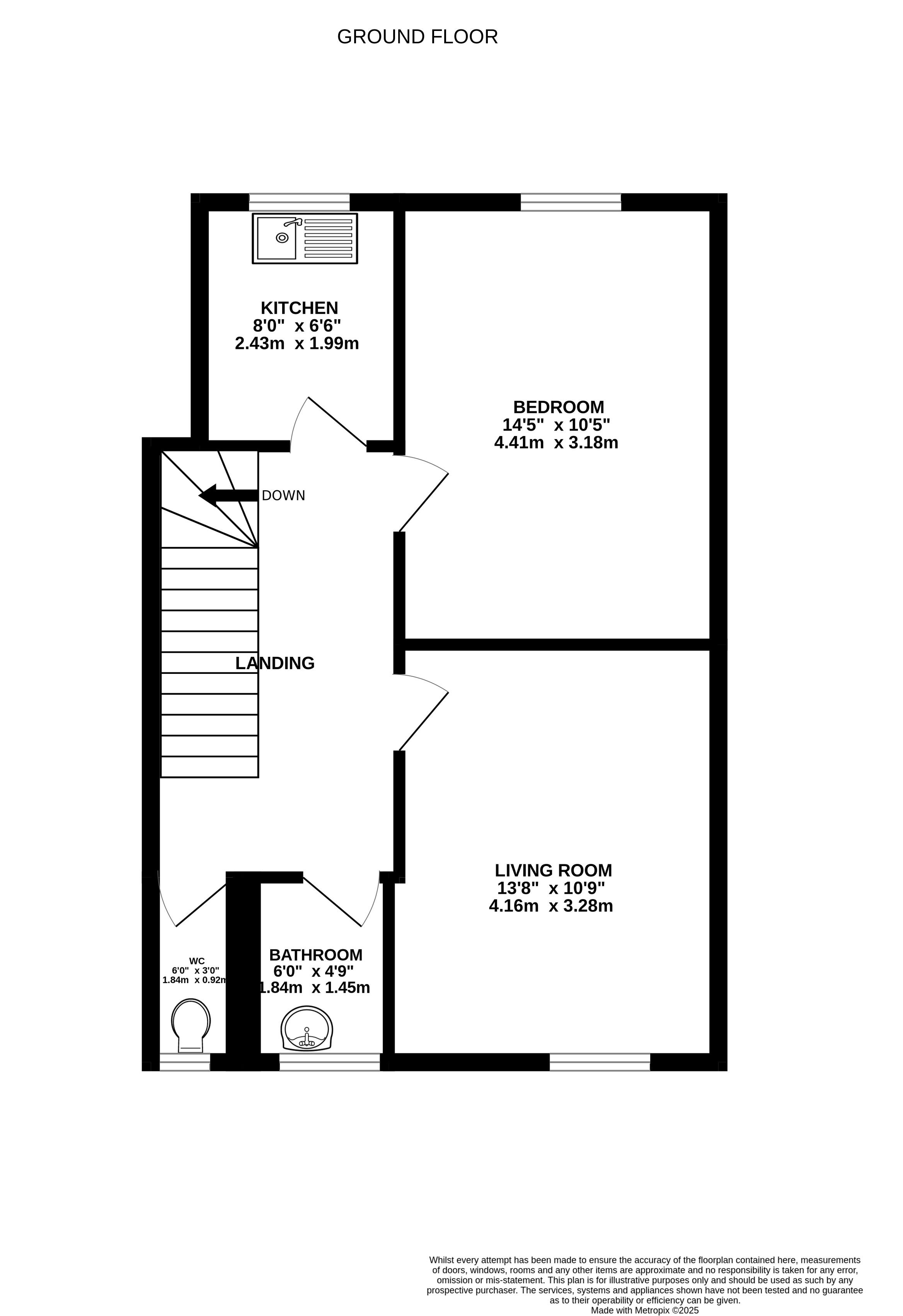
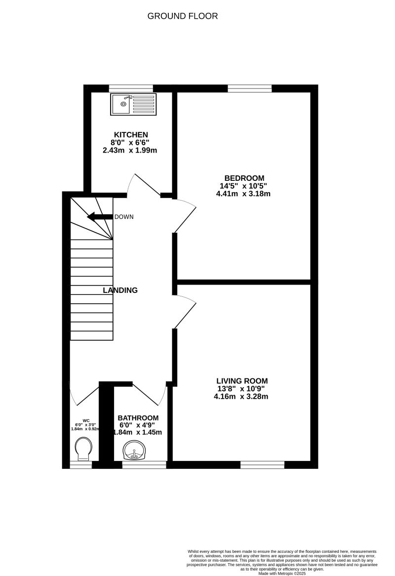
Entrance hallway with stairs leads to:
Hallway
WC
Bathroom - 1.84 x 1.45
Kitchen - 2.43 x 1.99
Lounge - 4.16 x 3.38
Bedroom - 4.41 x 3.18
Communal car parking to the rear of the block

Tenure: Leasehold

EPC Rating: D

Important Notice to Prospective Buyers

We draw your attention to the Special Conditions of Sale within the Legal Pack, referring to other charges in addition to the purchase price which may become payable. Such costs may include Search Fees, reimbursement of Sellers costs and Legal Fees, and Transfer Fees amongst others.

Administration Charge

£2,400 inc vat payable upon the fall of the virtual gavel

Loading the bidding panel...

Make An Enquiry

Submit an enquiry for this lot and someone will be in contact shortly.

 
 
 
* Guide | £12,000
  • 1 Bedroom
  • Unconditional (Immediate Exchange)

Call the team on 0115 777 8888 for more information

Disclaimer: The map preview provided above is for general guidance only and may not accurately reflect the exact location or surrounding buildings. Prospective buyers and interested parties are strongly advised to independently verify the precise location and surroundings before bidding.

Note

  1. MONEY LAUNDERING REGULATIONS: Intending purchasers will be asked to produce identification documentation at a later stage and we would ask for your co-operation in order that there will be no delay in agreeing the sale.
  2. General : While we endeavour to make our sales particulars fair, accurate and reliable, they are only a general guide to the property and, accordingly, if there is any point which is of particular importance to you, please contact the office and we will be pleased to check the position for you, especially if you are contemplating travelling some distance to view the property.
  3. Measurements: These approximate room sizes are only intended as general guidance. You must verify the dimensions carefully before ordering carpets or any built-in furniture.
  4. Services: Please note we have not tested the services or any of the equipment or appliances in this property, accordingly we strongly advise prospective buyers to commission their own survey or service reports before finalising their offer to purchase.
  5. THESE PARTICULARS ARE ISSUED IN GOOD FAITH BUT DO NOT CONSTITUTE REPRESENTATIONS OF FACT OR FORM PART OF ANY OFFER OR CONTRACT. THE MATTERS REFERRED TO IN THESE PARTICULARS SHOULD BE INDEPENDENTLY VERIFIED BY PROSPECTIVE BUYERS OR TENANTS. NEITHER AUCTION HOUSE NOR ANY OF ITS EMPLOYEES OR AGENTS HAS ANY AUTHORITY TO MAKE OR GIVE ANY REPRESENTATION OR WARRANTY WHATEVER IN RELATION TO THIS PROPERTY.