Auction House / South West

  • For Sale By Unconditional Online Auction
  • Guide Price* : £96,000
  • Auction Ended 06/01/2026
  • Lot 2

143 Henson Park, Chard, Somerset, TA20 1NL

Guide Price £96,000 (plus fees). For Sale via Online Unconditional Auction starting on 05/01/26 at 13:00 and closes 24 hours later. Two bedroom property in Chard, Somerset. Legal pack available to download free of charge from our website.

Description

Terraced House

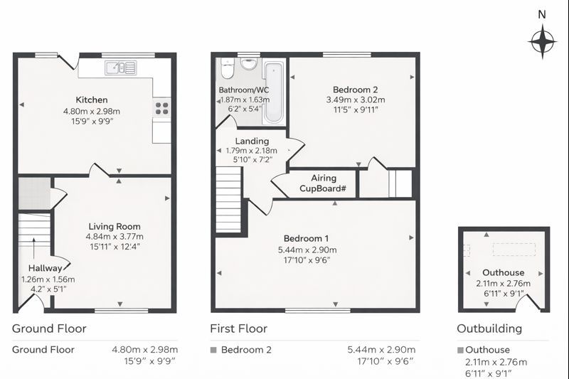
A two-bedroom property in Chard, Somerset. The accommodation comprises of a living room, kitchen, two double bedrooms and a bathroom. Externally there is an outhouse, front and rear gardens and on road parking.

ACCOMMODATION
Living Room: 4.84m x 3.77m
Kitchen: 4.80m x 2.98m
Bedroom One: 5.44m x 2.90m
Bedroom Two: 3.49m 3.02m
Bathroom: 1.87m x 1.63m
Outhouse: 2.11m x 2.76m

FULL DETAILS Photographs, Dimensions, Floor Plans and Area Measurements (when available) are included within our full details online on our website. All published information is to aid identification of the property and is not necessarily to scale.

VIEWINGS Please telephone Auction House South West on 03456 461361 to request a viewing.

NOTICE TO BIDDER Please be aware that if your bid is successful on auction day the exchange of contracts will happen immediately after the auction.

Tenure: See Legal Pack

EPC Rating: C74

Important Notice to Prospective Buyers

We draw your attention to the Special Conditions of Sale within the Legal Pack, referring to other charges in addition to the purchase price which may become payable. Such costs may include Search Fees, reimbursement of Sellers costs and Legal Fees, and Transfer Fees amongst others.

Buyers Premium

Buyer Premium is a non-refundable £1,500 inc VAT payable on the fall of the virtual gavel.

Administration Charge

Administration Charge is a non-refundable £1,200 inc VAT payable on the fall of the virtual gavel.

Loading the bidding panel...

* Guide | £96,000
  • 2 Bedrooms
  • Unconditional (Immediate Exchange)

Call the team on 01752 474200 for more information

Disclaimer: The map preview provided above is for general guidance only and may not accurately reflect the exact location or surrounding buildings. Prospective buyers and interested parties are strongly advised to independently verify the precise location and surroundings before bidding.

Note

  1. MONEY LAUNDERING REGULATIONS: Intending purchasers will be asked to produce identification documentation at a later stage and we would ask for your co-operation in order that there will be no delay in agreeing the sale.
  2. General : While we endeavour to make our sales particulars fair, accurate and reliable, they are only a general guide to the property and, accordingly, if there is any point which is of particular importance to you, please contact the office and we will be pleased to check the position for you, especially if you are contemplating travelling some distance to view the property.
  3. Measurements: These approximate room sizes are only intended as general guidance. You must verify the dimensions carefully before ordering carpets or any built-in furniture.
  4. Services: Please note we have not tested the services or any of the equipment or appliances in this property, accordingly we strongly advise prospective buyers to commission their own survey or service reports before finalising their offer to purchase.
  5. THESE PARTICULARS ARE ISSUED IN GOOD FAITH BUT DO NOT CONSTITUTE REPRESENTATIONS OF FACT OR FORM PART OF ANY OFFER OR CONTRACT. THE MATTERS REFERRED TO IN THESE PARTICULARS SHOULD BE INDEPENDENTLY VERIFIED BY PROSPECTIVE BUYERS OR TENANTS. NEITHER AUCTION HOUSE NOR ANY OF ITS EMPLOYEES OR AGENTS HAS ANY AUTHORITY TO MAKE OR GIVE ANY REPRESENTATION OR WARRANTY WHATEVER IN RELATION TO THIS PROPERTY.