Auction House / Manchester

  • For Sale By Unconditional Online Auction
  • Guide Price* : £91,000+
  • Bidding Opens 12/01/2026 13:00

52 Roch Valley Way, Rochdale, Lancashire, OL11 4QQ

FOR SALE BY ONLINE AUCTION ON TUESDAY 13TH JANUARY 2026

Description

Extended three-bedroom, two reception room end terraced property which presents an excellent investment or buy-to-let opportunity.

Situated on Roch Valley Way in Rochdale, the property enjoys a convenient location close to Rochdale Town Centre, offering a wide range of local amenities, schools, and shops.

The area also benefits from excellent transport links, including frequent bus and train services to Manchester, Leeds, and Liverpool, along with easy access to the M62 motorway network.

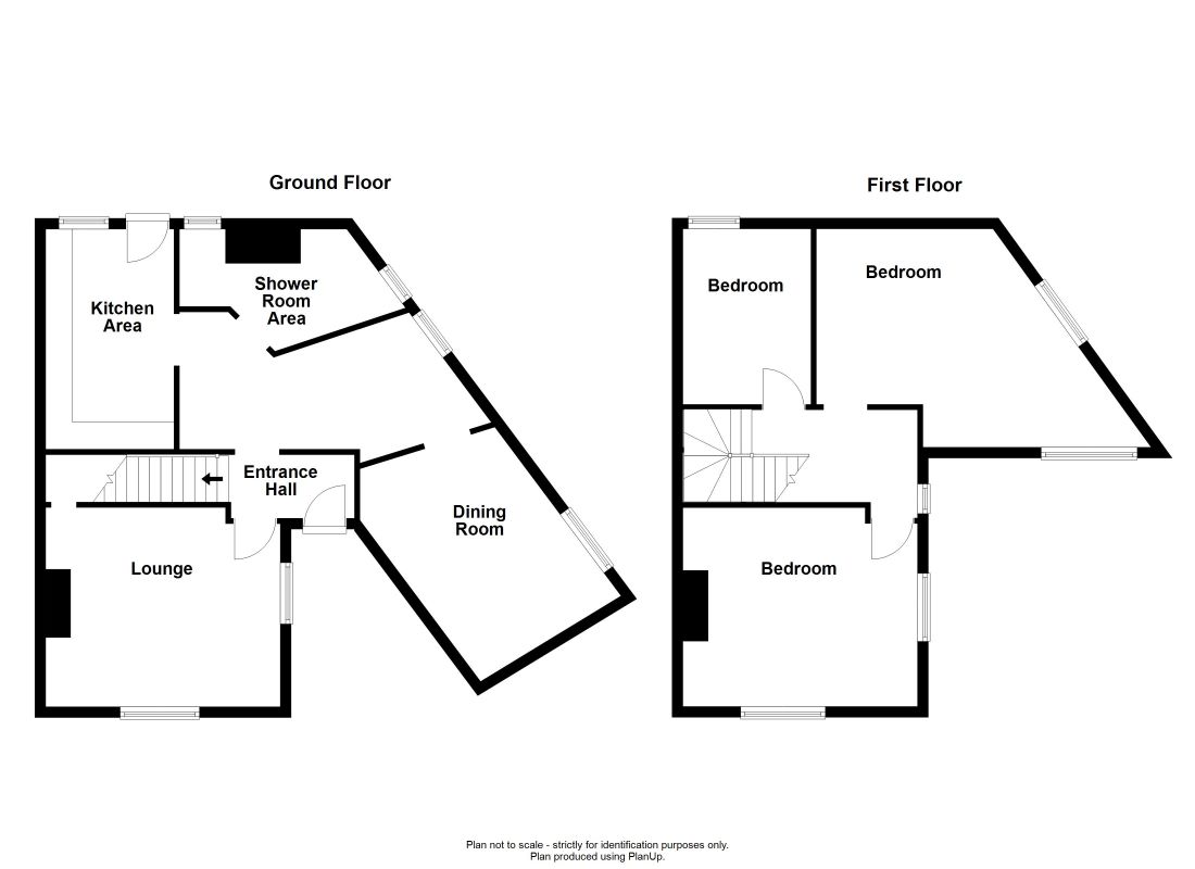
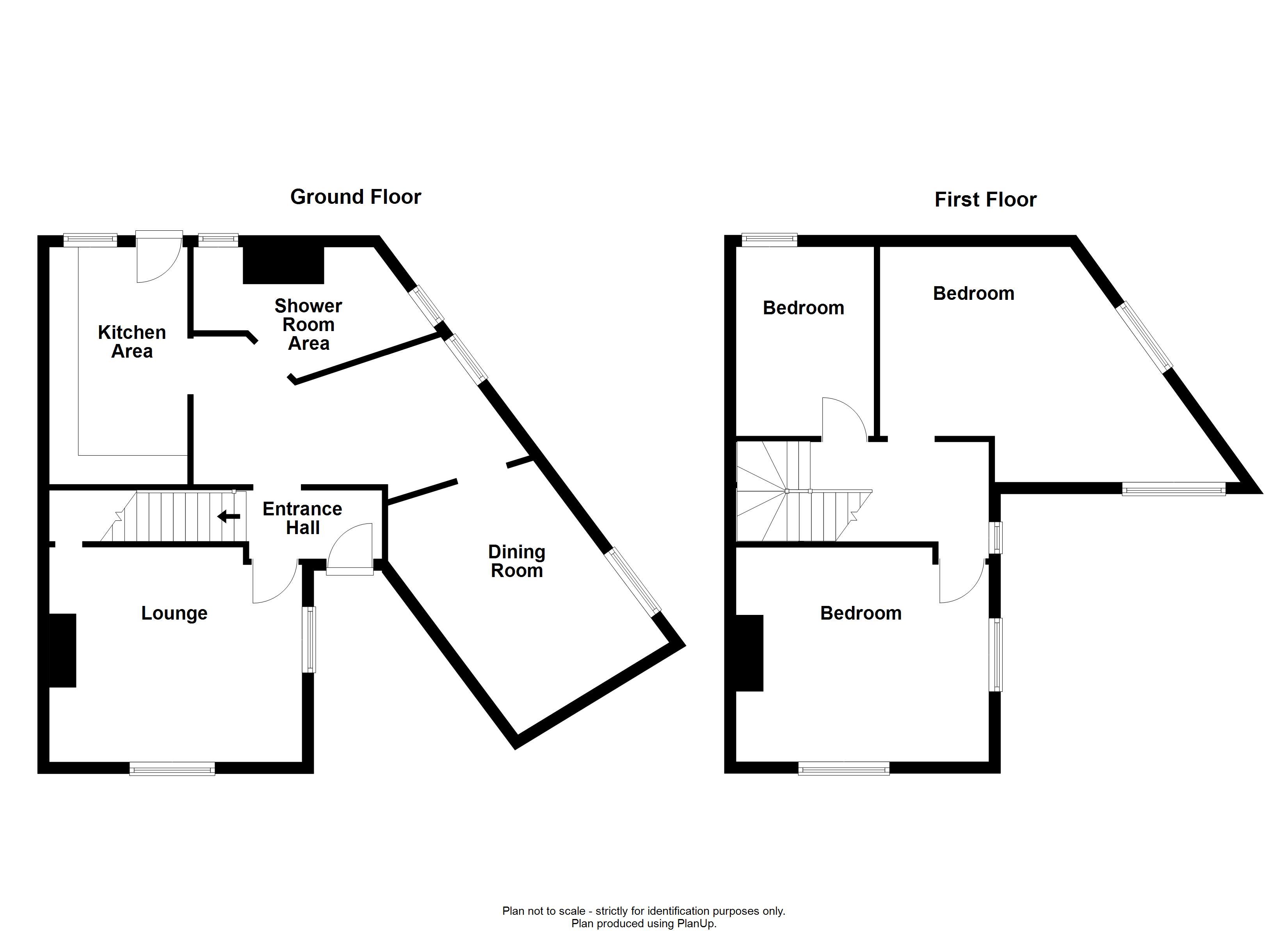
The accommodation briefly comprises of entrance hallway with staircase leading to the first floor, lounge with under stair storage, office or study space, dining room or ground floor bedroom if needed, bathroom and kitchen with access to the rear yard.

To the first floor, landing with loft hatch and three generous bedrooms.

Externally, there is on-street parking, front courtyard and a private yard to the rear with brick outhouses.

This property would make an ideal buy-to-let investment, with strong rental demand in the Rochdale area, or a project for refurbishment to add value.

Important Notice to Prospective Buyers

We draw your attention to the Special Conditions of Sale within the Legal Pack, referring to other charges in addition to the purchase price which may become payable. Such costs may include Search Fees, reimbursement of Sellers costs and Legal Fees, and Transfer Fees amongst others.

Buyers Premium

Buyers Premium £1,500 inc VAT

Administration Charge

In addition to the deposit Administration Charge: 1.2% inc VAT of the purchase price subject to a minimum of £1,500 inc VAT.

Loading the bidding panel...

Make An Enquiry

Submit an enquiry for this lot and someone will be in contact shortly.

 
 
 
* Guide | £91,000+
  • 3 Bedrooms
  • Unconditional (Immediate Exchange)

Call the team on 0161 925 3254 for more information

Disclaimer: The map preview provided above is for general guidance only and may not accurately reflect the exact location or surrounding buildings. Prospective buyers and interested parties are strongly advised to independently verify the precise location and surroundings before bidding.

Note

  1. MONEY LAUNDERING REGULATIONS: Intending purchasers will be asked to produce identification documentation at a later stage and we would ask for your co-operation in order that there will be no delay in agreeing the sale.
  2. General : While we endeavour to make our sales particulars fair, accurate and reliable, they are only a general guide to the property and, accordingly, if there is any point which is of particular importance to you, please contact the office and we will be pleased to check the position for you, especially if you are contemplating travelling some distance to view the property.
  3. Measurements: These approximate room sizes are only intended as general guidance. You must verify the dimensions carefully before ordering carpets or any built-in furniture.
  4. Services: Please note we have not tested the services or any of the equipment or appliances in this property, accordingly we strongly advise prospective buyers to commission their own survey or service reports before finalising their offer to purchase.
  5. THESE PARTICULARS ARE ISSUED IN GOOD FAITH BUT DO NOT CONSTITUTE REPRESENTATIONS OF FACT OR FORM PART OF ANY OFFER OR CONTRACT. THE MATTERS REFERRED TO IN THESE PARTICULARS SHOULD BE INDEPENDENTLY VERIFIED BY PROSPECTIVE BUYERS OR TENANTS. NEITHER AUCTION HOUSE NOR ANY OF ITS EMPLOYEES OR AGENTS HAS ANY AUTHORITY TO MAKE OR GIVE ANY REPRESENTATION OR WARRANTY WHATEVER IN RELATION TO THIS PROPERTY.